5049 W Hummingbird Drive Labelle, FL 33935
For Sale MLS# 226002077
0.23 Acres Lot/Land
Details for 5049 W Hummingbird Drive
MLS# 226002077
Description for 5049 W Hummingbird Drive, Labelle, FL, 33935
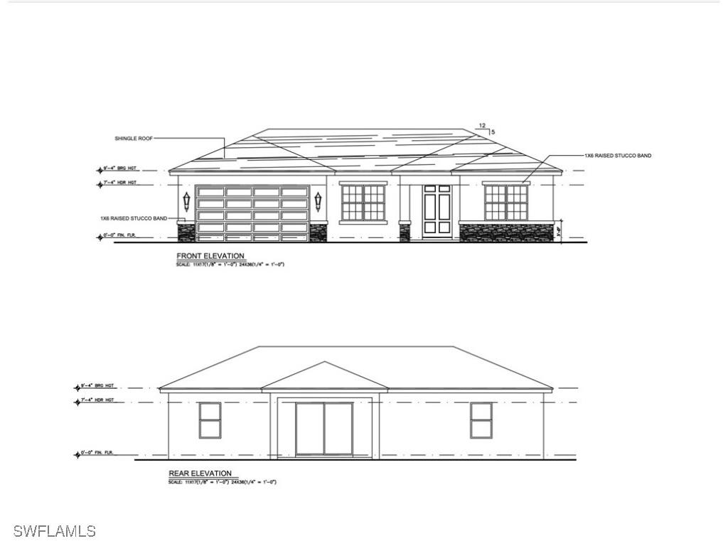
Opportunity to break ground immediately on three side-by-side, build-ready lots in Port LaBelle, a rapidly expanding market known for new construction and growing demand. This setup offers efficient execution and strong resale potential for builders and investors alike. The property is fully approved with building permits in place, impact fees waived (nearly $7,000 saved), septic permits approved, waste agreements paid, and all required surveys, site plans, and architectural drawings completed. Approved plans include a 1,305 square foot single-family home with 3 bedrooms, 2 bathrooms, a 2-car garage, and a covered lanai. The main living area features vaulted ceilings that enhance natural light and overall openness. A rear easement provides additional privacy and spacing. The seller also offers to build the home for the buyer using the approved plans, creating a simplified turnkey path from lot to completed residence. Market comps in the area support a competitive resale strategy under $295,000 while preserving healthy margins. Subcontractor lists, budget details, and lender referrals are available for qualified buyers. Permits and approvals may be transferred at closing.
Listing Information
Property Type: Lot/Land, Residential, Residential,Unimproved Land
Status: Active
Lot Size: 0.23 Acres
Subdivision: Port Labelle
Current Use: Single Family
County: Hendry
Days On Market: 48
Utilities
Other Utilities: Cable Available,Electricity Available,Trash Collection,Underground Utilities,Water Available,Sewer Not Available,Water Not Available
Exterior / Lot Features
Lot View: Landscaped
Additional Exterior/Lot Features: Multiple lots
Community Features
Community Features: Non-Gated
Driving Directions
W Hummingbird Dr, head west on W Hummingbird Dr. Continue straight for a short distance. 5049 W Hummingbird Dr will be on your right.
Financial Considerations
Terms: All Financing Considered,Cash
Tax/Property ID: 4-29-43-10-030-000L.0020
Tax Amount: 317.35
Tax Year: 2024
A broker reciprocity listing courtesy: Knowledge Base Real Estate
Based on information provided by FGCMLS. Internet Data Exchange information is provided exclusively for consumers’ personal, non-commercial use, and such information may not be used for any purpose other than to identify prospective properties consumers may be interested in purchasing. This data is deemed reliable but is not guaranteed to be accurate by Edina Realty, Inc., or by the MLS. Edina Realty, Inc., is not a multiple listing service (MLS), nor does it offer MLS access.
Copyright 2026 FGCMLS. All Rights Reserved.
Payment Calculator
Interest rate and annual percentage rate (APR) are based on current market conditions, are for informational purposes only, are subject to change without notice and may be subject to pricing add-ons related to property type, loan amount, loan-to-value, credit score and other variables. Estimated closing costs used in the APR calculation are assumed to be paid by the borrower at closing. If the closing costs are financed, the loan, APR and payment amounts will be higher. If the down payment is less than 20%, mortgage insurance may be required and could increase the monthly payment and APR. Contact us for details. Additional loan programs may be available. Accuracy is not guaranteed, and all products may not be available in all borrower's geographical areas and are based on their individual situation. This is not a credit decision or a commitment to lend.
Sales History & Tax Summary for 5049 W Hummingbird Drive
Sales History
| Date | Price | |
|---|---|---|
| Currently not available. | ||
Tax Summary
| Tax Year | Estimated Market Value | Total Tax |
|---|---|---|
| Currently not available. | ||
Data powered by ATTOM Data Solutions. Copyright© 2026. Information deemed reliable but not guaranteed.
Schools
Schools nearby 5049 W Hummingbird Drive
| Schools in attendance boundaries | Grades | Distance | Rating |
|---|---|---|---|
| Loading... | |||
| Schools nearby | Grades | Distance | Rating |
|---|---|---|---|
| Loading... | |||
Data powered by ATTOM Data Solutions. Copyright© 2026. Information deemed reliable but not guaranteed.
The schools shown represent both the assigned schools and schools by distance based on local school and district attendance boundaries. Attendance boundaries change based on various factors and proximity does not guarantee enrollment eligibility. Please consult your real estate agent and/or the school district to confirm the schools this property is zoned to attend. Information is deemed reliable but not guaranteed.
SchoolDigger ® Rating
The SchoolDigger rating system is a 1-5 scale with 5 as the highest rating. SchoolDigger ranks schools based on test scores supplied by each state's Department of Education. They calculate an average standard score by normalizing and averaging each school's test scores across all tests and grades.
Coming soon properties will soon be on the market, but are not yet available for showings.