639 Cornwell On The Gulf Venice, FL 34285 - GULF OF MEXICO
For Sale MLS# A4673159
1.02 Acres Lot/Land
Details for 639 Cornwell On The Gulf
MLS# A4673159
Description for 639 Cornwell On The Gulf, Venice, FL, 34285 - GULF OF MEXICO
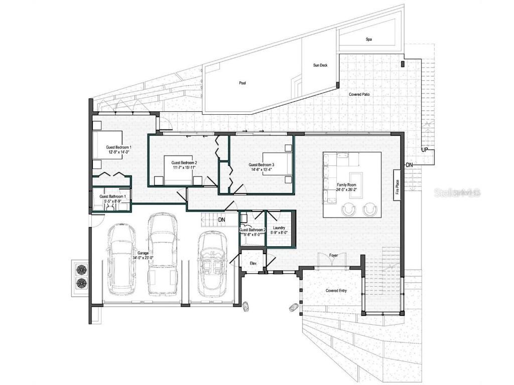
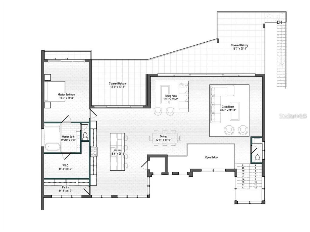
One or more photo(s) has been virtually staged. Live beyond the horizon at Cornwell on the Gulf—one of the final, truly rare opportunities to claim over an acre (1.02 Acres) of direct Gulf-front land on Venice’s iconic coastline. Boasting approximately 105 feet of private gulf front frontage, this extraordinary parcel offers the freedom to create a private luxury compound that captures the essence of coastal living: architectural artistry, seamless indoor-outdoor spaces, and an intimate connection to the sea that fewer and fewer properties can ever replicate. The land itself is remarkable, generously sized, quietly positioned, and zoned for residential single-family development under the current local zoning classification. The expansive dimensions support a dream-worthy layout: a grand residence with panoramic water views, detached guest quarters, infinity-edge pool overlooking the Gulf, outdoor kitchens, fire features, rooftop terraces, and private pathways leading directly to the sand. With over 100 feet of pristine gulf front and a buildable acreage well suited for custom single-family living, this is a blank canvas where luxury, privacy, and nature exist in perfect harmony. For buyers seeking both vision and momentum, the property includes architecturally stunning, fully designed plans with active approvals and permits already in place—a significant advantage in today’s environment of rising construction costs and extended review timelines. These plans thoughtfully blend modern elegance with coastal simplicity, maximizing view corridors, natural light, and functional livability. They streamline the build process while still allowing meaningful customization, giving you the best of both worlds: an accelerated timeline toward breaking ground, and the ability to imprint your personal aesthetic. Utilities to the site are ready to go: the lot has access to city water and sewer and is pre-plumbed for modern amenities; electric and other utility hookups are available and mapped in the approved plans. That reduces the complexity and added cost sometimes associated with gulf-front builds, allowing a smoother, more predictable path to your finished residence by the sea. Located just moments from historic downtown Venice, Sharky’s, and the South Jetty, the property offers a rare balance of serenity and accessibility. Enjoy boutique shopping, waterfront dining, cultural events, and a charming coastal lifestyle — all from a private sanctuary that feels worlds away. Cornwell on the Gulf isn’t just a piece of land — it’s a once-in-a-generation opportunity to create something enduring, exquisite, and deeply personal. Seller is open to holding the note, in first position, for respectful and acceptable terms.
Listing Information
Property Type: Lot/Land, Residential
Status: Active
Lot Size: 1.02 Acres
Current Use: Residential,Single Family
County: Sarasota
Utilities
Water: Public
Sewer: Public Sewer
Other Utilities: Cable Available,Electricity Available,High Speed Internet Available
Exterior / Lot Features
Lot View: Beach,Ocean,Water
Lot Dimensions: 34094
Additional Exterior/Lot Features: Private, Landscaped, Cleared, Dead End
Waterfront Details
Standard Water Body: GULF OF MEXICO
Water Front Features: Beach Access, Gulf Access, Ocean Access
Community Features
Community Features: Waterfront, Fishing, Water Access
Driving Directions
Driving westbound on Venice Avenue, turn left onto Harbor Drive South, turn right onto Alhambra Road, turn left onto Park Blvd South, then turn right onto Cornwell on the Gulf. The property will be all the way at the end of the road on the left.
Financial Considerations
Terms: Cash,Conventional,Owner May Carry,Other
Tax/Property ID: 0177020010
Tax Amount: 34992.11
Tax Year: 2024
A broker reciprocity listing courtesy: COLDWELL BANKER REALTY
Based on information provided by Stellar MLS as distributed by the MLS GRID. Information from the Internet Data Exchange is provided exclusively for consumers’ personal, non-commercial use, and such information may not be used for any purpose other than to identify prospective properties consumers may be interested in purchasing. This data is deemed reliable but is not guaranteed to be accurate by Edina Realty, Inc., or by the MLS. Edina Realty, Inc., is not a multiple listing service (MLS), nor does it offer MLS access.
Copyright 2026 Stellar MLS as distributed by the MLS GRID. All Rights Reserved.
Payment Calculator
Interest rate and annual percentage rate (APR) are based on current market conditions, are for informational purposes only, are subject to change without notice and may be subject to pricing add-ons related to property type, loan amount, loan-to-value, credit score and other variables. Estimated closing costs used in the APR calculation are assumed to be paid by the borrower at closing. If the closing costs are financed, the loan, APR and payment amounts will be higher. If the down payment is less than 20%, mortgage insurance may be required and could increase the monthly payment and APR. Contact us for details. Additional loan programs may be available. Accuracy is not guaranteed, and all products may not be available in all borrower's geographical areas and are based on their individual situation. This is not a credit decision or a commitment to lend.
Sales History & Tax Summary for 639 Cornwell On The Gulf
Sales History
| Date | Price | |
|---|---|---|
| Currently not available. | ||
Tax Summary
| Tax Year | Estimated Market Value | Total Tax |
|---|---|---|
| Currently not available. | ||
Data powered by ATTOM Data Solutions. Copyright© 2026. Information deemed reliable but not guaranteed.
Schools
Schools nearby 639 Cornwell On The Gulf
| Schools in attendance boundaries | Grades | Distance | Rating |
|---|---|---|---|
| Loading... | |||
| Schools nearby | Grades | Distance | Rating |
|---|---|---|---|
| Loading... | |||
Data powered by ATTOM Data Solutions. Copyright© 2026. Information deemed reliable but not guaranteed.
The schools shown represent both the assigned schools and schools by distance based on local school and district attendance boundaries. Attendance boundaries change based on various factors and proximity does not guarantee enrollment eligibility. Please consult your real estate agent and/or the school district to confirm the schools this property is zoned to attend. Information is deemed reliable but not guaranteed.
SchoolDigger ® Rating
The SchoolDigger rating system is a 1-5 scale with 5 as the highest rating. SchoolDigger ranks schools based on test scores supplied by each state's Department of Education. They calculate an average standard score by normalizing and averaging each school's test scores across all tests and grades.
Coming soon properties will soon be on the market, but are not yet available for showings.