$380,000
Off-Market Date: 02/13/2026L1/2 B1 Mag Seven Court SW Bemidji, MN 56601
Pending MLS# 6418686
2.70 Acres Lot/Land
Details for L1/2 B1 Mag Seven Court SW
MLS# 6418686
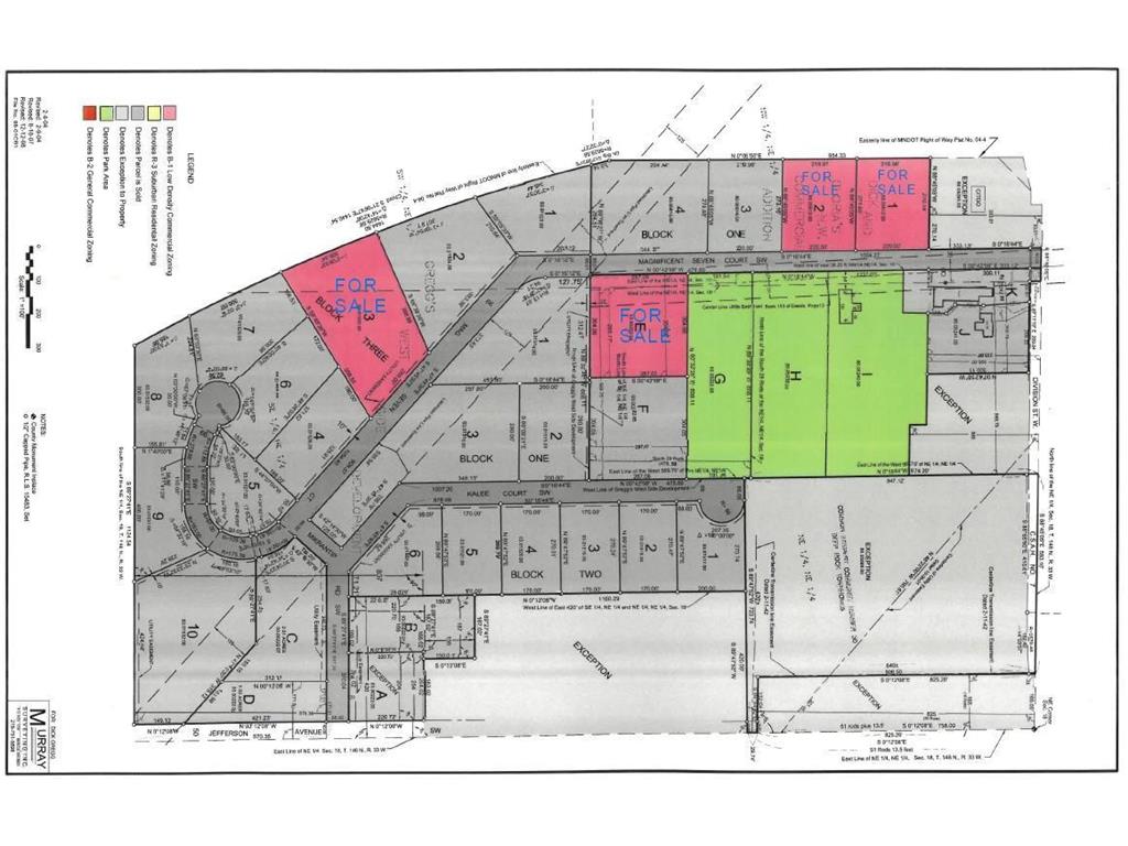
Description for L1/2 B1 Mag Seven Court SW, Bemidji, MN, 56601
This 2.7 acre lot presents an outstanding opportunity for commercial development, especially due to its favorable location in close proximity to highway access. The presence of city sewer and water connections at the curb is a significant advantage.The convenience of underground utilities is a modern and attractive feature, enhancing the aesthetic appeal of the area. City-maintained blacktop roads further contribute to the overall accessibility and visual appeal of the development.
Listing Information
Property Type: Lot/Land, Commercial Lot
Status: Pending
Lot Size: 2.70 Acres
Subdivision: Dick & Glorias Nw Comm Add
County: Beltrami
Days On Market: 916
School Information
District: 31 - Bemidji
Utilities
Other Utilities: Cable Available,Electricity Available,Natural Gas Available,None Connected,Sewer Available,Underground Utilities Available,Water Available
Exterior / Lot Features
Lot Dimensions: 270x440
Zoning: Business/Commercial
Topography: Level
Additional Exterior/Lot Features: Cleared, Raw Land, Land Inclusions - Easements,For Sale Sign,Platted,Survey,Survey Stakes, Road Frontage - Paved Streets, City
Soil Type: Sand
Driving Directions
West on Division St, left on Mag Seven Ct SW. Lot on the right.
Financial Considerations
Covenants/Deed Restrictions: Other Covenants, Easements-Utility
Tax/Property ID: 800561200
Tax Amount: 5130
Tax Year: 2025
HomeStead Description: Non-Homesteaded
A broker reciprocity listing courtesy: Century 21 Dickinson
The data relating to real estate for sale on this web site comes in part from the Broker Reciprocity℠ Program of the Regional Multiple Listing Service of Minnesota, Inc. Real estate listings held by brokerage firms other than Edina Realty, Inc. are marked with the Broker Reciprocity℠ logo or the Broker Reciprocity℠ thumbnail and detailed information about them includes the name of the listing brokers. Edina Realty, Inc. is not a Multiple Listing Service (MLS), nor does it offer MLS access. This website is a service of Edina Realty, Inc., a broker Participant of the Regional Multiple Listing Service of Minnesota, Inc. IDX information is provided exclusively for consumers personal, non-commercial use and may not be used for any purpose other than to identify prospective properties consumers may be interested in purchasing. Open House information is subject to change without notice. Information deemed reliable but not guaranteed.
Copyright 2026 Regional Multiple Listing Service of Minnesota, Inc. All Rights Reserved.
Sales History & Tax Summary for L1/2 B1 Mag Seven Court SW
Sales History
| Date | Price | |
|---|---|---|
| Currently not available. | ||
Tax Summary
| Tax Year | Estimated Market Value | Total Tax |
|---|---|---|
| Currently not available. | ||
Data powered by ATTOM Data Solutions. Copyright© 2026. Information deemed reliable but not guaranteed.
Schools
Schools nearby L1/2 B1 Mag Seven Court SW
| Schools in attendance boundaries | Grades | Distance | Rating |
|---|---|---|---|
| Loading... | |||
| Schools nearby | Grades | Distance | Rating |
|---|---|---|---|
| Loading... | |||
Data powered by ATTOM Data Solutions. Copyright© 2026. Information deemed reliable but not guaranteed.
The schools shown represent both the assigned schools and schools by distance based on local school and district attendance boundaries. Attendance boundaries change based on various factors and proximity does not guarantee enrollment eligibility. Please consult your real estate agent and/or the school district to confirm the schools this property is zoned to attend. Information is deemed reliable but not guaranteed.
SchoolDigger ® Rating
The SchoolDigger rating system is a 1-5 scale with 5 as the highest rating. SchoolDigger ranks schools based on test scores supplied by each state's Department of Education. They calculate an average standard score by normalizing and averaging each school's test scores across all tests and grades.
Coming soon properties will soon be on the market, but are not yet available for showings.