$774,995
Paul Morris Drive Englewood, FL 34223
For Sale MLS# D6144140
2 Acres Lot/Land
Details for Paul Morris Drive
MLS# D6144140
Description for Paul Morris Drive, Englewood, FL, 34223
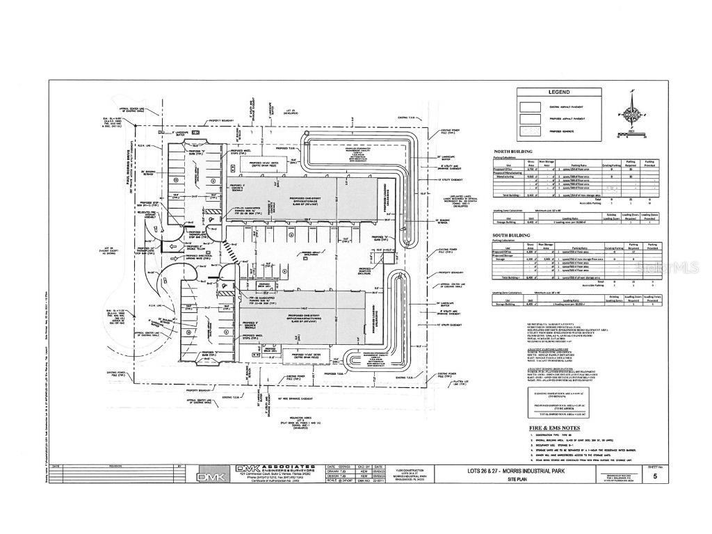
2-acre industrial development opportunity in Morris Industrial Park with a full set of building plans included and permitting achievable in approximately 30–45 days. Skip the 18–24 months of engineering, environmental studies, and design work and move straight toward construction. The approved site plan features two one-story buildings, each approximately 8,400 square feet. The north building is 50’ x 168’ and designed for seven RV or storage units, while the south building is 60’ x 140’ and designed for office and light manufacturing use. Environmental studies are available, and full engineering and site planning have already been completed. Located off River Road with direct access to US-41 and I-75 in a high-demand industrial corridor. This is a permit-ready project that saves significant time and money for investors or owner-users looking to fast-track development.
Listing Information
Property Type: Lot/Land, Industrial
Status: Active
Lot Size: 2 Acres
Subdivision: Morris Indust Park
Current Use: Industrial
County: Sarasota
Utilities
Water: Public
Sewer: Public Sewer
Other Utilities: Electricity Available,Sewer Available,Water Available
Exterior / Lot Features
Lot Dimensions: 291x326x291x296
Additional Exterior/Lot Features: Cul-de-Sac, Industrial Park, Outside City Limits
Driving Directions
From River Road take Paul Morris Drive. The property is down on your left at end of the cul-de-sac.
Financial Considerations
Terms: Cash,Conventional
Tax/Property ID: 0850160004
Tax Amount: 3655.41
Tax Year: 2024
A broker reciprocity listing courtesy: PARADISE EXCLUSIVE INC
Based on information provided by Stellar MLS as distributed by the MLS GRID. Information from the Internet Data Exchange is provided exclusively for consumers’ personal, non-commercial use, and such information may not be used for any purpose other than to identify prospective properties consumers may be interested in purchasing. This data is deemed reliable but is not guaranteed to be accurate by Edina Realty, Inc., or by the MLS. Edina Realty, Inc., is not a multiple listing service (MLS), nor does it offer MLS access.
Copyright 2025 Stellar MLS as distributed by the MLS GRID. All Rights Reserved.
Payment Calculator
Interest rate and annual percentage rate (APR) are based on current market conditions, are for informational purposes only, are subject to change without notice and may be subject to pricing add-ons related to property type, loan amount, loan-to-value, credit score and other variables. Estimated closing costs used in the APR calculation are assumed to be paid by the borrower at closing. If the closing costs are financed, the loan, APR and payment amounts will be higher. If the down payment is less than 20%, mortgage insurance may be required and could increase the monthly payment and APR. Contact us for details. Additional loan programs may be available. Accuracy is not guaranteed, and all products may not be available in all borrower's geographical areas and are based on their individual situation. This is not a credit decision or a commitment to lend.
Sales History & Tax Summary for Paul Morris Drive
Sales History
| Date | Price | Change |
|---|---|---|
| Currently not available. | ||
Tax Summary
| Tax Year | Estimated Market Value | Total Tax |
|---|---|---|
| Currently not available. | ||
Data powered by ATTOM Data Solutions. Copyright© 2025. Information deemed reliable but not guaranteed.
Schools
Schools nearby Paul Morris Drive
| Schools in attendance boundaries | Grades | Distance | Rating |
|---|---|---|---|
| Loading... | |||
| Schools nearby | Grades | Distance | Rating |
|---|---|---|---|
| Loading... | |||
Data powered by ATTOM Data Solutions. Copyright© 2025. Information deemed reliable but not guaranteed.
The schools shown represent both the assigned schools and schools by distance based on local school and district attendance boundaries. Attendance boundaries change based on various factors and proximity does not guarantee enrollment eligibility. Please consult your real estate agent and/or the school district to confirm the schools this property is zoned to attend. Information is deemed reliable but not guaranteed.
SchoolDigger ® Rating
The SchoolDigger rating system is a 1-5 scale with 5 as the highest rating. SchoolDigger ranks schools based on test scores supplied by each state's Department of Education. They calculate an average standard score by normalizing and averaging each school's test scores across all tests and grades.
Coming soon properties will soon be on the market, but are not yet available for showings.