$5,000,000
TBD SW 20th Place Ocala, FL 34471
For Sale MLS# A4670301
22 Acres Lot/Land
Details for TBD SW 20th Place
MLS# A4670301
Description for TBD SW 20th Place, Ocala, FL, 34471
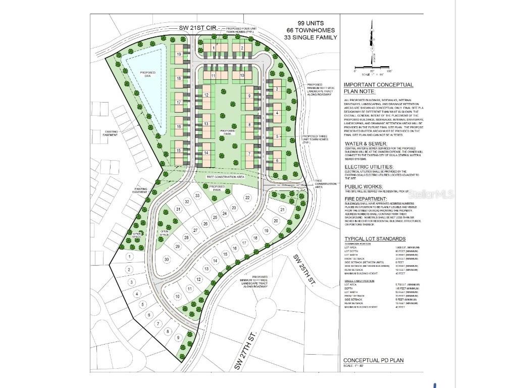
Nestled in the heart of Ocala, Willow Creek at Cala Hills presents an exceptional opportunity for residential development within one of the area’s most desirable established communities. This ±22-acre site is fully entitled and ready for the next phase of growth, with city water and sewer already to the property and an HOA in place. The approved site plan offers flexibility for a mix of 66 townhomes and 33 single- family homes, or alternatively, 68 single-family homes—allowing developers to tailor the product mix to meet market demand. The property benefits from existing community infrastructure, attractive surrounding neighborhoods, and convenient access to major corridors, employment centers, and retail amenities. With survey and site plan in hand, Willow Creek at Cala Hills offers a rare “plug- and-play” opportunity for builders or investors seeking a prime infill development site in the core of Ocala’s rapid residential expansion zone. Ocala & Marion County Growth Highlights Top Growth Market: Ocala ranks among Florida’s Top 10 Fastest-Growing Metros and has been recognized by the U.S. Census Bureau for its consistent population and job growth. Population Surge: Marion County’s population exceeds 400,000 and continues to grow at over 2% annually, fueled by in-migration from across the U.S. Strong Employment Base: Anchored by healthcare, logistics, and advanced manufacturing, Ocala is home to major employers like FedEx, Chewy, Amazon, Cardinal LG, and Reilly Arts Center’s expanding cultural hub. Connectivity: Centrally located within 90 minutes of Orlando,
Listing Information
Property Type: Lot/Land, Residential
Status: Active
Lot Size: 22 Acres
Subdivision: White Oak Village Ph 01 & Ph 02
Current Use: Residential,Single Family
County: Marion
School Information
Elementary: Saddlewood Elementary School
Middle: Liberty Middle School
High: West Port High School
Utilities
Water: Public
Sewer: Public Sewer
Other Utilities: Cable Available,Electricity Available,Natural Gas Available,High Speed Internet Available,Municipal Utilities,Phone Available,Sewer Available,Underground Utilities,Water Available
Exterior / Lot Features
Lot Dimensions: 514x577x691x1054/ 592x691x2562
Additional Exterior/Lot Features: Buildable
Community Features
Community Features: Street Lights
Homeowners Association: Yes
HOA Dues: $112 / Monthly
Driving Directions
From I-75 take exit 350 for FL200E Silver Springs BLVD SW College Road towards Ocala At ramp turn East , left onto FL200 SW College Road Continue 2.5 Miles on Fl 200 past Paddock Mall and Target Turn Right onto Sw 27th Avenue SW 20th Avenue Road. Look for Cala Hills signage Proceed .9 miles and turn left onto SW 21st Circle Follow the curve of SW 21st Circle SE .5 miles Property at curve Landmark reference to opposite of Cala Hills Recreation Area / Clubhouse SW 21 Circle & SW 20 Avenue Road Ocala Fl 34471 Coordinates 29.1623N, -82.1688W
Financial Considerations
Terms: Cash,Conventional,Owner May Carry
Tax/Property ID: 2358-000-008
Tax Amount: 5230.83
Tax Year: 2024
A broker reciprocity listing courtesy: COMPASS FLORIDA LLC
Based on information provided by Stellar MLS as distributed by the MLS GRID. Information from the Internet Data Exchange is provided exclusively for consumers’ personal, non-commercial use, and such information may not be used for any purpose other than to identify prospective properties consumers may be interested in purchasing. This data is deemed reliable but is not guaranteed to be accurate by Edina Realty, Inc., or by the MLS. Edina Realty, Inc., is not a multiple listing service (MLS), nor does it offer MLS access.
Copyright 2026 Stellar MLS as distributed by the MLS GRID. All Rights Reserved.
Payment Calculator
Interest rate and annual percentage rate (APR) are based on current market conditions, are for informational purposes only, are subject to change without notice and may be subject to pricing add-ons related to property type, loan amount, loan-to-value, credit score and other variables. Estimated closing costs used in the APR calculation are assumed to be paid by the borrower at closing. If the closing costs are financed, the loan, APR and payment amounts will be higher. If the down payment is less than 20%, mortgage insurance may be required and could increase the monthly payment and APR. Contact us for details. Additional loan programs may be available. Accuracy is not guaranteed, and all products may not be available in all borrower's geographical areas and are based on their individual situation. This is not a credit decision or a commitment to lend.
Sales History & Tax Summary for TBD SW 20th Place
Sales History
| Date | Price | |
|---|---|---|
| Currently not available. | ||
Tax Summary
| Tax Year | Estimated Market Value | Total Tax |
|---|---|---|
| Currently not available. | ||
Data powered by ATTOM Data Solutions. Copyright© 2026. Information deemed reliable but not guaranteed.
Schools
Schools nearby TBD SW 20th Place
| Schools in attendance boundaries | Grades | Distance | Rating |
|---|---|---|---|
| Loading... | |||
| Schools nearby | Grades | Distance | Rating |
|---|---|---|---|
| Loading... | |||
Data powered by ATTOM Data Solutions. Copyright© 2026. Information deemed reliable but not guaranteed.
The schools shown represent both the assigned schools and schools by distance based on local school and district attendance boundaries. Attendance boundaries change based on various factors and proximity does not guarantee enrollment eligibility. Please consult your real estate agent and/or the school district to confirm the schools this property is zoned to attend. Information is deemed reliable but not guaranteed.
SchoolDigger ® Rating
The SchoolDigger rating system is a 1-5 scale with 5 as the highest rating. SchoolDigger ranks schools based on test scores supplied by each state's Department of Education. They calculate an average standard score by normalizing and averaging each school's test scores across all tests and grades.
Coming soon properties will soon be on the market, but are not yet available for showings.