$1,800,000
0 N Main Street Saint Cloud, FL 34771
For Sale MLS# S5111955
3 beds 3 baths 1,600 sq ft Multi-family
Details for 0 N Main Street
MLS# S5111955
Description for 0 N Main Street, Saint Cloud, FL, 34771
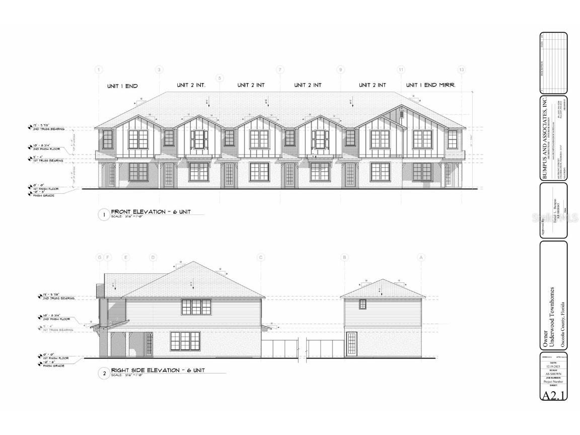
Pre-Construction. To be built. ATTENTION!! ATTENTION!! BUILDERS... Amazing opportunity for build to rent / build to sell 17 Townhouses in a prime rapidly growing area off the Narcoossee Corridor just south of Lake Nona and Medical City area. Existing plan consist 32 building with 6 townhomes and 1 building with 5 units, with mix of 3 and 4 bedrooms. Zoned for LDR -2.35 acres this property Property consists of 4 parcels and a portion of vacated right of way. Great access from Narcoossee and Jack Brack Roads. Perfectly shaped and situated lot with architectural plans to build multi-family residential complex of fine 17 townhomes with attached garages and ,clubhouse and plenty of street parking . Outstanding ROI, solid deal for small or savvy investors to create their own community. There is also an option to add studio above garages for extra cash flow. Water and Sewer available. Permits are almost ready so are a team of professionals if you like one stop shopping. Location is everything ,this lot is situated right near the multibillion dollars development of Neo City, Lake Nona. That means equity , tons of equity, no matter if you build, rent, wait or resell. This incredible lot is located Nearby access to Hwy 417, International Airport, Hgwy 528, Nemours Hospital, Newer VA Hospital and UCF Medical College. Contact today with all your questions!
Listing Information
Property Type: Residential, Multi Family
Status: Active
Bedrooms: 3
Bathrooms: 3
Lot Size: 2.35 Acres
Square Feet: 1,600 sq ft
Year Built: 2025
Garage: Yes
Construction: Block,Stucco,Wood Frame
Construction Display: New Construction
Subdivision: Narcoossee New Map Of
Foundation: Slab
Number Of Units Total: 35
County: Osceola
Additonal Room Information
Laundry: Laundry Closet
Interior Features
Additional Interior Features: Ceiling Fan(s)
Utilities
Water: Public
Sewer: Public Sewer
Other Utilities: Other
Cooling: Central Air, Ceiling Fan(s)
Heating: Central
Exterior / Lot Features
Attached Garage: Attached Garage
Garage Spaces: 2
Roof: Shingle
Community Features
Community Features: Sidewalks
Driving Directions
US 192 EAST TO NORTH ON NARCOOSSEE RD TO RIGHT ON JACK BRACK TO LEFT ON UNDERWOOD TO PROPERTY ON RIGHT Plan in place to build Townhouses, owner in process to get final Permit to build
Financial Considerations
Terms: Cash,Conventional
Tax/Property ID: 17-25-31-4260-0282-0010
Tax Amount: 999
Tax Year: 2023
A broker reciprocity listing courtesy: CHARLES RUTENBERG REALTY ORLANDO
Based on information provided by Stellar MLS as distributed by the MLS GRID. Information from the Internet Data Exchange is provided exclusively for consumers’ personal, non-commercial use, and such information may not be used for any purpose other than to identify prospective properties consumers may be interested in purchasing. This data is deemed reliable but is not guaranteed to be accurate by Edina Realty, Inc., or by the MLS. Edina Realty, Inc., is not a multiple listing service (MLS), nor does it offer MLS access.
Copyright 2025 Stellar MLS as distributed by the MLS GRID. All Rights Reserved.
Payment Calculator
Interest rate and annual percentage rate (APR) are based on current market conditions, are for informational purposes only, are subject to change without notice and may be subject to pricing add-ons related to property type, loan amount, loan-to-value, credit score and other variables. Estimated closing costs used in the APR calculation are assumed to be paid by the borrower at closing. If the closing costs are financed, the loan, APR and payment amounts will be higher. If the down payment is less than 20%, mortgage insurance may be required and could increase the monthly payment and APR. Contact us for details. Additional loan programs may be available. Accuracy is not guaranteed, and all products may not be available in all borrower's geographical areas and are based on their individual situation. This is not a credit decision or a commitment to lend.
Sales History & Tax Summary for 0 N Main Street
Sales History
| Date | Price | Change |
|---|---|---|
| Currently not available. | ||
Tax Summary
| Tax Year | Estimated Market Value | Total Tax |
|---|---|---|
| Currently not available. | ||
Data powered by ATTOM Data Solutions. Copyright© 2025. Information deemed reliable but not guaranteed.
Schools
Schools nearby 0 N Main Street
| Schools in attendance boundaries | Grades | Distance | Rating |
|---|---|---|---|
| Loading... | |||
| Schools nearby | Grades | Distance | Rating |
|---|---|---|---|
| Loading... | |||
Data powered by ATTOM Data Solutions. Copyright© 2025. Information deemed reliable but not guaranteed.
The schools shown represent both the assigned schools and schools by distance based on local school and district attendance boundaries. Attendance boundaries change based on various factors and proximity does not guarantee enrollment eligibility. Please consult your real estate agent and/or the school district to confirm the schools this property is zoned to attend. Information is deemed reliable but not guaranteed.
SchoolDigger ® Rating
The SchoolDigger rating system is a 1-5 scale with 5 as the highest rating. SchoolDigger ranks schools based on test scores supplied by each state's Department of Education. They calculate an average standard score by normalizing and averaging each school's test scores across all tests and grades.
Coming soon properties will soon be on the market, but are not yet available for showings.