$375,000
1015 Ohio Avenue Saint Cloud, FL 34769
For Sale MLS# O6371886
2 beds 3 baths 1,444 sq ft Multi-family
Details for 1015 Ohio Avenue
MLS# O6371886
Description for 1015 Ohio Avenue, Saint Cloud, FL, 34769
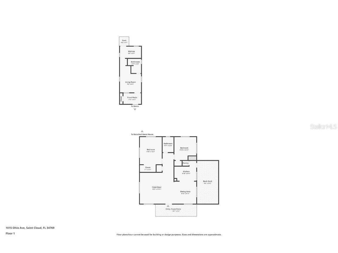
Prime Investment Opportunity in the Heart of Downtown St. Cloud!! Investors and savvy buyers, pay attention! This charming triplex offers a great chance to grow your real estate portfolio. With three comfortable units, this multi-family property provides the rental income potential you’ve been looking for. One unit has two bedrooms and one bathroom, making it ideal for tenants seeking affordable, manageable living spaces. The smart floor plans make the most of every square foot, creating functional homes that attract quality renters and reduce vacancy time. Whether you’re a first-time investor wanting to house-hack your way to financial freedom or an experienced landlord expanding your holdings, this property checks every box. The location is truly a standout feature. Residents enjoy easy access to Key Food Fresh Supermarket, making grocery trips simple. Centennial Park is just moments away, offering green space and recreation that tenants appreciate. Families will benefit from the closeness to St. Cloud High School, adding to the appeal for potential renters. The established St. Cloud community continues to grow. There is steady demand for rental housing, leading to consistent occupancy rates throughout the area. This property positions you well to take advantage of that demand while building long-term equity. Don’t let this income-generating opportunity slip away. Properties like this move quickly in today’s competitive market, and motivated investors are already interested. Reach out today to schedule your private showing and see how this triplex can become a key part of your investment plan!
Listing Information
Property Type: Residential, Triplex
Status: Active
Bedrooms: 2
Bathrooms: 3
Lot Size: 0.16 Acres
Square Feet: 1,444 sq ft
Year Built: 1922
Stories: 1 Story
Construction: Block,Wood Frame
Subdivision: St Cloud 2n Plat Town Of
Foundation: Crawlspace,Slab
Number Of Units Total: 3
County: Osceola
School Information
Elementary: Michigan Avenue Elem (K 5)
Middle: St. Cloud Middle (6-8)
High: St. Cloud High School
Additonal Room Information
Laundry: Other
Interior Features
Appliances: Range, Refrigerator
Flooring: Vinyl
Basement: Crawl Space
Additional Interior Features: Open Floorplan, Main Level Primary, Other
Utilities
Water: Public, Multiple Meters
Sewer: Public Sewer
Other Utilities: Cable Available,Municipal Utilities,Sewer Available,Sewer Connected
Cooling: Central Air, Wall/Window Unit(s)
Heating: Central
Exterior / Lot Features
Roof: Shingle
Lot View: Trees/Woods
Lot Dimensions: 50x140
Additional Exterior/Lot Features: Other, Oversized Lot, Outside City Limits
Unit Information
Unit 1 Units Total: 1
Unit 1 Actual Rent: 1200
Unit 1 Baths Total: 1
Unit 2 Units Total: 1
Unit 2 Actual Rent: 1200
Unit 2 Baths Total: 1
Unit 3 Units Total: 1
Unit 3 Actual Rent: 1500
Unit 3 Baths Total: 1
Unit 3 Beds Total: 2
Driving Directions
Start on US-192 East heading towards St. Cloud. Continue on US-192 for about 4 miles until you reach Indiana Ave in St. Cloud. Turn left onto Indiana Ave. Drive straight on Indiana Ave for about 0.5 miles. Turn right onto 10th St. After about 0.3 miles, turn left onto Ohio Ave.
Financial Considerations
Terms: Cash,Conventional
Gross Income: 46800
Tax/Property ID: 01-26-30-0001-0165-0170
Tax Amount: 4308.54
Tax Year: 2025
A broker reciprocity listing courtesy: EXP REALTY LLC
Based on information provided by Stellar MLS as distributed by the MLS GRID. Information from the Internet Data Exchange is provided exclusively for consumers’ personal, non-commercial use, and such information may not be used for any purpose other than to identify prospective properties consumers may be interested in purchasing. This data is deemed reliable but is not guaranteed to be accurate by Edina Realty, Inc., or by the MLS. Edina Realty, Inc., is not a multiple listing service (MLS), nor does it offer MLS access.
Copyright 2026 Stellar MLS as distributed by the MLS GRID. All Rights Reserved.
Payment Calculator
Interest rate and annual percentage rate (APR) are based on current market conditions, are for informational purposes only, are subject to change without notice and may be subject to pricing add-ons related to property type, loan amount, loan-to-value, credit score and other variables. Estimated closing costs used in the APR calculation are assumed to be paid by the borrower at closing. If the closing costs are financed, the loan, APR and payment amounts will be higher. If the down payment is less than 20%, mortgage insurance may be required and could increase the monthly payment and APR. Contact us for details. Additional loan programs may be available. Accuracy is not guaranteed, and all products may not be available in all borrower's geographical areas and are based on their individual situation. This is not a credit decision or a commitment to lend.
Sales History & Tax Summary for 1015 Ohio Avenue
Sales History
| Date | Price | Change |
|---|---|---|
| Currently not available. | ||
Tax Summary
| Tax Year | Estimated Market Value | Total Tax |
|---|---|---|
| Currently not available. | ||
Data powered by ATTOM Data Solutions. Copyright© 2026. Information deemed reliable but not guaranteed.
Schools
Schools nearby 1015 Ohio Avenue
| Schools in attendance boundaries | Grades | Distance | Rating |
|---|---|---|---|
| Loading... | |||
| Schools nearby | Grades | Distance | Rating |
|---|---|---|---|
| Loading... | |||
Data powered by ATTOM Data Solutions. Copyright© 2026. Information deemed reliable but not guaranteed.
The schools shown represent both the assigned schools and schools by distance based on local school and district attendance boundaries. Attendance boundaries change based on various factors and proximity does not guarantee enrollment eligibility. Please consult your real estate agent and/or the school district to confirm the schools this property is zoned to attend. Information is deemed reliable but not guaranteed.
SchoolDigger ® Rating
The SchoolDigger rating system is a 1-5 scale with 5 as the highest rating. SchoolDigger ranks schools based on test scores supplied by each state's Department of Education. They calculate an average standard score by normalizing and averaging each school's test scores across all tests and grades.
Coming soon properties will soon be on the market, but are not yet available for showings.