$900,000
Off-Market Date: 10/20/20251108 Fox Lake Drive Lakeland, FL 33809
Pending MLS# L4956235
12 beds 9 baths 5,550 sq ft Multi-family
Details for 1108 Fox Lake Drive
MLS# L4956235
Description for 1108 Fox Lake Drive, Lakeland, FL, 33809
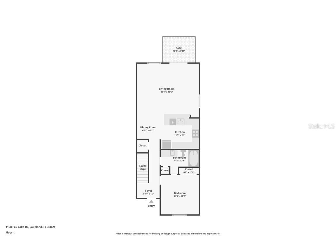
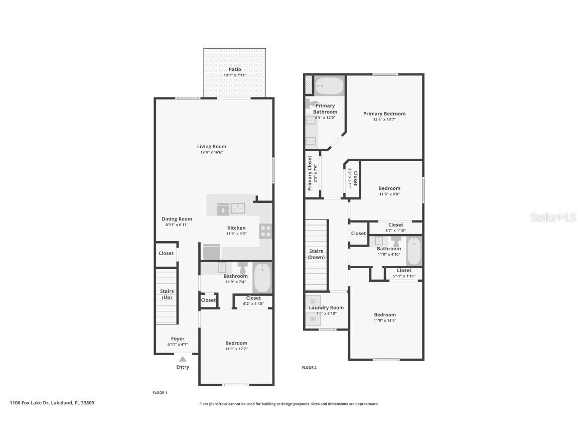
Under contract-accepting backup offers. WOW! Great Properties attract Great Tenants who pay Top Rents! This is a great property! This almost New 2024 Constriction Triplex features Three 4 bed/3 bath units that are 1,850sf each. Built by one of Lakeland’s Premier Builder’s it features higher quality finishes than what is included in most new construction single family homes. The exterior construction consists of two story block walls. There are 9' foot ceilings on both the first and second floors. The first floor features an open great room concept with U-Shaped kitchens with white shaker cabinets, stainless appliances including slide in ranges, granite counter tops, recessed ceiling lighting, and breakfast bar. The first floor also has Bedroom 4 which is an En Suite, perfect for multi generational living or a guest room. It has a low threshold walk in shower, linen closet, granite vanity top and also hallway access for guests. The Rear Patio Slider Door in the great room has internal blinds. On the 2nd floor you have the Primary Bedroom with double closets. The Primary Bath has a walk in shower and double sink vanity with granite vanity top. Bedrooms 2 and 3 share a hall accessed bathroom with tub/shower combo. There is also a laundry room on the 2nd floor that includes washer and dryer. All units feature Two Panel Doors, Premium Door Hardware, Plumbing Fixtures & Vinyl Plank flooring throughout. No Carpet! City Water and Sewer. Each unit has it's own Water and Electric meters. This property is conveniently located just Two Blocks North of Duff Road. The Blue Line 2 Bus Stop is about a 7 minute walk. It is under 4 miles to the I-4 and Grocery (Publix, Walmart, and Dollar General), Banks, Restaurants, and Pharmacies are also within walking distance. Please click Virtual Tour to see full 3D interactive tour of unit 1108. 1102 and 1104 are currently tenant occupied and can be viewed during inspection period with accepted offer. Unit 1108 is currently used as an Airbnb Short Term Rental and may be viewed on vacant days with appointment. Furnishings in 1108 are available for purchase. This property has three Property Tax ID's. Fast closing is available and also 1031 Exchange friendly. 10 day inspection max. Minimum 1% Escrow Deposit on Finance offers and 5% on Cash Offers. Net income based on Gross Revenue minus estimated Taxes & Insurance. All dimensions are estimated Buyer/Buyers agent to verify. This is a very rare opportunity! Call Today!
Listing Information
Property Type: Residential, Triplex
Status: Pending
Bedrooms: 12
Bathrooms: 9
Lot Size: 0.26 Acres
Square Feet: 5,550 sq ft
Year Built: 2024
Stories: 2 Story
Construction: Block,Stucco
Construction Display: New Construction
Subdivision: Fox Lakes
Foundation: Slab
Number Of Units Total: 3
County: Polk
Construction Status: New Construction
Additonal Room Information
Laundry: Laundry Room, Upper Level, Electric Dryer Hookup, Inside, Washer Hookup
Interior Features
Appliances: Electric Water Heater, Dishwasher, Dryer, Microwave, Range, Refrigerator, Washer
Flooring: Luxury Vinyl
Additional Interior Features: Ceiling Fan(s), Open Floorplan, Stone Counters, Kitchen/Family Room Combo, Main Level Primary, Upper Level Primary, High Ceilings
Utilities
Water: Public
Sewer: Public Sewer
Other Utilities: Cable Available,Cable Connected,Electricity Connected,High Speed Internet Available,Municipal Utilities,Sewer Connected,Water Connected
Cooling: Ceiling Fan(s), Central Air
Heating: Electric, Central
Exterior / Lot Features
Parking Description: driveway, Off Street, Assigned
Roof: Shingle
Lot Dimensions: 82x134
Additional Exterior/Lot Features: Outdoor Grill, Lighting, Near Public Transit, Dead End, Outside City Limits
Community Features
Security Features: Security Lights, Fire Hydrant(s), Smoke Detector(s)
Unit Information
Unit 1 Units Total: 1
Unit 1 Actual Rent: 2700
Unit 1 Baths Total: 3
Unit 1 Beds Total: 4
Unit 2 Units Total: 2
Unit 2 Actual Rent: 2300
Unit 2 Baths Total: 3
Unit 2 Beds Total: 4
Driving Directions
From I-4 at Exit 32 go North on US HWY 98 approximately 3.7 miles. Take right going East on to Fox Lake Dr.. Property is first building on the right. Fox Lake Dr. is 2 blocks North of Duff Rd.
Financial Considerations
Terms: Cash,Conventional,FHA,Private Financing Available,USDA Loan,VA Loan
Tenant Pays: Electricity,Sewer,Water
Gross Income: 87600
Tax/Property ID: 23-27-13-000931-000941
Tax Amount: 11157.57
Tax Year: 2025
A broker reciprocity listing courtesy: NUGGET REALTY
Based on information provided by Stellar MLS as distributed by the MLS GRID. Information from the Internet Data Exchange is provided exclusively for consumers’ personal, non-commercial use, and such information may not be used for any purpose other than to identify prospective properties consumers may be interested in purchasing. This data is deemed reliable but is not guaranteed to be accurate by Edina Realty, Inc., or by the MLS. Edina Realty, Inc., is not a multiple listing service (MLS), nor does it offer MLS access.
Copyright 2026 Stellar MLS as distributed by the MLS GRID. All Rights Reserved.
Sales History & Tax Summary for 1108 Fox Lake Drive
Sales History
| Date | Price | |
|---|---|---|
| Currently not available. | ||
Tax Summary
| Tax Year | Estimated Market Value | Total Tax |
|---|---|---|
| Currently not available. | ||
Data powered by ATTOM Data Solutions. Copyright© 2026. Information deemed reliable but not guaranteed.
Schools
Schools nearby 1108 Fox Lake Drive
| Schools in attendance boundaries | Grades | Distance | Rating |
|---|---|---|---|
| Loading... | |||
| Schools nearby | Grades | Distance | Rating |
|---|---|---|---|
| Loading... | |||
Data powered by ATTOM Data Solutions. Copyright© 2026. Information deemed reliable but not guaranteed.
The schools shown represent both the assigned schools and schools by distance based on local school and district attendance boundaries. Attendance boundaries change based on various factors and proximity does not guarantee enrollment eligibility. Please consult your real estate agent and/or the school district to confirm the schools this property is zoned to attend. Information is deemed reliable but not guaranteed.
SchoolDigger ® Rating
The SchoolDigger rating system is a 1-5 scale with 5 as the highest rating. SchoolDigger ranks schools based on test scores supplied by each state's Department of Education. They calculate an average standard score by normalizing and averaging each school's test scores across all tests and grades.
Coming soon properties will soon be on the market, but are not yet available for showings.