$425,000
1250 Norton Avenue NE Fridley, MN 55432
For Sale MLS# 6816909
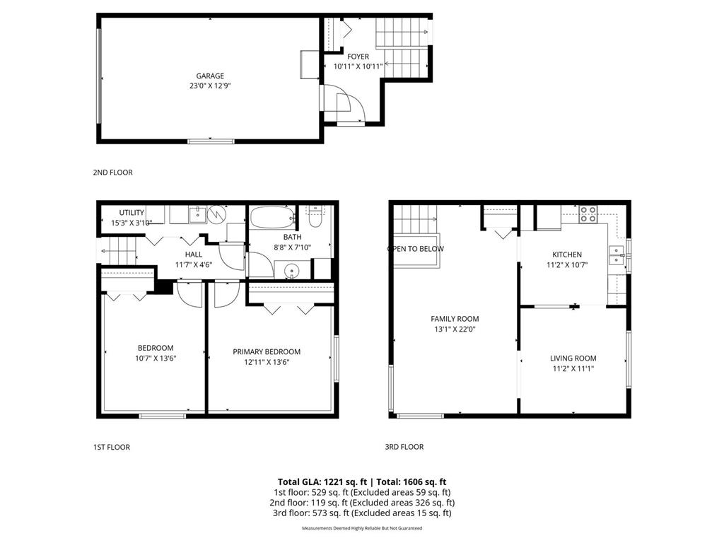
4 beds 2 baths 2,056 sq ft Multi-family
Details for 1250 Norton Avenue NE
MLS# 6816909
Description for 1250 Norton Avenue NE, Fridley, MN, 55432
Discover this charming 2-bedroom, 1-bath duplex that blends comfort, convenience, and value. The spacious open-concept living and dining area is filled with natural light, creating a warm and welcoming atmosphere. The functional kitchen offers ample storage and modern appliances, while both bedrooms feature generous closet space. Enjoy a private backyard with deck-ideal for outdoor dining or quiet relaxation. Located in a desirable neighborhood close to schools, shopping, and major commuter routes, this property is an excellent opportunity for first-time buyers or investors looking for a low-maintenance addition to their portfolio. Don't miss your chance to own this well-kept gem!
Listing Information
Property Type: Multi-family, Duplex Side by Side
Status: Active
Bedrooms: 4
Bathrooms: 2
Lot Size: 0.24 Acres
Square Feet: 2,056 sq ft
Year Built: 1979
Foundation: 3,212 sq ft
Garage: Yes
Stories: 2 Stories
Subdivision: Norton Ave Homesites
Number Of Units Total: 2
County: Anoka
Days On Market: 33
Construction Status: Previously Owned
School Information
District: 16 - Spring Lake Park
Interior Features
Square Footage above: 1,116 sq ft
Square Footage below: 940 sq ft
Basement: Finished (Livable)
Utilities
Water: City Water/Connected
Sewer: City Sewer/Connected
Heating: Forced Air, Natural Gas
Exterior / Lot Features
Attached Garage: Attached Garage
Garage Spaces: 2
Parking Description: Attached Garage, Garage Dimensions - 46x25.8, Garage Sq Ft - 593.0
Exterior: Vinyl
Lot Dimensions: 79x134
Unit Information
Unit 1 Units Total: 2
Unit 1 Actual Rent: 1312
Unit 1 Baths Total: 1
Unit 1 Beds Total: 2
Unit 1 Rooms Total: 7
Driving Directions
From Hwy 65 go East on 73rd Ave NE. Take a right on Central Ave. Take a right on Norton.
Financial Considerations
Other Annual Tax: $5,793
Gross Income: 333957
Expense: 6345.27
Tax/Property ID: 123024310036
Tax Amount: 5275
Tax Year: 2025
HomeStead Description: Non-Homesteaded
A broker reciprocity listing courtesy: eXp Realty
The data relating to real estate for sale on this web site comes in part from the Broker Reciprocity℠ Program of the Regional Multiple Listing Service of Minnesota, Inc. Real estate listings held by brokerage firms other than Edina Realty, Inc. are marked with the Broker Reciprocity℠ logo or the Broker Reciprocity℠ thumbnail and detailed information about them includes the name of the listing brokers. Edina Realty, Inc. is not a Multiple Listing Service (MLS), nor does it offer MLS access. This website is a service of Edina Realty, Inc., a broker Participant of the Regional Multiple Listing Service of Minnesota, Inc. IDX information is provided exclusively for consumers personal, non-commercial use and may not be used for any purpose other than to identify prospective properties consumers may be interested in purchasing. Open House information is subject to change without notice. Information deemed reliable but not guaranteed.
Copyright 2025 Regional Multiple Listing Service of Minnesota, Inc. All Rights Reserved.
Payment Calculator
Interest rate and annual percentage rate (APR) are based on current market conditions, are for informational purposes only, are subject to change without notice and may be subject to pricing add-ons related to property type, loan amount, loan-to-value, credit score and other variables. Estimated closing costs used in the APR calculation are assumed to be paid by the borrower at closing. If the closing costs are financed, the loan, APR and payment amounts will be higher. If the down payment is less than 20%, mortgage insurance may be required and could increase the monthly payment and APR. Contact us for details. Additional loan programs may be available. Accuracy is not guaranteed, and all products may not be available in all borrower's geographical areas and are based on their individual situation. This is not a credit decision or a commitment to lend.
Sales History & Tax Summary for 1250 Norton Avenue NE
Sales History
| Date | Price | Change |
|---|---|---|
| Currently not available. | ||
Tax Summary
| Tax Year | Estimated Market Value | Total Tax |
|---|---|---|
| Currently not available. | ||
Data powered by ATTOM Data Solutions. Copyright© 2025. Information deemed reliable but not guaranteed.
Schools
Schools nearby 1250 Norton Avenue NE
| Schools in attendance boundaries | Grades | Distance | Rating |
|---|---|---|---|
| Loading... | |||
| Schools nearby | Grades | Distance | Rating |
|---|---|---|---|
| Loading... | |||
Data powered by ATTOM Data Solutions. Copyright© 2025. Information deemed reliable but not guaranteed.
The schools shown represent both the assigned schools and schools by distance based on local school and district attendance boundaries. Attendance boundaries change based on various factors and proximity does not guarantee enrollment eligibility. Please consult your real estate agent and/or the school district to confirm the schools this property is zoned to attend. Information is deemed reliable but not guaranteed.
SchoolDigger ® Rating
The SchoolDigger rating system is a 1-5 scale with 5 as the highest rating. SchoolDigger ranks schools based on test scores supplied by each state's Department of Education. They calculate an average standard score by normalizing and averaging each school's test scores across all tests and grades.
Coming soon properties will soon be on the market, but are not yet available for showings.