1313-1315 SE 24th Avenue Cape Coral, FL 33990
For Sale MLS# 225032471
4 beds 4 baths Multi-family
Details for 1313-1315 SE 24th Avenue
MLS# 225032471
Description for 1313-1315 SE 24th Avenue, Cape Coral, FL, 33990
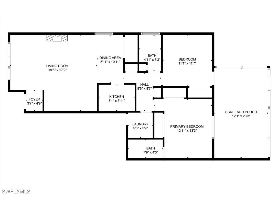
An incredible investment opportunity awaits with this beautifully maintained and recently updated duplex at 1313-1315 SE 24th Ave, Cape Coral! Both units are immaculate, offering modern finishes and move-in-ready appeal. Whether you're an investor looking for immediate rental income or a homeowner seeking to live in one side while the other offsets your costs, this property is a must-see. Each spacious unit features 2 bedrooms, 2 bathrooms, and an open-concept layout, perfect for comfortable living. Updates throughout ensure a fresh, modern feel, making this property highly desirable for tenants and owners alike. Both sides are currently rented, providing a turnkey income stream in a high-demand rental area. Conveniently located near shopping, dining, schools, and major roadways, this duplex offers strong rental potential and long-term value. Whether you're expanding your investment portfolio or searching for a smart way to own a home, this opportunity won’t last long! Call today to schedule a showing and secure this incredible duplex!
Listing Information
Property Type: Residential, Duplex
Status: Active
Bedrooms: 4
Bathrooms: 4
Lot Size: 0.24 Acres
Year Built: 1979
Construction: Block,Concrete,Stucco
Subdivision: Cape Coral
Number Of Units Total: 2
County: Lee
Days On Market: 216
Construction Status: Resale
Room Information
Bathrooms
Full Baths: 4
Interior Features
Flooring: Tile
Doors/Windows: Jalousie, Single Hung
Utilities
Water: Assessment Paid
Sewer: Assessment Paid
Other Utilities: Cable Available
Cooling: Electric, Central Air, Ceiling Fan(s)
Heating: Central, Electric
Exterior / Lot Features
Roof: Shingle
Lot Dimensions: 80 x 133 x 80 x 133
Zoning: R3-D
Additional Exterior/Lot Features: Sprinkler/Irrigation, Patio, Patio, Sprinklers Automatic, Other
Driving Directions
Viscaya or Hancock Bridge Parkway to South on SE 24th Ave to property.
Financial Considerations
Terms: All Financing Considered,Cash,FHA,VA Loan
Tenant Pays: Application Fee,Cable TV,Electricity,Internet,Pet Deposit,Sewer,Water
Expense: 1080
Tax/Property ID: 20-44-24-C3-01401.0030
Tax Amount: 5984.51
Tax Year: 2024
A broker reciprocity listing courtesy: SWFL Choice Realty
Based on information provided by FGCMLS. Internet Data Exchange information is provided exclusively for consumers’ personal, non-commercial use, and such information may not be used for any purpose other than to identify prospective properties consumers may be interested in purchasing. This data is deemed reliable but is not guaranteed to be accurate by Edina Realty, Inc., or by the MLS. Edina Realty, Inc., is not a multiple listing service (MLS), nor does it offer MLS access.
Copyright 2026 FGCMLS. All Rights Reserved.
Payment Calculator
Interest rate and annual percentage rate (APR) are based on current market conditions, are for informational purposes only, are subject to change without notice and may be subject to pricing add-ons related to property type, loan amount, loan-to-value, credit score and other variables. Estimated closing costs used in the APR calculation are assumed to be paid by the borrower at closing. If the closing costs are financed, the loan, APR and payment amounts will be higher. If the down payment is less than 20%, mortgage insurance may be required and could increase the monthly payment and APR. Contact us for details. Additional loan programs may be available. Accuracy is not guaranteed, and all products may not be available in all borrower's geographical areas and are based on their individual situation. This is not a credit decision or a commitment to lend.
Sales History & Tax Summary for 1313-1315 SE 24th Avenue
Sales History
| Date | Price | |
|---|---|---|
| Currently not available. | ||
Tax Summary
| Tax Year | Estimated Market Value | Total Tax |
|---|---|---|
| Currently not available. | ||
Data powered by ATTOM Data Solutions. Copyright© 2026. Information deemed reliable but not guaranteed.
Schools
Schools nearby 1313-1315 SE 24th Avenue
| Schools in attendance boundaries | Grades | Distance | Rating |
|---|---|---|---|
| Loading... | |||
| Schools nearby | Grades | Distance | Rating |
|---|---|---|---|
| Loading... | |||
Data powered by ATTOM Data Solutions. Copyright© 2026. Information deemed reliable but not guaranteed.
The schools shown represent both the assigned schools and schools by distance based on local school and district attendance boundaries. Attendance boundaries change based on various factors and proximity does not guarantee enrollment eligibility. Please consult your real estate agent and/or the school district to confirm the schools this property is zoned to attend. Information is deemed reliable but not guaranteed.
SchoolDigger ® Rating
The SchoolDigger rating system is a 1-5 scale with 5 as the highest rating. SchoolDigger ranks schools based on test scores supplied by each state's Department of Education. They calculate an average standard score by normalizing and averaging each school's test scores across all tests and grades.
Coming soon properties will soon be on the market, but are not yet available for showings.