1417 Marion Street Saint Paul, MN 55117
For Sale MLS# 7016441
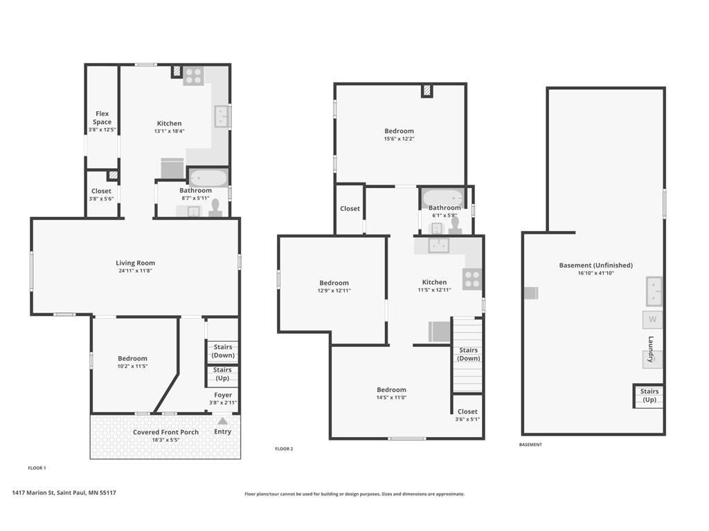
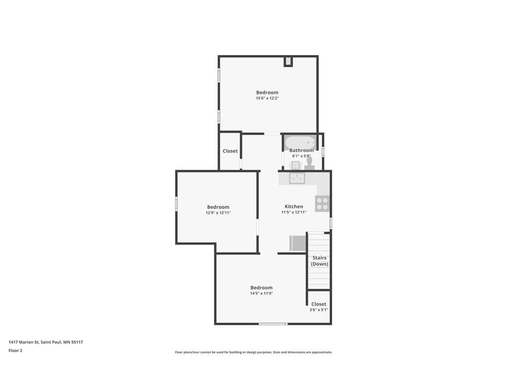
3 beds 2 baths 1,361 sq ft Multi-family
Details for 1417 Marion Street
MLS# 7016441
Description for 1417 Marion Street, Saint Paul, MN, 55117
Opportunity awaits at 1417 Marion Street! This duplex sits on a rare double lot, offering incredible flexibility for investors, owner-occupants, or those looking to create generational living. With the potential to build on the additional lot, sell it separately, or simply enjoy the extra outdoor space, the possibilities here are endless.The home has solid bones and is ready for your vision. While it could benefit from cosmetic updates, it provides the perfect chance to add value and truly make it your own. Whether you’re looking for an income-producing property, a multi-generational setup, or a smart long-term investment, this property delivers both space and potential.
Listing Information
Property Type: Multi-family, Duplex Up and Down
Status: Active
Bedrooms: 3
Bathrooms: 2
Lot Size: 0.32 Acres
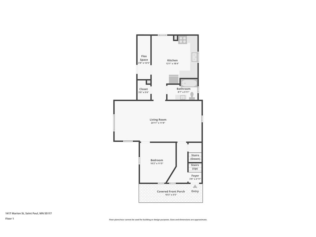
Square Feet: 1,361 sq ft
Year Built: 1890
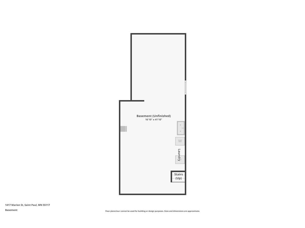
Foundation: 690 sq ft
Stories: 2 Stories
Subdivision: Hagers Sub Of Lots, 1,
Number Of Units Total: 2
County: Ramsey
Days On Market: 37
Construction Status: Previously Owned
School Information
District: 625 - St. Paul
Additonal Room Information
Laundry: In Basement
Interior Features
Square Footage above: 1,361 sq ft
Basement: Unfinished
Utilities
Water: City Water - In Street
Sewer: City Sewer - In Street
Heating: Forced Air, Natural Gas
Exterior / Lot Features
Parking Description: On-Street Parking Only, Garage Dimensions - 0, Garage Sq Ft - 0.00
Exterior: Cement Board
Lot Dimensions: 81x174x80x175
Zoning: Residential-Single Family
Driving Directions
Rice street to Arlington Ave. West on Arlington Ave. South on Marion Street ( Left) Home is on the Right.
Financial Considerations
Tax/Property ID: 242923410144
Tax Amount: 3442
Tax Year: 2025
HomeStead Description: Homesteaded
A broker reciprocity listing courtesy: Pemberton RE
The data relating to real estate for sale on this web site comes in part from the Broker Reciprocity℠ Program of the Regional Multiple Listing Service of Minnesota, Inc. Real estate listings held by brokerage firms other than Edina Realty, Inc. are marked with the Broker Reciprocity℠ logo or the Broker Reciprocity℠ thumbnail and detailed information about them includes the name of the listing brokers. Edina Realty, Inc. is not a Multiple Listing Service (MLS), nor does it offer MLS access. This website is a service of Edina Realty, Inc., a broker Participant of the Regional Multiple Listing Service of Minnesota, Inc. IDX information is provided exclusively for consumers personal, non-commercial use and may not be used for any purpose other than to identify prospective properties consumers may be interested in purchasing. Open House information is subject to change without notice. Information deemed reliable but not guaranteed.
Copyright 2026 Regional Multiple Listing Service of Minnesota, Inc. All Rights Reserved.
Payment Calculator
Interest rate and annual percentage rate (APR) are based on current market conditions, are for informational purposes only, are subject to change without notice and may be subject to pricing add-ons related to property type, loan amount, loan-to-value, credit score and other variables. Estimated closing costs used in the APR calculation are assumed to be paid by the borrower at closing. If the closing costs are financed, the loan, APR and payment amounts will be higher. If the down payment is less than 20%, mortgage insurance may be required and could increase the monthly payment and APR. Contact us for details. Additional loan programs may be available. Accuracy is not guaranteed, and all products may not be available in all borrower's geographical areas and are based on their individual situation. This is not a credit decision or a commitment to lend.
Sales History & Tax Summary for 1417 Marion Street
Sales History
| Date | Price | |
|---|---|---|
| Currently not available. | ||
Tax Summary
| Tax Year | Estimated Market Value | Total Tax |
|---|---|---|
| Currently not available. | ||
Data powered by ATTOM Data Solutions. Copyright© 2026. Information deemed reliable but not guaranteed.
Schools
Schools nearby 1417 Marion Street
| Schools in attendance boundaries | Grades | Distance | Rating |
|---|---|---|---|
| Loading... | |||
| Schools nearby | Grades | Distance | Rating |
|---|---|---|---|
| Loading... | |||
Data powered by ATTOM Data Solutions. Copyright© 2026. Information deemed reliable but not guaranteed.
The schools shown represent both the assigned schools and schools by distance based on local school and district attendance boundaries. Attendance boundaries change based on various factors and proximity does not guarantee enrollment eligibility. Please consult your real estate agent and/or the school district to confirm the schools this property is zoned to attend. Information is deemed reliable but not guaranteed.
SchoolDigger ® Rating
The SchoolDigger rating system is a 1-5 scale with 5 as the highest rating. SchoolDigger ranks schools based on test scores supplied by each state's Department of Education. They calculate an average standard score by normalizing and averaging each school's test scores across all tests and grades.
Coming soon properties will soon be on the market, but are not yet available for showings.