1502 High Street Leesburg, FL 34748
For Sale MLS# O6355283
10,883 sq ft Multi-family
Details for 1502 High Street
MLS# O6355283
Description for 1502 High Street, Leesburg, FL, 34748
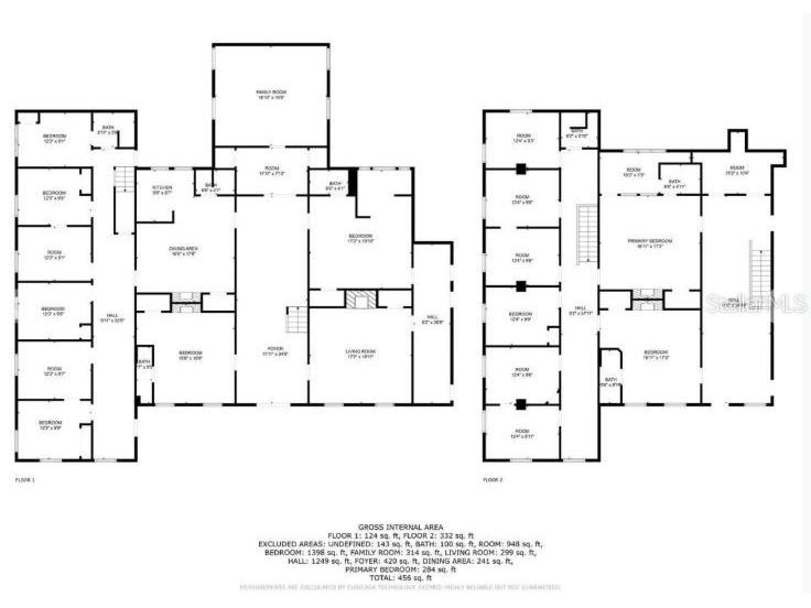
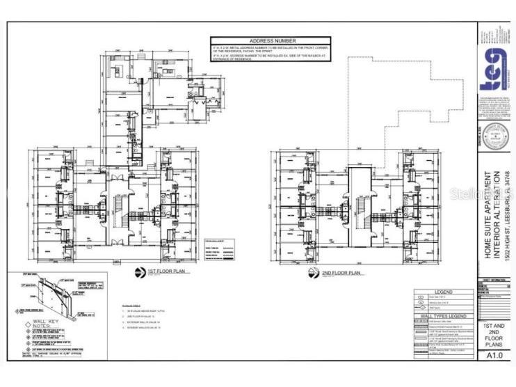
Here is a chance to convert this nine-unit property into a cash-flowing, 10-unit multifamily residence. Located in Leesburg, a market with strong tenant demand and long-term growth, this property holds tremendous potential to address an undersupplied rental market and achieve significant returns. A complete renovation, estimated at $400,000, will be required to achieve its maximum potential. Repairs and upgrades will include reroofing, general system maintenance, cosmetic improvements, updated floor plans, and modern interiors. While this project will require significant work, it presents an opportunity for incredible returns, with an After-Repair Value (ARV) of $1,700,000. This property is a fantastic opportunity to provide value for tenants in a location where demand is strong. Don't miss out on this chance to create affordable and comfortable housing for 10 families. Contact your EquityPro Advisor today.
Listing Information
Property Type: Residential, Multi Family
Status: Active
Lot Size: 0.64 Acres
Square Feet: 10,883 sq ft
Year Built: 1910
Construction: Wood Frame
Construction Display: New Construction
Subdivision: Leesburg Archbell Sub
Foundation: Slab
Number Of Units Total: 9
County: Lake
Construction Status: Fixer
Interior Features
Flooring: Wood
Utilities
Water: Public
Sewer: Public Sewer
Other Utilities: Municipal Utilities
Exterior / Lot Features
Roof: Shingle
Lot Dimensions: 140x199
Additional Exterior/Lot Features: Other
Driving Directions
From Fl Tpke Take the exit toward US 27N Merge onto US27N Left onto High St Destination will be on the right
Financial Considerations
Terms: Cash
Tax/Property ID: 27-19-24-0200-002-01100
Tax Amount: 3357.31
Tax Year: 2024
A broker reciprocity listing courtesy: EQUITYPRO LLC
Based on information provided by Stellar MLS as distributed by the MLS GRID. Information from the Internet Data Exchange is provided exclusively for consumers’ personal, non-commercial use, and such information may not be used for any purpose other than to identify prospective properties consumers may be interested in purchasing. This data is deemed reliable but is not guaranteed to be accurate by Edina Realty, Inc., or by the MLS. Edina Realty, Inc., is not a multiple listing service (MLS), nor does it offer MLS access.
Copyright 2026 Stellar MLS as distributed by the MLS GRID. All Rights Reserved.
Payment Calculator
Interest rate and annual percentage rate (APR) are based on current market conditions, are for informational purposes only, are subject to change without notice and may be subject to pricing add-ons related to property type, loan amount, loan-to-value, credit score and other variables. Estimated closing costs used in the APR calculation are assumed to be paid by the borrower at closing. If the closing costs are financed, the loan, APR and payment amounts will be higher. If the down payment is less than 20%, mortgage insurance may be required and could increase the monthly payment and APR. Contact us for details. Additional loan programs may be available. Accuracy is not guaranteed, and all products may not be available in all borrower's geographical areas and are based on their individual situation. This is not a credit decision or a commitment to lend.
Sales History & Tax Summary for 1502 High Street
Sales History
| Date | Price | |
|---|---|---|
| Currently not available. | ||
Tax Summary
| Tax Year | Estimated Market Value | Total Tax |
|---|---|---|
| Currently not available. | ||
Data powered by ATTOM Data Solutions. Copyright© 2026. Information deemed reliable but not guaranteed.
Schools
Schools nearby 1502 High Street
| Schools in attendance boundaries | Grades | Distance | Rating |
|---|---|---|---|
| Loading... | |||
| Schools nearby | Grades | Distance | Rating |
|---|---|---|---|
| Loading... | |||
Data powered by ATTOM Data Solutions. Copyright© 2026. Information deemed reliable but not guaranteed.
The schools shown represent both the assigned schools and schools by distance based on local school and district attendance boundaries. Attendance boundaries change based on various factors and proximity does not guarantee enrollment eligibility. Please consult your real estate agent and/or the school district to confirm the schools this property is zoned to attend. Information is deemed reliable but not guaranteed.
SchoolDigger ® Rating
The SchoolDigger rating system is a 1-5 scale with 5 as the highest rating. SchoolDigger ranks schools based on test scores supplied by each state's Department of Education. They calculate an average standard score by normalizing and averaging each school's test scores across all tests and grades.
Coming soon properties will soon be on the market, but are not yet available for showings.