$1,228,000
Off-Market Date: 02/19/20261550 Lake Baldwin Lane Orlando, FL 32814
Pending MLS# O6368227
7 beds 5 baths 3,150 sq ft Multi-family
Details for 1550 Lake Baldwin Lane
MLS# O6368227
Description for 1550 Lake Baldwin Lane, Orlando, FL, 32814
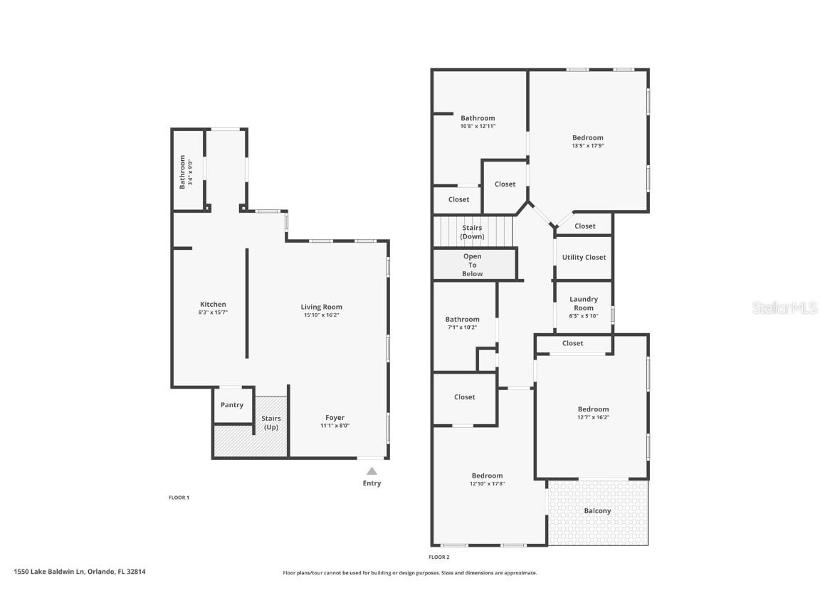
Under contract-accepting backup offers. Imagine living, working, and earning — all in one beautifully updated space. This rare 3-in-1 live/work property offers the ultimate blend of modern comfort, flexibility, and built-in income potential in the scenic, highly desired community, Baldwin Park. The two-story townhome features 3 bedrooms and 2.5 bathrooms, thoughtfully updated with new luxury vinyl flooring, plush new carpet in all bedrooms, and fresh interior paint throughout. The spacious kitchen is designed for both function and style, showcasing updated cabinetry, new appliances, granite countertops, and a built-in workstation—perfect for today’s work-from-home lifestyle. A convenient half bath on the main level adds everyday ease. Upstairs, the primary suite is a true retreat with dual walk-in closets and a luxuriously remodeled en-suite bath. Two additional generously sized bedrooms each offer French door access to a private balcony, overlooking the charming neighborhood. A full laundry room, abundant storage, and an attached two-car garage complete the townhome’s appeal. Adding to the versatility, the separate, fully updated 1-bedroom, 1-bath apartment is located upstairs at the rear of the building—ideal for generating rental income, hosting guests, or housing extended family. This unit features new cabinetry, appliances, quartz countertops, double vanities, custom mirror, new fixtures throughout, custom walk-in closet and includes one assigned parking space. The third component is a street-accessible commercial unit with two large offices, a spacious storage room, and a half bath, accessible from both the courtyard and directly from the sidewalk. Perfect for a boutique, professional office, or service-based business, this space offers excellent visibility among the established businesses lining Lake Baldwin Lane—creating yet another income-producing opportunity. Recent upgrades provide peace of mind, including new A/C units installed in 2024. New roof installed December 2025, new exterior paint completed by HOA in 2024. Association also maintains the courtyard and landscaping, allowing you to enjoy a low-maintenance lifestyle while maximizing flexibility and earning potential. Baldwin Park isn’t just a place to live — it’s a way of life. Step outside your door and enjoy a vibrant town center filled with shops, restaurants, and everyday conveniences, all set against a beautifully walkable community. Scenic trails wind throughout the neighborhood, including a stunning 2.5-mile path along Lake Baldwin, perfect for morning jogs or evening strolls. Pet lovers will appreciate the nearby dog park with lake access, giving your furry friends space to play and cool off. Residents also enjoy an exceptional array of amenities, including multiple parks and playgrounds, three community pools, and fully equipped fitness centers, all conveniently located within the neighborhood. Whether you’re looking to live stylishly, run a business steps from home, or invest in multiple income streams, this exceptional property delivers a lifestyle that truly works for you. Don't miss this opportunity! Schedule your private showing today!
Listing Information
Property Type: Residential, Triplex
Status: Pending
Bedrooms: 7
Bathrooms: 5
Lot Size: 0.08 Acres
Square Feet: 3,150 sq ft
Year Built: 2006
Garage: Yes
Stories: 2 Story
Construction: Block,Stucco,Wood Frame
Property Attached: Yes
Construction Display: New Construction
Subdivision: Baldwin Park Unit 3 Rep 1
Foundation: Slab
Number Of Units Total: 3
County: Orange
Construction Status: New Construction
School Information
Elementary: Baldwin Park Elementary
Middle: Glenridge Middle
High: Winter Park High
Additonal Room Information
Laundry: Inside, Laundry Room, Upper Level, Electric Dryer Hookup
Interior Features
Appliances: Electric Water Heater, Washer, Microwave, Range, Refrigerator, Dishwasher, Disposal, Dryer
Flooring: Carpet,Ceramic Tile,Luxury Vinyl
Doors/Windows: Window Treatments, Drapes, Blinds
Additional Interior Features: Ceiling Fan(s), Eat-In Kitchen, Walk-In Closet(s), Stone Counters, Upper Level Primary, Kitchen/Family Room Combo, Open Floorplan, High Ceilings, Window Treatments
Utilities
Water: Public
Sewer: Public Sewer
Other Utilities: Electricity Connected,High Speed Internet Available,Municipal Utilities,Underground Utilities
Cooling: Central Air, Ceiling Fan(s)
Heating: Electric, Central
Exterior / Lot Features
Garage Spaces: 2
Parking Description: Garage, Garage Door Opener, Guest, Garage Faces Rear
Roof: Shingle
Pool: Community
Lot View: Garden
Additional Exterior/Lot Features: Sprinkler/Irrigation, French Patio Doors, Rain Gutters, Private Entrance, Balcony, Balcony, Side Porch, Front Porch, Level, Flat, Near Public Transit, Outside City Limits
Community Features
Community Features: Golf Carts OK, Dog Park, Park, Fishing, Fitness, Clubhouse, Street Lights, Playground, Lake, Pool, Sidewalks
Security Features: Smoke Detector(s), Fire Hydrant(s)
Association Amenities: Park, Clubhouse, Playground, Fitness Center
Homeowners Association: Yes
HOA Dues: $1,058 / Monthly
Unit Information
Unit 1 Units Total: 1
Unit 1 Actual Rent: 2000
Unit 1 Baths Total: 1
Unit 1 Beds Total: 3
Unit 2 Units Total: 1
Unit 2 Actual Rent: 4400
Unit 2 Baths Total: 3
Unit 2 Beds Total: 3
Unit 3 Units Total: 1
Unit 3 Actual Rent: 2100
Unit 3 Baths Total: 1
Unit 3 Beds Total: 1
Driving Directions
From East Colonial head north on Bennett Road, turn right on New Broad Street, turn right on Common Way Road, turn left on Lake Baldwin Lane. Building is located on left side.
Financial Considerations
Terms: Conventional,FHA,VA Loan
Tenant Pays: Electricity
Tax/Property ID: 21-22-30-0528-05-700
Tax Amount: 13686.73
Tax Year: 2025
A broker reciprocity listing courtesy: CHARLES RUTENBERG REALTY ORLANDO
Based on information provided by Stellar MLS as distributed by the MLS GRID. Information from the Internet Data Exchange is provided exclusively for consumers’ personal, non-commercial use, and such information may not be used for any purpose other than to identify prospective properties consumers may be interested in purchasing. This data is deemed reliable but is not guaranteed to be accurate by Edina Realty, Inc., or by the MLS. Edina Realty, Inc., is not a multiple listing service (MLS), nor does it offer MLS access.
Copyright 2026 Stellar MLS as distributed by the MLS GRID. All Rights Reserved.
Sales History & Tax Summary for 1550 Lake Baldwin Lane
Sales History
| Date | Price | |
|---|---|---|
| Currently not available. | ||
Tax Summary
| Tax Year | Estimated Market Value | Total Tax |
|---|---|---|
| Currently not available. | ||
Data powered by ATTOM Data Solutions. Copyright© 2026. Information deemed reliable but not guaranteed.
Schools
Schools nearby 1550 Lake Baldwin Lane
| Schools in attendance boundaries | Grades | Distance | Rating |
|---|---|---|---|
| Loading... | |||
| Schools nearby | Grades | Distance | Rating |
|---|---|---|---|
| Loading... | |||
Data powered by ATTOM Data Solutions. Copyright© 2026. Information deemed reliable but not guaranteed.
The schools shown represent both the assigned schools and schools by distance based on local school and district attendance boundaries. Attendance boundaries change based on various factors and proximity does not guarantee enrollment eligibility. Please consult your real estate agent and/or the school district to confirm the schools this property is zoned to attend. Information is deemed reliable but not guaranteed.
SchoolDigger ® Rating
The SchoolDigger rating system is a 1-5 scale with 5 as the highest rating. SchoolDigger ranks schools based on test scores supplied by each state's Department of Education. They calculate an average standard score by normalizing and averaging each school's test scores across all tests and grades.
Coming soon properties will soon be on the market, but are not yet available for showings.