$1,000,000
238 Boundary Boulevard #3 Rotonda West, FL 33947 - ROTONDA RIVER
For Sale MLS# D6143022
9 beds 6 baths 5,885 sq ft Multi-family
Details for 238 Boundary Boulevard #3
MLS# D6143022
Description for 238 Boundary Boulevard #3, Rotonda West, FL, 33947 - ROTONDA RIVER
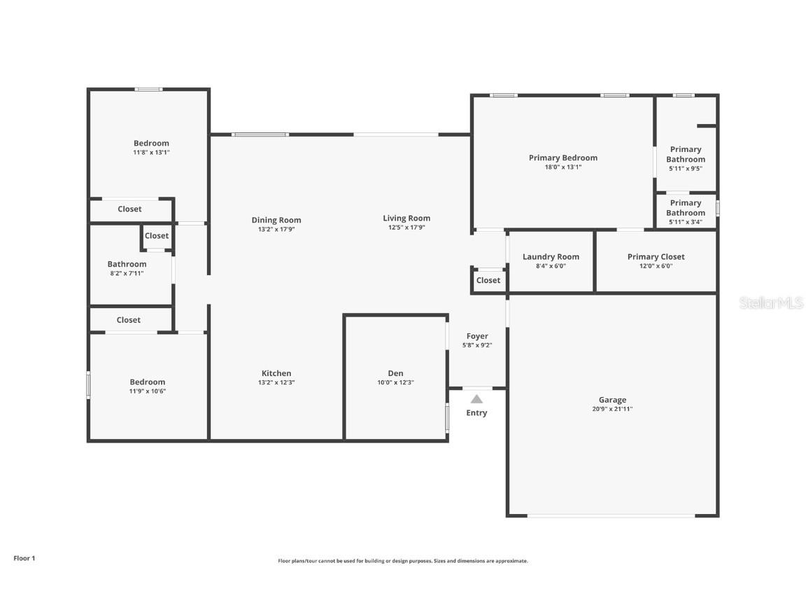
This nearly completed WATERFRONT TRIPLEX in Rotonda West, FL, is approaching its Certificate of Occupancy—an EXCEPTIONAL INVESTMENT OPPORTUNITY! The property includes three units: two with 1,351 sq ft featuring three bedrooms, two bathrooms, and a single-car garage, and a larger third unit offering 1,794 sq ft with three bedrooms, two bathrooms, a TWO-CAR garage, plus an additional OFFICE or BONUS ROOM. The rear porch of the larger unit provides FULL WATER VIEWS. Each ENERGY EFFICIENT residence is equipped with HIGH-END FINISHES including IMPACT-RESISTANT WINDOWS, recessed lighting, ceiling fans, luxury vinyl plank flooring, QUARTZ COUNTERTOPS, stainless steel appliances, shaker-style ivory kitchen and vanity cabinets with soft-close drawers, full-height tile backsplashes in the kitchen, energy-efficient LED lighting, brushed nickel fixtures, and epoxy-coated garage floors, blown in insulation among other premium features. Detailed floorplans show split-bedroom layouts, an open great room and dining area, foyer entry, INDOOR LAUNDRY, and walk-in closets in the primary suites. Located on the freshwater Rotonda River canal, the community offers plentiful outdoor activities such as fishing and exploring 23 miles of canals by kayak, canoe, or small boat. Amenities include five golf courses offering 99 holes, scenic walking and biking trails, a 165-acre park with playgrounds, peaceful lakes, beautiful gardens, and a new community center. Nearby, pristine Gulf Coast beaches like Englewood and Boca Grande are easily accessible. The area is well known for excellent fishing opportunities with numerous marinas, piers, and boating facilities close at hand. For leisure and shopping, downtown Punta Gorda and Englewood’s Dearborn Street feature charming shops, local eateries, and farmers' markets. The property enjoys convenient access to regional and local airports as well! Don’t miss out on this outstanding opportunity for generating substantial RENTAL INCOME! Live in one and rent the other two out!! Please refrain from visiting the property without prior authorization.
Listing Information
Property Type: Residential, Triplex
Status: Active
Bedrooms: 9
Bathrooms: 6
Lot Size: 0.34 Acres
Square Feet: 5,885 sq ft
Year Built: 2025
Garage: Yes
Stories: 1 Story
Construction: Block
Construction Display: New Construction
Subdivision: Rotonda West Pebble Beach
Builder: Calzon Construction Inc
Foundation: Stem Wall
Number Of Units Total: 3
County: Charlotte
Construction Status: New Construction
School Information
Elementary: Vineland Elementary
Middle: L.A. Ainger Middle
High: Lemon Bay High
Additonal Room Information
Laundry: Laundry Room, Inside
Interior Features
Appliances: Electric Water Heater, Dishwasher, Microwave, Range, Refrigerator
Flooring: Luxury Vinyl
Doors/Windows: ENERGY STAR Qualified Windows
Additional Interior Features: Ceiling Fan(s), Walk-In Closet(s), Split Bedrooms, Living/Dining Room, Stone Counters
Utilities
Water: Public
Sewer: Public Sewer
Other Utilities: Cable Available,Electricity Connected,Municipal Utilities,Sewer Connected
Cooling: Ceiling Fan(s), Central Air
Heating: Central, Electric
Exterior / Lot Features
Attached Garage: Attached Garage
Garage Spaces: 4
Parking Description: driveway, Garage, Garage Door Opener
Roof: Shingle
Lot View: Canal,Water
Additional Exterior/Lot Features: Lighting, Rear Porch
Waterfront Details
Standard Water Body: ROTONDA RIVER
Water Front Features: Canal Access
Community Features
Community Features: Playground, Tennis Court(s), Golf, Park, Fishing, Golf Carts OK
Association Amenities: Tennis Court(s), Playground, Trail(s), Park
Homeowners Association: Yes
HOA Dues: $190 / Annually
Unit Information
Unit 1 Units Total: 1
Unit 1 Actual Rent: 2100
Unit 1 Baths Total: 2
Unit 1 Beds Total: 3
Unit 2 Units Total: 1
Unit 2 Actual Rent: 2100
Unit 2 Baths Total: 2
Unit 2 Beds Total: 3
Unit 3 Units Total: 1
Unit 3 Actual Rent: 2800
Unit 3 Baths Total: 2
Unit 3 Beds Total: 3
Driving Directions
From 776 heading east, turn right on Sunnybrook. Enter Rotonda West Community and take right on Boundary and follow to your destination....property on left.
Financial Considerations
Terms: Cash,Conventional
Tax/Property ID: 412022251003
Tax Amount: 1466.77
Tax Year: 2024
A broker reciprocity listing courtesy: RE/MAX ALLIANCE GROUP
Based on information provided by Stellar MLS as distributed by the MLS GRID. Information from the Internet Data Exchange is provided exclusively for consumers’ personal, non-commercial use, and such information may not be used for any purpose other than to identify prospective properties consumers may be interested in purchasing. This data is deemed reliable but is not guaranteed to be accurate by Edina Realty, Inc., or by the MLS. Edina Realty, Inc., is not a multiple listing service (MLS), nor does it offer MLS access.
Copyright 2026 Stellar MLS as distributed by the MLS GRID. All Rights Reserved.
Payment Calculator
Interest rate and annual percentage rate (APR) are based on current market conditions, are for informational purposes only, are subject to change without notice and may be subject to pricing add-ons related to property type, loan amount, loan-to-value, credit score and other variables. Estimated closing costs used in the APR calculation are assumed to be paid by the borrower at closing. If the closing costs are financed, the loan, APR and payment amounts will be higher. If the down payment is less than 20%, mortgage insurance may be required and could increase the monthly payment and APR. Contact us for details. Additional loan programs may be available. Accuracy is not guaranteed, and all products may not be available in all borrower's geographical areas and are based on their individual situation. This is not a credit decision or a commitment to lend.
Sales History & Tax Summary for 238 Boundary Boulevard #3
Sales History
| Date | Price | |
|---|---|---|
| Currently not available. | ||
Tax Summary
| Tax Year | Estimated Market Value | Total Tax |
|---|---|---|
| Currently not available. | ||
Data powered by ATTOM Data Solutions. Copyright© 2026. Information deemed reliable but not guaranteed.
Schools
Schools nearby 238 Boundary Boulevard #3
| Schools in attendance boundaries | Grades | Distance | Rating |
|---|---|---|---|
| Loading... | |||
| Schools nearby | Grades | Distance | Rating |
|---|---|---|---|
| Loading... | |||
Data powered by ATTOM Data Solutions. Copyright© 2026. Information deemed reliable but not guaranteed.
The schools shown represent both the assigned schools and schools by distance based on local school and district attendance boundaries. Attendance boundaries change based on various factors and proximity does not guarantee enrollment eligibility. Please consult your real estate agent and/or the school district to confirm the schools this property is zoned to attend. Information is deemed reliable but not guaranteed.
SchoolDigger ® Rating
The SchoolDigger rating system is a 1-5 scale with 5 as the highest rating. SchoolDigger ranks schools based on test scores supplied by each state's Department of Education. They calculate an average standard score by normalizing and averaging each school's test scores across all tests and grades.
Coming soon properties will soon be on the market, but are not yet available for showings.