2635 Colfax Avenue N Minneapolis, MN 55411
For Sale MLS# 7028244
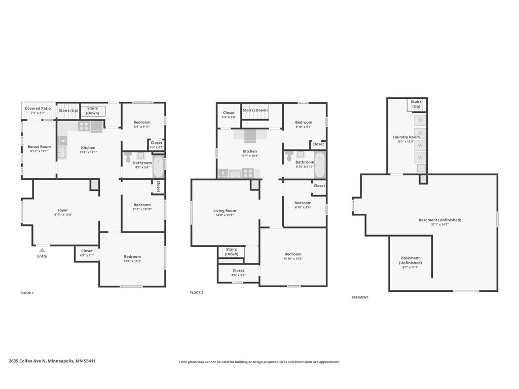
6 beds 2 baths 1,976 sq ft Multi-family
Details for 2635 Colfax Avenue N
MLS# 7028244
Description for 2635 Colfax Avenue N, Minneapolis, MN, 55411
Completely remodeled duplex in 2022 offering the feel and quality of new construction. Nearly every component of the property has been updated, including new roof, siding, windows, doors, trim, flooring, and walls.Both units feature beautifully renovated kitchens with stainless steel appliances, tiled bathrooms, and modern finishes throughout. Major mechanical upgrades include two new high-efficiency furnaces, a new high-efficiency water heater, updated plumbing, and LED lighting throughout the property.This duplex is designed with two spacious units each offering 3 bedrooms, a highly desirable layout for tenants. Each unit also includes its own washer and dryer, with separate basement laundry entrances for convenience. Additional upgrades include new garage doors, stair treads, fresh paint and carpet. Exterior improvements such as east perimeter fencing with double gate, new decking and concrete sidewalk make this property truly move-in ready.A rare opportunity to own a fully updated duplex in Minneapolis with modern systems, strong rental potential, and minimal maintenance for years to come.Unit 1 was occupied by the owner. Unit 2 received $1850 per month rent, and based upon 2022-2024 figures.
Listing Information
Property Type: Multi-family, Duplex Up and Down
Status: Active
Bedrooms: 6
Bathrooms: 2
Lot Size: 0.12 Acres
Square Feet: 1,976 sq ft
Year Built: 1900
Foundation: 994 sq ft
Garage: Yes
Stories: 2 Stories
Subdivision: Fairmount Park Add
Number Of Units Total: 2
County: Hennepin
Days On Market: 33
Construction Status: Previously Owned
School Information
District: 1 - Minneapolis
Additonal Room Information
Laundry: In Basement
Interior Features
Square Footage above: 1,976 sq ft
Basement: Unfinished
Utilities
Water: City Water/Connected
Sewer: City Sewer/Connected
Heating: Forced Air, Natural Gas
Exterior / Lot Features
Garage Spaces: 2
Parking Description: Detached Garage, Garage Sq Ft - 420.0
Exterior: Vinyl
Roof: Age 8 Years or Less
Lot Dimensions: 127x43
Zoning: Residential-Multi-Family,Residential-Single Family
Fencing: Partial, Wood
Additional Exterior/Lot Features: Public Transit (w/in 6 blks), Road Frontage - City
Driving Directions
From Lyndale to 26th. Right on Colfax. The property is is on the left/west side.
Financial Considerations
Tax/Property ID: 0902924440190
Tax Amount: 5533.36
Tax Year: 2025
HomeStead Description: Homesteaded
A broker reciprocity listing courtesy: Market Fare LLC
The data relating to real estate for sale on this web site comes in part from the Broker Reciprocity℠ Program of the Regional Multiple Listing Service of Minnesota, Inc. Real estate listings held by brokerage firms other than Edina Realty, Inc. are marked with the Broker Reciprocity℠ logo or the Broker Reciprocity℠ thumbnail and detailed information about them includes the name of the listing brokers. Edina Realty, Inc. is not a Multiple Listing Service (MLS), nor does it offer MLS access. This website is a service of Edina Realty, Inc., a broker Participant of the Regional Multiple Listing Service of Minnesota, Inc. IDX information is provided exclusively for consumers personal, non-commercial use and may not be used for any purpose other than to identify prospective properties consumers may be interested in purchasing. Open House information is subject to change without notice. Information deemed reliable but not guaranteed.
Copyright 2026 Regional Multiple Listing Service of Minnesota, Inc. All Rights Reserved.
Payment Calculator
Interest rate and annual percentage rate (APR) are based on current market conditions, are for informational purposes only, are subject to change without notice and may be subject to pricing add-ons related to property type, loan amount, loan-to-value, credit score and other variables. Estimated closing costs used in the APR calculation are assumed to be paid by the borrower at closing. If the closing costs are financed, the loan, APR and payment amounts will be higher. If the down payment is less than 20%, mortgage insurance may be required and could increase the monthly payment and APR. Contact us for details. Additional loan programs may be available. Accuracy is not guaranteed, and all products may not be available in all borrower's geographical areas and are based on their individual situation. This is not a credit decision or a commitment to lend.
Sales History & Tax Summary for 2635 Colfax Avenue N
Sales History
| Date | Price | |
|---|---|---|
| Currently not available. | ||
Tax Summary
| Tax Year | Estimated Market Value | Total Tax |
|---|---|---|
| Currently not available. | ||
Data powered by ATTOM Data Solutions. Copyright© 2026. Information deemed reliable but not guaranteed.
Schools
Schools nearby 2635 Colfax Avenue N
| Schools in attendance boundaries | Grades | Distance | Rating |
|---|---|---|---|
| Loading... | |||
| Schools nearby | Grades | Distance | Rating |
|---|---|---|---|
| Loading... | |||
Data powered by ATTOM Data Solutions. Copyright© 2026. Information deemed reliable but not guaranteed.
The schools shown represent both the assigned schools and schools by distance based on local school and district attendance boundaries. Attendance boundaries change based on various factors and proximity does not guarantee enrollment eligibility. Please consult your real estate agent and/or the school district to confirm the schools this property is zoned to attend. Information is deemed reliable but not guaranteed.
SchoolDigger ® Rating
The SchoolDigger rating system is a 1-5 scale with 5 as the highest rating. SchoolDigger ranks schools based on test scores supplied by each state's Department of Education. They calculate an average standard score by normalizing and averaging each school's test scores across all tests and grades.
Coming soon properties will soon be on the market, but are not yet available for showings.