2660 Lear Road Englewood, FL 34224
Pending MLS# O6347414
4 beds 4 baths 2,169 sq ft Multi-family
Details for 2660 Lear Road
MLS# O6347414
Description for 2660 Lear Road, Englewood, FL, 34224
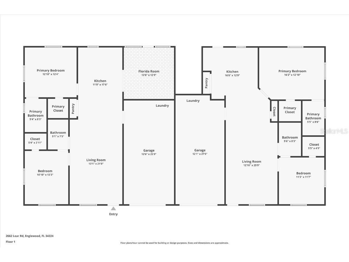
Under contract-accepting backup offers. Investment Opportunity in Englewood! This 2003-built duplex at 2660 & 2662 Lear Rd offers 1,000 square feet of living space in each unit, with 2 bedrooms, 2 bathrooms, and a 1-car garage. The 2660 side includes a screened-in patio and a new water heater from 2023, while the 2662 side features a 2021 water heater. Both units are thoughtfully designed with automatic garage door openers, walk-in closets, storm shutters, and ceiling fans with light fixtures in every room. With city water and sewer already in place, the property is low-maintenance and ready for immediate rental income. Conveniently located near South McCall Road (SR-776), Englewood Beach, Boca Grande, Dearborn Street’s shops and restaurants, and several golf courses, this property offers both strong investment potential and an attractive lifestyle for tenants. Whether you’re expanding your portfolio or seeking multi-generational living, this duplex is a versatile and profitable opportunity—book a showing today!
Listing Information
Property Type: Residential, Duplex
Status: Pending
Bedrooms: 4
Bathrooms: 4
Lot Size: 0.24 Acres
Square Feet: 2,169 sq ft
Year Built: 2003
Garage: Yes
Construction: Block,Stucco
Subdivision: Gulf Wind
Foundation: Slab
Number Of Units Total: 2
County: Charlotte
Additonal Room Information
Laundry: In Garage
Interior Features
Additional Interior Features: Ceiling Fan(s), Walk-In Closet(s), Solid Surface Counters
Utilities
Water: Public
Sewer: Public Sewer
Other Utilities: Cable Available,Electricity Available,Water Available
Cooling: Central Air, Ceiling Fan(s)
Heating: Central
Exterior / Lot Features
Attached Garage: Attached Garage
Garage Spaces: 2
Roof: Shingle
Lot Dimensions: 90x115
Additional Exterior/Lot Features: Storm/Security Shutters
Unit Information
Unit 1 Units Total: 1
Unit 1 Actual Rent: 2200
Unit 1 Baths Total: 2
Unit 1 Beds Total: 2
Unit 2 Units Total: 1
Unit 2 Actual Rent: 2200
Unit 2 Baths Total: 2
Unit 2 Beds Total: 2
Driving Directions
If driving west on S. McCall Rd take a right on San Casa Drive. Right on Lear.
Financial Considerations
Terms: Cash,Conventional
Tax/Property ID: 412009128007
Tax Amount: 6384.95
Tax Year: 2024
A broker reciprocity listing courtesy: FATHOM REALTY FL LLC
Based on information provided by Stellar MLS as distributed by the MLS GRID. Information from the Internet Data Exchange is provided exclusively for consumers’ personal, non-commercial use, and such information may not be used for any purpose other than to identify prospective properties consumers may be interested in purchasing. This data is deemed reliable but is not guaranteed to be accurate by Edina Realty, Inc., or by the MLS. Edina Realty, Inc., is not a multiple listing service (MLS), nor does it offer MLS access.
Copyright 2026 Stellar MLS as distributed by the MLS GRID. All Rights Reserved.
Sales History & Tax Summary for 2660 Lear Road
Sales History
| Date | Price | |
|---|---|---|
| Currently not available. | ||
Tax Summary
| Tax Year | Estimated Market Value | Total Tax |
|---|---|---|
| Currently not available. | ||
Data powered by ATTOM Data Solutions. Copyright© 2026. Information deemed reliable but not guaranteed.
Schools
Schools nearby 2660 Lear Road
| Schools in attendance boundaries | Grades | Distance | Rating |
|---|---|---|---|
| Loading... | |||
| Schools nearby | Grades | Distance | Rating |
|---|---|---|---|
| Loading... | |||
Data powered by ATTOM Data Solutions. Copyright© 2026. Information deemed reliable but not guaranteed.
The schools shown represent both the assigned schools and schools by distance based on local school and district attendance boundaries. Attendance boundaries change based on various factors and proximity does not guarantee enrollment eligibility. Please consult your real estate agent and/or the school district to confirm the schools this property is zoned to attend. Information is deemed reliable but not guaranteed.
SchoolDigger ® Rating
The SchoolDigger rating system is a 1-5 scale with 5 as the highest rating. SchoolDigger ranks schools based on test scores supplied by each state's Department of Education. They calculate an average standard score by normalizing and averaging each school's test scores across all tests and grades.
Coming soon properties will soon be on the market, but are not yet available for showings.