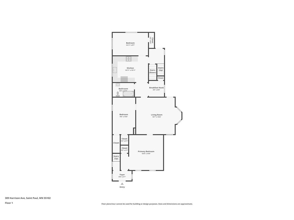
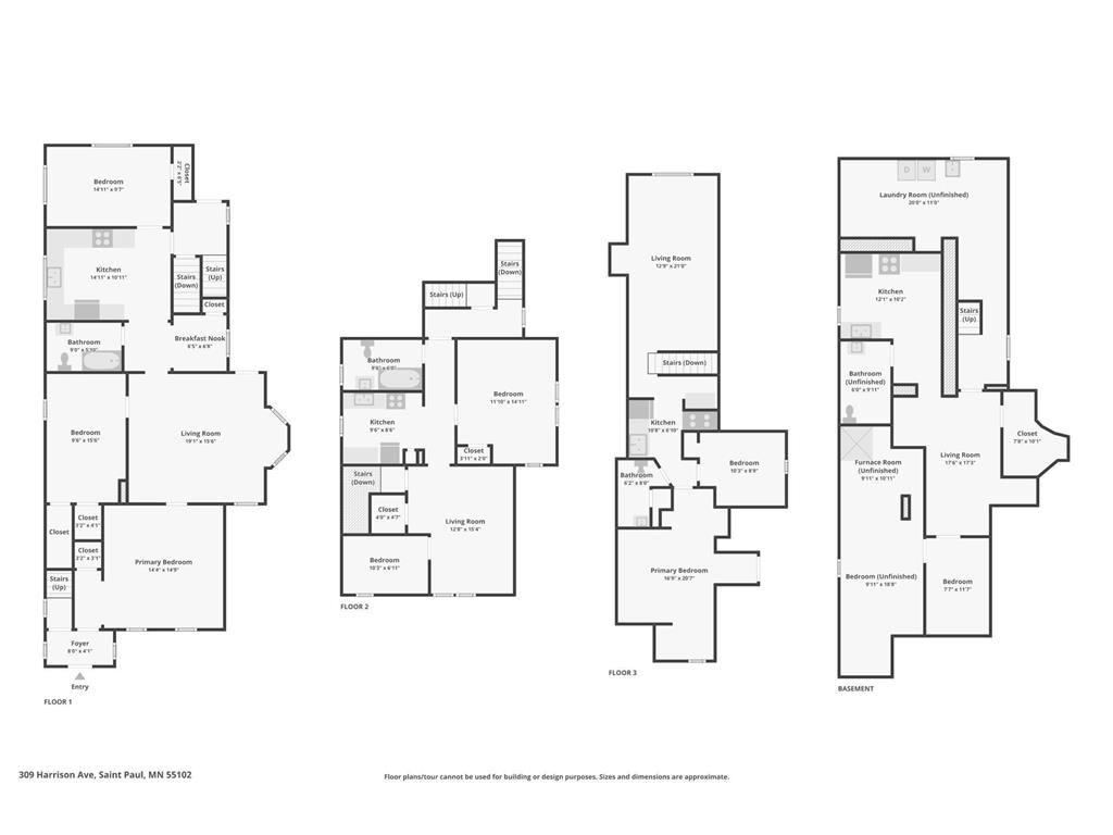
309 Harrison Avenue Saint Paul, MN 55102
Active Contingent MLS# 6603447
8 beds 4 baths 5,738 sq ft Multi-family
Details for 309 Harrison Avenue
MLS# 6603447
Description for 309 Harrison Avenue, Saint Paul, MN, 55102
Unique opportunity to grab a rental property near the heart of downtown & summit. Close to restaurants and shopping.
Listing Information
Property Type: Multi-family, Triplex
Status: Active Contingent-Sale of Another Property
Bedrooms: 8
Bathrooms: 4
Lot Size: 0.29 Acres
Square Feet: 5,738 sq ft
Year Built: 1886
Foundation: 1,533 sq ft
Garage: Yes
Stories: 2 Stories
Subdivision: Whitacre Brisbine & Mullens Su
Number Of Units Total: 4
County: Ramsey
Days On Market: 364
Construction Status: Previously Owned
School Information
District: 625 - St. Paul
Interior Features
Square Footage above: 5,738 sq ft
Basement: Partial Finished
Utilities
Water: City Water/Connected
Sewer: City Sewer/Connected
Heating: Forced Air, Natural Gas
Exterior / Lot Features
Garage Spaces: 4
Parking Description: Multiple Garages, Garage Sq Ft - 520.0
Exterior: Vinyl, Wood
Lot Dimensions: Common
Driving Directions
From West 7th Street, head North on Douglas Street , turn right on W Harrison Ave to property.
Financial Considerations
Other Annual Tax: $1,243
Tax/Property ID: 012823420173
Tax Amount: 7521.38
Tax Year: 2025
HomeStead Description: Non-Homesteaded
A broker reciprocity listing courtesy: Real Broker, LLC
The data relating to real estate for sale on this web site comes in part from the Broker Reciprocity℠ Program of the Regional Multiple Listing Service of Minnesota, Inc. Real estate listings held by brokerage firms other than Edina Realty, Inc. are marked with the Broker Reciprocity℠ logo or the Broker Reciprocity℠ thumbnail and detailed information about them includes the name of the listing brokers. Edina Realty, Inc. is not a Multiple Listing Service (MLS), nor does it offer MLS access. This website is a service of Edina Realty, Inc., a broker Participant of the Regional Multiple Listing Service of Minnesota, Inc. IDX information is provided exclusively for consumers personal, non-commercial use and may not be used for any purpose other than to identify prospective properties consumers may be interested in purchasing. Open House information is subject to change without notice. Information deemed reliable but not guaranteed.
Copyright 2026 Regional Multiple Listing Service of Minnesota, Inc. All Rights Reserved.
Payment Calculator
Interest rate and annual percentage rate (APR) are based on current market conditions, are for informational purposes only, are subject to change without notice and may be subject to pricing add-ons related to property type, loan amount, loan-to-value, credit score and other variables. Estimated closing costs used in the APR calculation are assumed to be paid by the borrower at closing. If the closing costs are financed, the loan, APR and payment amounts will be higher. If the down payment is less than 20%, mortgage insurance may be required and could increase the monthly payment and APR. Contact us for details. Additional loan programs may be available. Accuracy is not guaranteed, and all products may not be available in all borrower's geographical areas and are based on their individual situation. This is not a credit decision or a commitment to lend.
Sales History & Tax Summary for 309 Harrison Avenue
Sales History
| Date | Price | |
|---|---|---|
| Currently not available. | ||
Tax Summary
| Tax Year | Estimated Market Value | Total Tax |
|---|---|---|
| Currently not available. | ||
Data powered by ATTOM Data Solutions. Copyright© 2026. Information deemed reliable but not guaranteed.
Schools
Schools nearby 309 Harrison Avenue
| Schools in attendance boundaries | Grades | Distance | Rating |
|---|---|---|---|
| Loading... | |||
| Schools nearby | Grades | Distance | Rating |
|---|---|---|---|
| Loading... | |||
Data powered by ATTOM Data Solutions. Copyright© 2026. Information deemed reliable but not guaranteed.
The schools shown represent both the assigned schools and schools by distance based on local school and district attendance boundaries. Attendance boundaries change based on various factors and proximity does not guarantee enrollment eligibility. Please consult your real estate agent and/or the school district to confirm the schools this property is zoned to attend. Information is deemed reliable but not guaranteed.
SchoolDigger ® Rating
The SchoolDigger rating system is a 1-5 scale with 5 as the highest rating. SchoolDigger ranks schools based on test scores supplied by each state's Department of Education. They calculate an average standard score by normalizing and averaging each school's test scores across all tests and grades.
Coming soon properties will soon be on the market, but are not yet available for showings.