320 & 324 W Ann Street Punta Gorda, FL 33950
For Sale MLS# C7509523
4 beds 4 baths 2,192 sq ft Multi-family
Details for 320 & 324 W Ann Street
MLS# C7509523
Description for 320 & 324 W Ann Street, Punta Gorda, FL, 33950
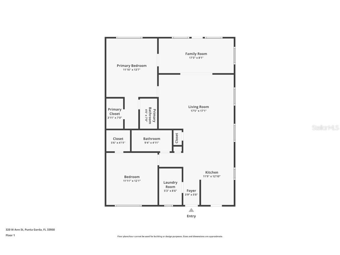
Exceptional Duplex in Prime Punta Gorda – Ideal for Investors or Multi-Generational Living. For investors, this property offers immediate income potential with stable tenant in place. Whether you're looking to expand your portfolio or seeking a home with built-in rental income, this duplex is a turnkey opportunity. This well-maintained duplex is nestled in the highly desirable community of Punta Gorda. Built in 1974 on an expansive lot with city water and sewer, it features two fully updated units—each offering 2 bedrooms, 2 bathrooms, and 1,096 square feet of modern, comfortable living space. It’s an ideal setup for investors, multi-generational families, or those who want to live in one unit and rent the other. Inside, both homes boast an open-concept layout with polished concrete floors that create a clean, contemporary feel. The kitchens have been tastefully renovated—one with granite countertops and a breakfast bar, the other with quartz countertops. Both feature new shaker-style cabinetry, generous counter space, and easy flow into the dining and living areas. Sliding glass doors open to private screened lanais overlooking a spacious backyard, perfect for relaxing or entertaining. Each unit includes a large primary suite complete with a walk-in closet, single-sink vanity, walk-in shower, and linen closet. The guest bedrooms are also well-sized, with ample closet space, and each unit has a full guest bathroom. Additional conveniences include indoor laundry rooms, extended driveways, and covered carports for ample parking. Recent updates add tremendous value and peace of mind, including water heaters installed in 2018 and 2013, new washers, dryers, and refrigerators added in 2024, and a newer asphalt shingle roof from 2019. Both A/C intake boxes were replaced and systems serviced after the last storm, with no damage reported. The seller is also adding risers to elevate both A/C units. Storm shutters are included, offering added protection during hurricane season. Ideally located just minutes from historic downtown Punta Gorda, Fishermen’s Village, waterfront parks, shopping, dining, and year-round community events, this duplex is also convenient to I-75, US-41, Punta Gorda Airport, and Southwest Florida International Airport. Golfers will enjoy the close proximity to Saint Andrew’s South Golf Club. This is a truly exceptional opportunity to own a versatile, income-producing property in one of Southwest Florida’s most desirable locations. **PLEASE ENJOY THE 3D INTERACTIVE VIRTUAL TOUR ASSOCIATED WITH THIS LISTING**
Listing Information
Property Type: Residential, Duplex
Status: Active
Bedrooms: 4
Bathrooms: 4
Lot Size: 0.26 Acres
Square Feet: 2,192 sq ft
Year Built: 1974
Stories: 1 Story
Construction: Block,Stucco
Subdivision: Thomasons
Foundation: Slab
Number Of Units Total: 2
County: Charlotte
Additonal Room Information
Laundry: Inside, Laundry Room
Interior Features
Appliances: Microwave, Range, Refrigerator
Flooring: Concrete
Additional Interior Features: Walk-In Closet(s), Living/Dining Room, Open Floorplan, Stone Counters
Utilities
Water: Public
Sewer: Public Sewer
Other Utilities: Cable Available,Electricity Available,Electricity Connected,High Speed Internet Available,Municipal Utilities
Cooling: Central Air
Heating: Central
Exterior / Lot Features
Parking Description: Covered, driveway
Roof: Shingle
Additional Exterior/Lot Features: Rain Gutters, Lighting
Out Buildings: Shed(s)
Driving Directions
From US41 south in Punta Gorda, turn right onto W Ann St. Follow to the home on the right.
Financial Considerations
Terms: Cash,Conventional,FHA,VA Loan
Tax/Property ID: 412307155008
Tax Amount: 4814
Tax Year: 2024
A broker reciprocity listing courtesy: MARINA PARK REALTY LLC
Based on information provided by Stellar MLS as distributed by the MLS GRID. Information from the Internet Data Exchange is provided exclusively for consumers’ personal, non-commercial use, and such information may not be used for any purpose other than to identify prospective properties consumers may be interested in purchasing. This data is deemed reliable but is not guaranteed to be accurate by Edina Realty, Inc., or by the MLS. Edina Realty, Inc., is not a multiple listing service (MLS), nor does it offer MLS access.
Copyright 2026 Stellar MLS as distributed by the MLS GRID. All Rights Reserved.
Payment Calculator
Interest rate and annual percentage rate (APR) are based on current market conditions, are for informational purposes only, are subject to change without notice and may be subject to pricing add-ons related to property type, loan amount, loan-to-value, credit score and other variables. Estimated closing costs used in the APR calculation are assumed to be paid by the borrower at closing. If the closing costs are financed, the loan, APR and payment amounts will be higher. If the down payment is less than 20%, mortgage insurance may be required and could increase the monthly payment and APR. Contact us for details. Additional loan programs may be available. Accuracy is not guaranteed, and all products may not be available in all borrower's geographical areas and are based on their individual situation. This is not a credit decision or a commitment to lend.
Sales History & Tax Summary for 320 & 324 W Ann Street
Sales History
| Date | Price | Change |
|---|---|---|
| Currently not available. | ||
Tax Summary
| Tax Year | Estimated Market Value | Total Tax |
|---|---|---|
| Currently not available. | ||
Data powered by ATTOM Data Solutions. Copyright© 2026. Information deemed reliable but not guaranteed.
Schools
Schools nearby 320 & 324 W Ann Street
| Schools in attendance boundaries | Grades | Distance | Rating |
|---|---|---|---|
| Loading... | |||
| Schools nearby | Grades | Distance | Rating |
|---|---|---|---|
| Loading... | |||
Data powered by ATTOM Data Solutions. Copyright© 2026. Information deemed reliable but not guaranteed.
The schools shown represent both the assigned schools and schools by distance based on local school and district attendance boundaries. Attendance boundaries change based on various factors and proximity does not guarantee enrollment eligibility. Please consult your real estate agent and/or the school district to confirm the schools this property is zoned to attend. Information is deemed reliable but not guaranteed.
SchoolDigger ® Rating
The SchoolDigger rating system is a 1-5 scale with 5 as the highest rating. SchoolDigger ranks schools based on test scores supplied by each state's Department of Education. They calculate an average standard score by normalizing and averaging each school's test scores across all tests and grades.
Coming soon properties will soon be on the market, but are not yet available for showings.