$525,000
3217 Dupont Avenue S Minneapolis, MN 55408
For Sale MLS# 7003474
6 beds 4 baths 2,518 sq ft Multi-family
Details for 3217 Dupont Avenue S
MLS# 7003474
Description for 3217 Dupont Avenue S, Minneapolis, MN, 55408
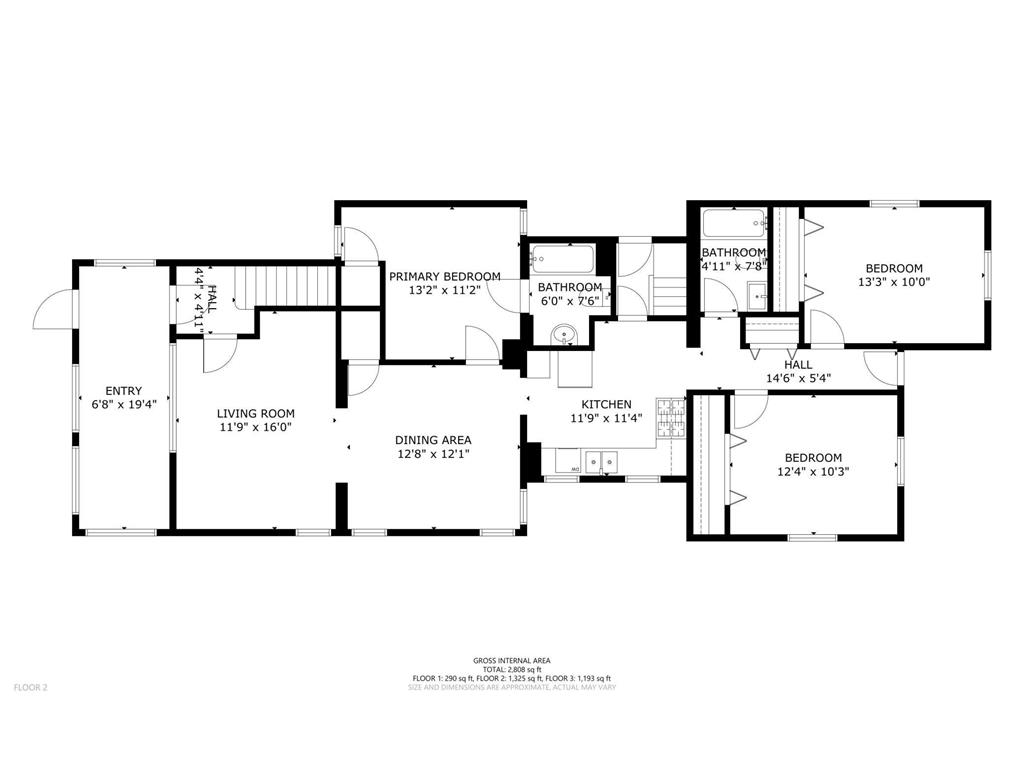
Well-maintained up/down duplex offering excellent flexibility for owner-occupants or investors. The main-floor unit features an open-concept layout with original hardwood floors in the living and dining rooms, high baseboards, and tall ceilings. The updated kitchen includes granite countertops, stainless steel appliances, tile backsplash, gas stove, double sink, and dishwasher. The primary bedroom offers a full, private bath with tile flooring, tile surround, and a solid-surface vanity. The upper-level unit features oak hardwood floors, abundant storage, granite countertops in the kitchen, a spacious front bedroom with walk-in closet, and in-unit washer and dryer. Both upper-level bathrooms have tile flooring, with a tile surround and solid-surface vanity in the full bath. Each unit includes three bedrooms, two bathrooms, laundry, separate utilities, and two off-street parking spaces. Additional features include a two-season front porch, a backyard with space to lounge or entertain, and room to build a 24x24 garage. Ideally located near area lakes, parks, and trails, with convenient access to downtown Minneapolis and major highways.
Listing Information
Property Type: Multi-family, Duplex Up and Down
Status: Active
Bedrooms: 6
Bathrooms: 4
Lot Size: 0.13 Acres
Square Feet: 2,518 sq ft
Year Built: 1900
Foundation: 760 sq ft
Stories: 2 Stories
Subdivision: Remingtons 2nd Add
Number Of Units Total: 2
County: Hennepin
Days On Market: 66
Construction Status: Previously Owned
School Information
District: 1 - Minneapolis
Additonal Room Information
Laundry: In Basement, Washer Hookup, Laundry Closet, Upper Level, Electric Dryer Hookup, Gas Dryer Hookup, Lower Level
Interior Features
Square Footage above: 2,518 sq ft
Basement: Unfinished
Utilities
Water: City Water/Connected
Sewer: City Sewer/Connected
Heating: Baseboard, Gravity, Natural Gas
Exterior / Lot Features
Open Parking: 4
Parking Description: Uncovered/Open, Driveway - Asphalt, Assigned
Exterior: Cement Board, Vinyl
Roof: Age Over 8 Years, Asphalt Shingles
Lot Dimensions: 128 x 42
Additional Exterior/Lot Features: Tree Coverage - Medium, Public Transit (w/in 6 blks), Road Frontage - Street Lights, City, Sidewalks, Paved Streets
Community Features
Association Amenities: Porch
Unit Information
Unit 1 Units Total: 1
Unit 1 Actual Rent: 2149
Unit 1 Baths Total: 2
Unit 1 Beds Total: 3
Unit 1 Rooms Total: 9
Unit 2 Units Total: 1
Unit 2 Actual Rent: 2270
Unit 2 Baths Total: 2
Unit 2 Beds Total: 3
Unit 2 Rooms Total: 7
Driving Directions
Hennepin Ave to east on 33rd St to north on Dupont to property.
Financial Considerations
Tenant Pays: Electric,Gas,See Remarks,Trash,Water
Owner Pays: Insurance,See Remarks,Taxes,Trash,Water
Gross Income: 53028
Tax/Property ID: 0402824140058
Tax Amount: 8829.21
Tax Year: 2026
HomeStead Description: Non-Homesteaded
A broker reciprocity listing courtesy: ERA Prospera Real Estate
The data relating to real estate for sale on this web site comes in part from the Broker Reciprocity℠ Program of the Regional Multiple Listing Service of Minnesota, Inc. Real estate listings held by brokerage firms other than Edina Realty, Inc. are marked with the Broker Reciprocity℠ logo or the Broker Reciprocity℠ thumbnail and detailed information about them includes the name of the listing brokers. Edina Realty, Inc. is not a Multiple Listing Service (MLS), nor does it offer MLS access. This website is a service of Edina Realty, Inc., a broker Participant of the Regional Multiple Listing Service of Minnesota, Inc. IDX information is provided exclusively for consumers personal, non-commercial use and may not be used for any purpose other than to identify prospective properties consumers may be interested in purchasing. Open House information is subject to change without notice. Information deemed reliable but not guaranteed.
Copyright 2026 Regional Multiple Listing Service of Minnesota, Inc. All Rights Reserved.
Payment Calculator
Interest rate and annual percentage rate (APR) are based on current market conditions, are for informational purposes only, are subject to change without notice and may be subject to pricing add-ons related to property type, loan amount, loan-to-value, credit score and other variables. Estimated closing costs used in the APR calculation are assumed to be paid by the borrower at closing. If the closing costs are financed, the loan, APR and payment amounts will be higher. If the down payment is less than 20%, mortgage insurance may be required and could increase the monthly payment and APR. Contact us for details. Additional loan programs may be available. Accuracy is not guaranteed, and all products may not be available in all borrower's geographical areas and are based on their individual situation. This is not a credit decision or a commitment to lend.
Sales History & Tax Summary for 3217 Dupont Avenue S
Sales History
| Date | Price | |
|---|---|---|
| Currently not available. | ||
Tax Summary
| Tax Year | Estimated Market Value | Total Tax |
|---|---|---|
| Currently not available. | ||
Data powered by ATTOM Data Solutions. Copyright© 2026. Information deemed reliable but not guaranteed.
Schools
Schools nearby 3217 Dupont Avenue S
| Schools in attendance boundaries | Grades | Distance | Rating |
|---|---|---|---|
| Loading... | |||
| Schools nearby | Grades | Distance | Rating |
|---|---|---|---|
| Loading... | |||
Data powered by ATTOM Data Solutions. Copyright© 2026. Information deemed reliable but not guaranteed.
The schools shown represent both the assigned schools and schools by distance based on local school and district attendance boundaries. Attendance boundaries change based on various factors and proximity does not guarantee enrollment eligibility. Please consult your real estate agent and/or the school district to confirm the schools this property is zoned to attend. Information is deemed reliable but not guaranteed.
SchoolDigger ® Rating
The SchoolDigger rating system is a 1-5 scale with 5 as the highest rating. SchoolDigger ranks schools based on test scores supplied by each state's Department of Education. They calculate an average standard score by normalizing and averaging each school's test scores across all tests and grades.
Coming soon properties will soon be on the market, but are not yet available for showings.