$375,000
Off-Market Date: 04/15/20265393 Nw 7th Place Ocala, FL 34482
Pending MLS# OM722336
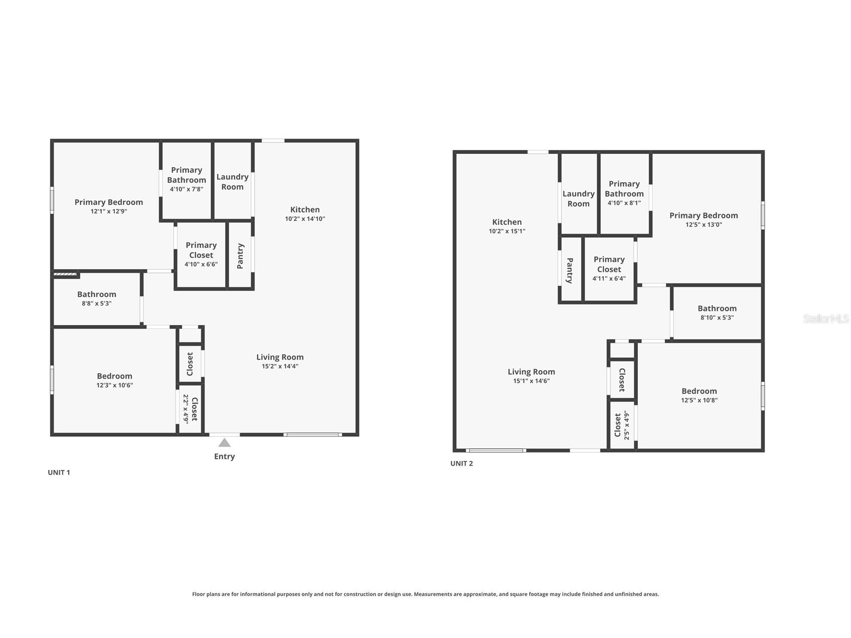
4 beds 4 baths 2,041 sq ft Multi-family
Details for 5393 Nw 7th Place
MLS# OM722336
Description for 5393 Nw 7th Place, Ocala, FL, 34482
Brand New Duplex - Perfect investment or multi-generational living! Both units have 2 bedrooms and 2 full bathrooms, an open-concept kitchen with stainless steel appliances, granite countertops and porcelain tile throughout. Whether you’re looking to live in one unit and rent the other or looking to add a strong performer to your investment portfolio, this property checks all the boxes.
Listing Information
Property Type: Residential, Duplex
Status: Pending
Bedrooms: 4
Bathrooms: 4
Lot Size: 0.34 Acres
Square Feet: 2,041 sq ft
Year Built: 2025
Stories: 1 Story
Construction: Block,Stucco
Construction Display: New Construction
Subdivision: Ocala Ridge Un 1
Foundation: Slab
Number Of Units Total: 2
County: Marion
Construction Status: New Construction
School Information
Elementary: College Park Elementary School
Middle: Liberty Middle School
High: West Port High School
Additonal Room Information
Laundry: Inside, Washer Hookup, Laundry Closet, Electric Dryer Hookup
Interior Features
Appliances: Electric Water Heater, Microwave, Range, Refrigerator, Washer, Dishwasher, Dryer
Flooring: Porcelain Tile
Additional Interior Features: Ceiling Fan(s), Split Bedrooms, Cathedral Ceiling(s), Stone Counters, Living/Dining Room
Utilities
Water: Well
Sewer: Septic Tank
Other Utilities: Electricity Connected,High Speed Internet Available
Cooling: Central Air, Ceiling Fan(s)
Heating: Heat Pump
Exterior / Lot Features
Parking Description: Open, Parking Pad
Roof: Shingle
Additional Exterior/Lot Features: Front Porch, Rear Porch, Level, Flat
Unit Information
Unit 1 Units Total: 2
Unit 1 Actual Rent: 1300
Unit 1 Baths Total: 2
Unit 1 Beds Total: 2
Driving Directions
Driving East on 40, turn left onto NW 55th Ave, Turn right onto NW 7th Place, property will be 1/2 way down on the left.
Financial Considerations
Terms: Cash,Conventional,FHA,VA Loan
Tax/Property ID: 2307-111-064
Tax Amount: 259
Tax Year: 2025
A broker reciprocity listing courtesy: RIVERS 2 RANCHES REAL ESTATE
Based on information provided by Stellar MLS as distributed by the MLS GRID. Information from the Internet Data Exchange is provided exclusively for consumers’ personal, non-commercial use, and such information may not be used for any purpose other than to identify prospective properties consumers may be interested in purchasing. This data is deemed reliable but is not guaranteed to be accurate by Edina Realty, Inc., or by the MLS. Edina Realty, Inc., is not a multiple listing service (MLS), nor does it offer MLS access.
Copyright 2026 Stellar MLS as distributed by the MLS GRID. All Rights Reserved.
Sales History & Tax Summary for 5393 Nw 7th Place
Sales History
| Date | Price | |
|---|---|---|
| Currently not available. | ||
Tax Summary
| Tax Year | Estimated Market Value | Total Tax |
|---|---|---|
| Currently not available. | ||
Data powered by ATTOM Data Solutions. Copyright© 2026. Information deemed reliable but not guaranteed.
Schools
Schools nearby 5393 Nw 7th Place
| Schools in attendance boundaries | Grades | Distance | Rating |
|---|---|---|---|
| Loading... | |||
| Schools nearby | Grades | Distance | Rating |
|---|---|---|---|
| Loading... | |||
Data powered by ATTOM Data Solutions. Copyright© 2026. Information deemed reliable but not guaranteed.
The schools shown represent both the assigned schools and schools by distance based on local school and district attendance boundaries. Attendance boundaries change based on various factors and proximity does not guarantee enrollment eligibility. Please consult your real estate agent and/or the school district to confirm the schools this property is zoned to attend. Information is deemed reliable but not guaranteed.
SchoolDigger ® Rating
The SchoolDigger rating system is a 1-5 scale with 5 as the highest rating. SchoolDigger ranks schools based on test scores supplied by each state's Department of Education. They calculate an average standard score by normalizing and averaging each school's test scores across all tests and grades.
Coming soon properties will soon be on the market, but are not yet available for showings.