$995,000
617 3rd Street Hudson, WI 54016
Coming Soon MLS# 7032130
4 beds 3 baths 2,988 sq ft Townhouse/Twinhome
Details for 617 3rd Street
MLS# 7032130
Description for 617 3rd Street, Hudson, WI, 54016
Charming duplex located in the heart of beautiful Hudson just moments from the St Croix River, downtown shops, restaurants, and riverfront parks. Situated on nearly half an acre, this property offers a rare lot size for an in town location with room to enjoy outdoor space and future possibilities. The property retains timeless character with hardwood floors, large windows that fill the spaces with natural light, and a stunning staircase that highlights the charm of the home. Each unit offers comfortable living areas, functional kitchens, and generous room sizes. The prime location and large lot present incredible potential for renovation or future concepts such as luxury condos, an event center, or a hotel. A unique opportunity in one of Hudson’s most desirable areas that simply takes a little vision to unlock its full potential.
Listing Information
Property Type: Residential, Side by Side
Status: Coming Soon
Bedrooms: 4
Bathrooms: 3
Lot Size: 0.50 Acres
Square Feet: 2,988 sq ft
Year Built: 1890
Foundation: 924 sq ft
Garage: Yes
Stories: 2 Stories
Property Attached: Yes
Subdivision: Buena Vista
County: St. Croix
Construction Status: Previously Owned
School Information
District: 2611 - Hudson
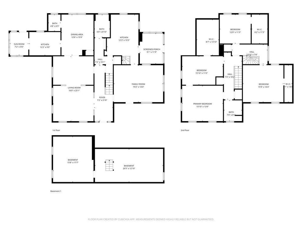
Room Information
Main Floor
Dining Room: 12.6x15.9
Family Room: 19.2x14.4
Foyer: 7.2x21.8
Kitchen: 12.2x9
Living Room: 25x16
Screened Porch: 9.1x11.9
Second Kitchen: 12.3x19.3
Upper Floor
Bedroom 1: 15.10x13.9
Bedroom 2: 15.10x11
Bedroom 3: 12x11.3
Bedroom 4: 15.9x14.4
Walk-In Closet: 1x14.4
Walk-In Closet: 8.7x13.10
Bathrooms
Full Baths: 2
1/2 Baths: 1
Interior Features
Square Footage above: 2,988 sq ft
Basement: Other
Utilities
Water: City Water/Connected
Sewer: City Sewer/Connected
Cooling: Central
Heating: Electric, Forced Air, Natural Gas
Exterior / Lot Features
Garage Spaces: 1
Parking Description: Detached Garage, Garage Sq Ft - 1.00
Exterior: Wood
Lot Dimensions: 163x134x163x132
Zoning: Residential-Multi-Family
Additional Exterior/Lot Features: Not Applicable, Road Frontage - City
Driving Directions
Exit 1 Hudson, North to Vine Street, right on Vine to 3rd Street, right to home
Financial Considerations
Tax/Property ID: 236022200000
Tax Amount: 10238
Tax Year: 2026
HomeStead Description: Non-Homesteaded
A broker reciprocity listing courtesy: eXp Realty
The data relating to real estate for sale on this web site comes in part from the Broker Reciprocity℠ Program of the Regional Multiple Listing Service of Minnesota, Inc. Real estate listings held by brokerage firms other than Edina Realty, Inc. are marked with the Broker Reciprocity℠ logo or the Broker Reciprocity℠ thumbnail and detailed information about them includes the name of the listing brokers. Edina Realty, Inc. is not a Multiple Listing Service (MLS), nor does it offer MLS access. This website is a service of Edina Realty, Inc., a broker Participant of the Regional Multiple Listing Service of Minnesota, Inc. IDX information is provided exclusively for consumers personal, non-commercial use and may not be used for any purpose other than to identify prospective properties consumers may be interested in purchasing. Open House information is subject to change without notice. Information deemed reliable but not guaranteed.
Copyright 2026 Regional Multiple Listing Service of Minnesota, Inc. All Rights Reserved.
Payment Calculator
Interest rate and annual percentage rate (APR) are based on current market conditions, are for informational purposes only, are subject to change without notice and may be subject to pricing add-ons related to property type, loan amount, loan-to-value, credit score and other variables. Estimated closing costs used in the APR calculation are assumed to be paid by the borrower at closing. If the closing costs are financed, the loan, APR and payment amounts will be higher. If the down payment is less than 20%, mortgage insurance may be required and could increase the monthly payment and APR. Contact us for details. Additional loan programs may be available. Accuracy is not guaranteed, and all products may not be available in all borrower's geographical areas and are based on their individual situation. This is not a credit decision or a commitment to lend.
Sales History & Tax Summary for 617 3rd Street
Sales History
| Date | Price | |
|---|---|---|
| Currently not available. | ||
Tax Summary
| Tax Year | Estimated Market Value | Total Tax |
|---|---|---|
| Currently not available. | ||
Data powered by ATTOM Data Solutions. Copyright© 2026. Information deemed reliable but not guaranteed.
Schools
Schools nearby 617 3rd Street
| Schools in attendance boundaries | Grades | Distance | Rating |
|---|---|---|---|
| Loading... | |||
| Schools nearby | Grades | Distance | Rating |
|---|---|---|---|
| Loading... | |||
Data powered by ATTOM Data Solutions. Copyright© 2026. Information deemed reliable but not guaranteed.
The schools shown represent both the assigned schools and schools by distance based on local school and district attendance boundaries. Attendance boundaries change based on various factors and proximity does not guarantee enrollment eligibility. Please consult your real estate agent and/or the school district to confirm the schools this property is zoned to attend. Information is deemed reliable but not guaranteed.
SchoolDigger ® Rating
The SchoolDigger rating system is a 1-5 scale with 5 as the highest rating. SchoolDigger ranks schools based on test scores supplied by each state's Department of Education. They calculate an average standard score by normalizing and averaging each school's test scores across all tests and grades.
Coming soon properties will soon be on the market, but are not yet available for showings.