807 Gulf Boulevard Indian Rocks Beach, FL 33785
For Sale MLS# TB8448060
4 beds 4 baths 1,700 sq ft Multi-family
Details for 807 Gulf Boulevard
MLS# TB8448060
Description for 807 Gulf Boulevard, Indian Rocks Beach, FL, 33785
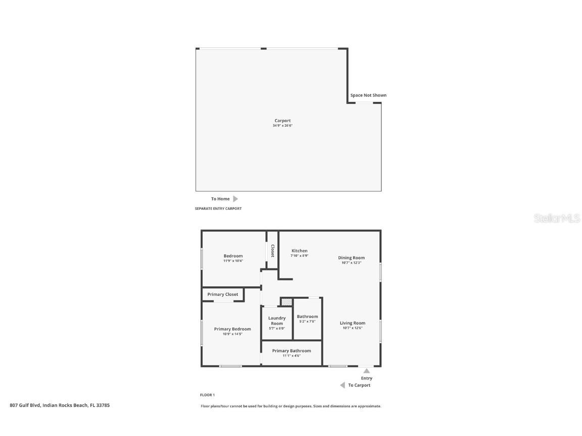
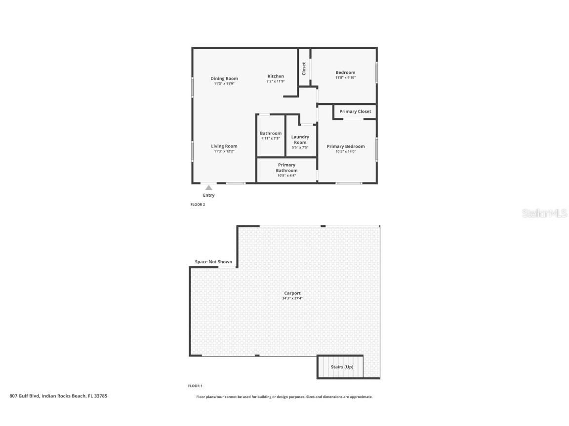
Steps from the sand, this beach duplex in Indian Rocks Beach is elevated 11 feet off the ground. 807 Gulf Blvd offers what every investor wants but rarely finds; a turnkey operation with exceptional management in place, future bookings on the calendar, and a proven track record of strong reviews generating over six figures a year. Each 2-bed/2-bath unit has been updated, including new decks and HVAC installed in 2025, with the condensers elevated for stress-free coastal living. Impact windows, updated electric panels, indoor laundry in each unit, ample parking, and two storage closets make this property as functional as it is profitable. Beach access is directly across the street, with waterfront dining, local shops, and easy access to Clearwater, St Pete Beach, and everything in between. The duplex is being sold fully furnished; a true plug-and-play investment opportunity. Keep the operation running as a high-performing short-term rental and expand income with add-ons like a pool, hot tub, bikes, paddleboards and golf carts, or take advantage of the tax benefits and flexibility that come with owning an elevated beach duplex this close to the Gulf. Take the 3D tour here: https://zillow.com/view-imx/f45ab2ce-e222-412f-bf77-be1729204b73?initialViewType=pano&setAttribution=mls&utm_source=dashboard&wl=1
Listing Information
Property Type: Residential, Duplex
Status: Active
Bedrooms: 4
Bathrooms: 4
Lot Size: 0.13 Acres
Square Feet: 1,700 sq ft
Year Built: 1979
Stories: 1 Story
Construction: Vinyl Siding,Wood Frame
Subdivision: New Haven Beach
Foundation: Pillar/Post/Pier
Number Of Units Total: 2
County: Pinellas
Additonal Room Information
Laundry: Inside, Laundry Room
Interior Features
Appliances: Exhaust Fan, Electric Water Heater, Dishwasher, Disposal, Dryer, Range, Refrigerator, Washer, Freezer, Microwave
Flooring: Luxury Vinyl
Doors/Windows: Window Treatments, Blinds
Additional Interior Features: Eat-In Kitchen, Ceiling Fan(s), Window Treatments, Living/Dining Room, Stone Counters
Utilities
Water: Public
Sewer: Public Sewer
Other Utilities: Cable Connected,Electricity Connected,Municipal Utilities,Sewer Connected,Water Connected
Cooling: Ceiling Fan(s), Central Air
Heating: Central, Electric
Exterior / Lot Features
Parking Description: Covered, driveway
Roof: Shingle
Additional Exterior/Lot Features: Lighting, Rain Gutters, Storage, Patio, Covered
Out Buildings: Storage
Unit Information
Unit 1 Units Total: 1
Unit 1 Baths Total: 2
Unit 1 Beds Total: 2
Unit 2 Units Total: 1
Unit 2 Actual Rent: 7500
Unit 2 Baths Total: 2
Unit 2 Beds Total: 2
Driving Directions
From walsingham road turn right on Gulf Blvd. Duplex is 2.2 miles down on right hand side.
Financial Considerations
Terms: Cash,Conventional,FHA,VA Loan
Tax/Property ID: 12-30-14-59832-002-0090
Tax Amount: 12240
Tax Year: 2024
A broker reciprocity listing courtesy: EXP REALTY LLC
Based on information provided by Stellar MLS as distributed by the MLS GRID. Information from the Internet Data Exchange is provided exclusively for consumers’ personal, non-commercial use, and such information may not be used for any purpose other than to identify prospective properties consumers may be interested in purchasing. This data is deemed reliable but is not guaranteed to be accurate by Edina Realty, Inc., or by the MLS. Edina Realty, Inc., is not a multiple listing service (MLS), nor does it offer MLS access.
Copyright 2026 Stellar MLS as distributed by the MLS GRID. All Rights Reserved.
Payment Calculator
Interest rate and annual percentage rate (APR) are based on current market conditions, are for informational purposes only, are subject to change without notice and may be subject to pricing add-ons related to property type, loan amount, loan-to-value, credit score and other variables. Estimated closing costs used in the APR calculation are assumed to be paid by the borrower at closing. If the closing costs are financed, the loan, APR and payment amounts will be higher. If the down payment is less than 20%, mortgage insurance may be required and could increase the monthly payment and APR. Contact us for details. Additional loan programs may be available. Accuracy is not guaranteed, and all products may not be available in all borrower's geographical areas and are based on their individual situation. This is not a credit decision or a commitment to lend.
Sales History & Tax Summary for 807 Gulf Boulevard
Sales History
| Date | Price | Change |
|---|---|---|
| Currently not available. | ||
Tax Summary
| Tax Year | Estimated Market Value | Total Tax |
|---|---|---|
| Currently not available. | ||
Data powered by ATTOM Data Solutions. Copyright© 2026. Information deemed reliable but not guaranteed.
Schools
Schools nearby 807 Gulf Boulevard
| Schools in attendance boundaries | Grades | Distance | Rating |
|---|---|---|---|
| Loading... | |||
| Schools nearby | Grades | Distance | Rating |
|---|---|---|---|
| Loading... | |||
Data powered by ATTOM Data Solutions. Copyright© 2026. Information deemed reliable but not guaranteed.
The schools shown represent both the assigned schools and schools by distance based on local school and district attendance boundaries. Attendance boundaries change based on various factors and proximity does not guarantee enrollment eligibility. Please consult your real estate agent and/or the school district to confirm the schools this property is zoned to attend. Information is deemed reliable but not guaranteed.
SchoolDigger ® Rating
The SchoolDigger rating system is a 1-5 scale with 5 as the highest rating. SchoolDigger ranks schools based on test scores supplied by each state's Department of Education. They calculate an average standard score by normalizing and averaging each school's test scores across all tests and grades.
Coming soon properties will soon be on the market, but are not yet available for showings.