$700,000
833 Oxford Street Longwood, FL 32750
For Sale MLS# O6364169
8 beds 4 baths 3,856 sq ft Multi-family
Details for 833 Oxford Street
MLS# O6364169
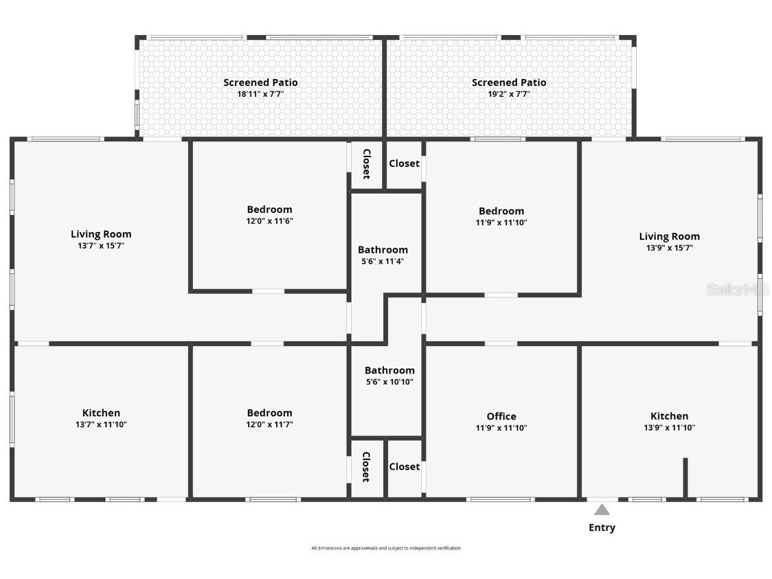
Description for 833 Oxford Street, Longwood, FL, 32750
CHARMING LAKEFRONT DUPLEXES in Longwood!! Listed at Appraised value. QUAINT and RUSTIC 2 Duplexes, 4 identical square ft units with covered rear porches on each unit. Enclosed front porch is included in living area. EACH Unit is 2-bedroom, 1 bath with 1 carport parking space, electric meter, ALL currently rented out. Owner pays for water and gas. Oxford Street has prime footage on Lake Wildmere, back of property faces partially wooded area and small pond owned by the City of Longwood. NO HOA! PRIME Investment opportunity conveniently located in the heart of Longwood with easy access to major roadways - rare to find! Management company is currently renewing leases on units 1,2, & 3 and information is subject to change from third party management.
Listing Information
Property Type: Residential, Duplex
Status: Active
Bedrooms: 8
Bathrooms: 4
Lot Size: 0.67 Acres
Square Feet: 3,856 sq ft
Year Built: 1953
Construction: Concrete
Construction Display: New Construction
Subdivision: Wildmere Amd
Foundation: Slab
Number Of Units Total: 4
County: Seminole
Construction Status: New Construction
School Information
Elementary: Longwood Elementary
Middle: Milwee Middle
High: Lyman High
Additonal Room Information
Laundry: Outside
Interior Features
Appliances: Range, Refrigerator
Flooring: Tile
Doors/Windows: Aluminum Frames
Additional Interior Features: Ceiling Fan(s)
Utilities
Water: Public
Sewer: Public Sewer
Other Utilities: Electricity Connected,Municipal Utilities,Sewer Connected,Water Connected
Cooling: Wall/Window Unit(s), Ceiling Fan(s)
Heating: Window Unit, Wall Furnace
Exterior / Lot Features
Parking Description: Covered
Roof: Shingle
Lot View: Lake,Water
Additional Exterior/Lot Features: Storage, Covered, City Lot
Waterfront Details
Water Front Features: Lake Privileges, Lake Front
Unit Information
Unit 1 Units Total: 1
Unit 1 Actual Rent: 1300
Unit 1 Baths Total: 1
Unit 1 Beds Total: 2
Unit 2 Units Total: 1
Unit 2 Actual Rent: 1295
Unit 2 Baths Total: 1
Unit 2 Beds Total: 2
Unit 3 Units Total: 1
Unit 3 Actual Rent: 1050
Unit 3 Baths Total: 1
Unit 3 Beds Total: 2
Unit 4 Units Total: 1
Unit 4 Actual Rent: 1250
Unit 4 Baths Total: 1
Unit 4 Beds Total: 2
Driving Directions
?From US 17-92 north towards Sanford. Left on E Wildmere Avenue, right on Oxford Street. Property on the right.
Financial Considerations
Terms: Cash,Conventional
Tenant Pays: Electricity
Gross Income: 58740
Tax/Property ID: 05-21-30-502-0G00-0160
Tax Amount: 6321
Tax Year: 2024
A broker reciprocity listing courtesy: RE/MAX CENTRAL REALTY
Based on information provided by Stellar MLS as distributed by the MLS GRID. Information from the Internet Data Exchange is provided exclusively for consumers’ personal, non-commercial use, and such information may not be used for any purpose other than to identify prospective properties consumers may be interested in purchasing. This data is deemed reliable but is not guaranteed to be accurate by Edina Realty, Inc., or by the MLS. Edina Realty, Inc., is not a multiple listing service (MLS), nor does it offer MLS access.
Copyright 2025 Stellar MLS as distributed by the MLS GRID. All Rights Reserved.
Payment Calculator
Interest rate and annual percentage rate (APR) are based on current market conditions, are for informational purposes only, are subject to change without notice and may be subject to pricing add-ons related to property type, loan amount, loan-to-value, credit score and other variables. Estimated closing costs used in the APR calculation are assumed to be paid by the borrower at closing. If the closing costs are financed, the loan, APR and payment amounts will be higher. If the down payment is less than 20%, mortgage insurance may be required and could increase the monthly payment and APR. Contact us for details. Additional loan programs may be available. Accuracy is not guaranteed, and all products may not be available in all borrower's geographical areas and are based on their individual situation. This is not a credit decision or a commitment to lend.
Sales History & Tax Summary for 833 Oxford Street
Sales History
| Date | Price | Change |
|---|---|---|
| Currently not available. | ||
Tax Summary
| Tax Year | Estimated Market Value | Total Tax |
|---|---|---|
| Currently not available. | ||
Data powered by ATTOM Data Solutions. Copyright© 2025. Information deemed reliable but not guaranteed.
Schools
Schools nearby 833 Oxford Street
| Schools in attendance boundaries | Grades | Distance | Rating |
|---|---|---|---|
| Loading... | |||
| Schools nearby | Grades | Distance | Rating |
|---|---|---|---|
| Loading... | |||
Data powered by ATTOM Data Solutions. Copyright© 2025. Information deemed reliable but not guaranteed.
The schools shown represent both the assigned schools and schools by distance based on local school and district attendance boundaries. Attendance boundaries change based on various factors and proximity does not guarantee enrollment eligibility. Please consult your real estate agent and/or the school district to confirm the schools this property is zoned to attend. Information is deemed reliable but not guaranteed.
SchoolDigger ® Rating
The SchoolDigger rating system is a 1-5 scale with 5 as the highest rating. SchoolDigger ranks schools based on test scores supplied by each state's Department of Education. They calculate an average standard score by normalizing and averaging each school's test scores across all tests and grades.
Coming soon properties will soon be on the market, but are not yet available for showings.