909 22nd Avenue NE Minneapolis, MN 55418
For Sale MLS# 6712674
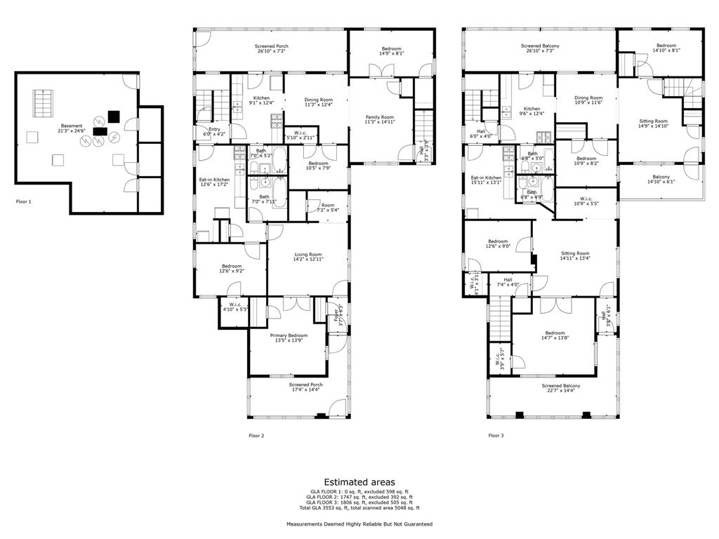
8 beds 4 baths 3,553 sq ft Multi-family
Details for 909 22nd Avenue NE
MLS# 6712674
Description for 909 22nd Avenue NE, Minneapolis, MN, 55418
Step back in time and experience this meticulously maintained fourplex, seamlessly blending 19th century craftsmanship with contemporary updates. With an impressive 4,000 square feet of living space, each unit carries 2 bedrooms, hardwood floors and a private 3-season porch, with potential to add living space to the unfinished attic with walkup access. BONUS: 2 units have an additional balcony or a porch. This is your chance to owner occupy an incredible investment opportunity, but the rewards of this historic gem don’t end at the property line. Set in the heart of Windom Park, residents are blocks from restaurants, breweries, galleries, trails and shops- minutes from downtown Mpls. Thoughtful updates preserve the irreplaceable character and pride of ownership this unique property has to offer. Schedule your private showing today!
Listing Information
Property Type: Multi-family, Four Plex
Status: Active
Bedrooms: 8
Bathrooms: 4
Lot Size: 0.16 Acres
Square Feet: 3,553 sq ft
Year Built: 1885
Foundation: 1,762 sq ft
Stories: 2 Stories
Subdivision: Hoyts Add To St Anthony
Number Of Units Total: 4
County: Hennepin
Days On Market: 261
Construction Status: Previously Owned
School Information
District: 0001 - Minneapolis
Additonal Room Information
Laundry: In Basement, Common Area
Interior Features
Square Footage above: 3,553 sq ft
Basement: Stone, Unfinished, Shared Access, Storage/Locker
Accessibility: Wheelchair Ramp
Utilities
Water: City Water/Connected
Sewer: City Sewer/Connected
Heating: Forced Air, Natural Gas
Exterior / Lot Features
Parking Description: gravel lot, Uncovered/Open
Exterior: Stucco
Roof: Age Over 8 Years
Lot Dimensions: 50x142
Fencing: Wood, Partial, Privacy
Additional Exterior/Lot Features: Public Transit (w/in 6 blks)
Community Features
Association Amenities: Coin-op Laundry Owned
Driving Directions
Heading South on Central Avenue NE/MN-65, take a right on 22nd Avenue NE, destination is located on the right side of the street right next to the Northeast Library.
Financial Considerations
Other Annual Tax: $338
Tenant Pays: Electric,Fuel,See Remarks
Owner Pays: Lawn,Sewer,Snow,Water
Gross Income: 67630
Expense: 22521.58
Tax/Property ID: 1102924410084
Tax Amount: 8498.42
Tax Year: 2025
HomeStead Description: Non-Homesteaded
A broker reciprocity listing courtesy: Realty ONE Group Choice
The data relating to real estate for sale on this web site comes in part from the Broker Reciprocity℠ Program of the Regional Multiple Listing Service of Minnesota, Inc. Real estate listings held by brokerage firms other than Edina Realty, Inc. are marked with the Broker Reciprocity℠ logo or the Broker Reciprocity℠ thumbnail and detailed information about them includes the name of the listing brokers. Edina Realty, Inc. is not a Multiple Listing Service (MLS), nor does it offer MLS access. This website is a service of Edina Realty, Inc., a broker Participant of the Regional Multiple Listing Service of Minnesota, Inc. IDX information is provided exclusively for consumers personal, non-commercial use and may not be used for any purpose other than to identify prospective properties consumers may be interested in purchasing. Open House information is subject to change without notice. Information deemed reliable but not guaranteed.
Copyright 2026 Regional Multiple Listing Service of Minnesota, Inc. All Rights Reserved.
Payment Calculator
Interest rate and annual percentage rate (APR) are based on current market conditions, are for informational purposes only, are subject to change without notice and may be subject to pricing add-ons related to property type, loan amount, loan-to-value, credit score and other variables. Estimated closing costs used in the APR calculation are assumed to be paid by the borrower at closing. If the closing costs are financed, the loan, APR and payment amounts will be higher. If the down payment is less than 20%, mortgage insurance may be required and could increase the monthly payment and APR. Contact us for details. Additional loan programs may be available. Accuracy is not guaranteed, and all products may not be available in all borrower's geographical areas and are based on their individual situation. This is not a credit decision or a commitment to lend.
Sales History & Tax Summary for 909 22nd Avenue NE
Sales History
| Date | Price | Change |
|---|---|---|
| Currently not available. | ||
Tax Summary
| Tax Year | Estimated Market Value | Total Tax |
|---|---|---|
| Currently not available. | ||
Data powered by ATTOM Data Solutions. Copyright© 2026. Information deemed reliable but not guaranteed.
Schools
Schools nearby 909 22nd Avenue NE
| Schools in attendance boundaries | Grades | Distance | Rating |
|---|---|---|---|
| Loading... | |||
| Schools nearby | Grades | Distance | Rating |
|---|---|---|---|
| Loading... | |||
Data powered by ATTOM Data Solutions. Copyright© 2026. Information deemed reliable but not guaranteed.
The schools shown represent both the assigned schools and schools by distance based on local school and district attendance boundaries. Attendance boundaries change based on various factors and proximity does not guarantee enrollment eligibility. Please consult your real estate agent and/or the school district to confirm the schools this property is zoned to attend. Information is deemed reliable but not guaranteed.
SchoolDigger ® Rating
The SchoolDigger rating system is a 1-5 scale with 5 as the highest rating. SchoolDigger ranks schools based on test scores supplied by each state's Department of Education. They calculate an average standard score by normalizing and averaging each school's test scores across all tests and grades.
Coming soon properties will soon be on the market, but are not yet available for showings.