$360,000
9318 N 11th Street Tampa, FL 33612
For Sale MLS# TB8426470
4 beds 2 baths 1,482 sq ft Multi-family
Details for 9318 N 11th Street
MLS# TB8426470
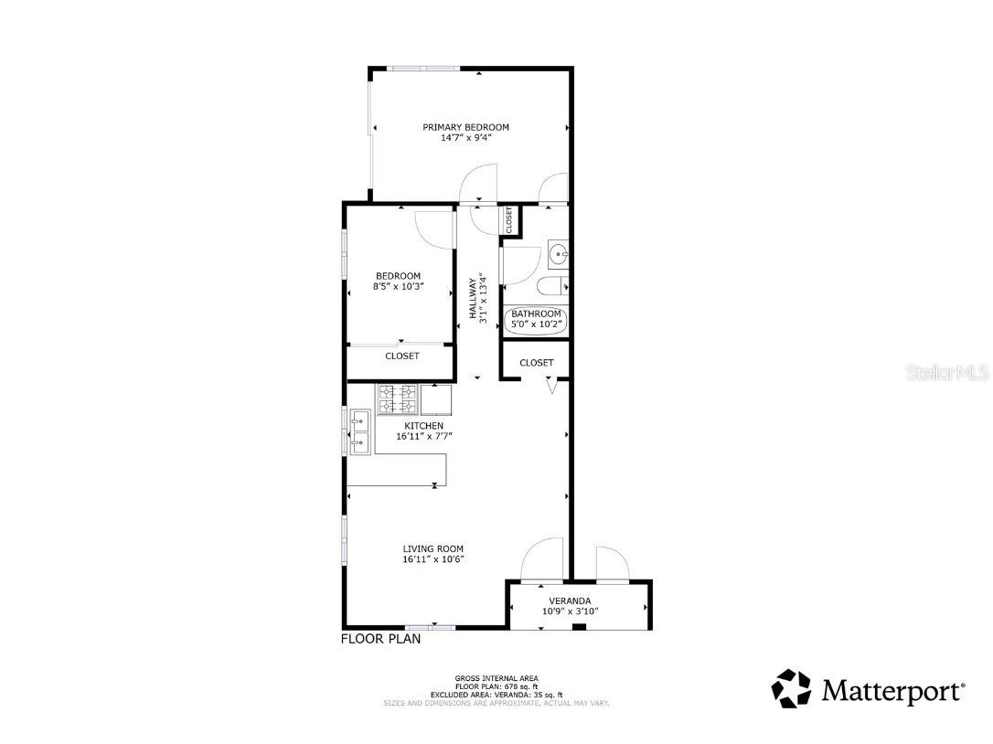
Description for 9318 N 11th Street, Tampa, FL, 33612
Unlock Hidden Equity: Tenant-Occupied Tampa Duplex Primed for Maximized Returns! ONE OF NINE INCOME-PRODUCING PORTFOLIO PROPERTIES FOR SALE: Presenting a fantastic income-generating opportunity at 9318 N 11th St, Tampa, FL 33612. This well-maintained duplex, built in 1974, is situated on a spacious 0.22-acre corner lot and offers a solid foundation for any investment portfolio. The block construction property consists of two separate 2-bedroom, 1-bathroom units, totaling 1,482 square feet of heated living space, and a huge, partially fenced lot. Both units feature durable tile flooring, ceiling fans, and functional open floor plans. This property provides a reliable income stream with both units currently tenant-occupied. As a prime investment, this property is part of a larger 9-property (12 doors) portfolio being offered by a retiring owner (See MLS Listing #TB8428982 FOR COMPLETE PORTFOLIO DETAILS).
Listing Information
Property Type: Residential, Duplex
Status: Active
Bedrooms: 4
Bathrooms: 2
Lot Size: 0.22 Acres
Square Feet: 1,482 sq ft
Year Built: 1974
Construction: Block,Stucco
Construction Display: New Construction
Subdivision: Gateway Sub
Foundation: Slab
Number Of Units Total: 2
County: Hillsborough
Construction Status: New Construction
School Information
Elementary: Forest Hills-Hb
Middle: Adams-Hb
High: Chamberlain-Hb
Additonal Room Information
Laundry: Inside
Interior Features
Appliances: Range, Refrigerator, Range Hood, Microwave
Flooring: Tile
Doors/Windows: Blinds
Additional Interior Features: Main Level Primary, Open Floorplan, Built-in Features, Ceiling Fan(s)
Utilities
Water: Public
Sewer: Public Sewer
Other Utilities: Cable Available,Electricity Available,High Speed Internet Available,Sewer Connected,Water Connected
Cooling: Ceiling Fan(s), Wall/Window Unit(s)
Heating: Wall Furnace, Electric, Window Unit
Exterior / Lot Features
Parking Description: driveway, Parking Pad
Roof: Other
Additional Exterior/Lot Features: Fence, Front Porch, Rear Porch, Covered, Patio, Porch, Corner Lot
Community Features
Community Features: Sidewalks
Security Features: Smoke Detector(s)
Unit Information
Unit 1 Units Total: 1
Unit 1 Actual Rent: 650
Unit 1 Baths Total: 1
Unit 1 Beds Total: 2
Unit 2 Units Total: 1
Unit 2 Actual Rent: 700
Unit 2 Baths Total: 1
Unit 2 Beds Total: 2
Driving Directions
From Copeland Park (11001 N 15th St, Tampa, FL 33612) head southwest, turn right, turn left toward N 15th St, turn left onto N 15th St, turn right onto E Linebaugh Ave., turn left onto N 11th St, turn right onto E Annie St, turn left onto N 11th St, destination will be on the right.
Financial Considerations
Terms: Cash,Conventional,Other,Special Funding
Tenant Pays: Electricity
Gross Income: 16200
Tax/Property ID: A-19-28-19-45D-000006-00005.0
Tax Amount: 2635
Tax Year: 2024
A broker reciprocity listing courtesy: KELLER WILLIAMS SOUTH TAMPA
Based on information provided by Stellar MLS as distributed by the MLS GRID. Information from the Internet Data Exchange is provided exclusively for consumers’ personal, non-commercial use, and such information may not be used for any purpose other than to identify prospective properties consumers may be interested in purchasing. This data is deemed reliable but is not guaranteed to be accurate by Edina Realty, Inc., or by the MLS. Edina Realty, Inc., is not a multiple listing service (MLS), nor does it offer MLS access.
Copyright 2026 Stellar MLS as distributed by the MLS GRID. All Rights Reserved.
Payment Calculator
Interest rate and annual percentage rate (APR) are based on current market conditions, are for informational purposes only, are subject to change without notice and may be subject to pricing add-ons related to property type, loan amount, loan-to-value, credit score and other variables. Estimated closing costs used in the APR calculation are assumed to be paid by the borrower at closing. If the closing costs are financed, the loan, APR and payment amounts will be higher. If the down payment is less than 20%, mortgage insurance may be required and could increase the monthly payment and APR. Contact us for details. Additional loan programs may be available. Accuracy is not guaranteed, and all products may not be available in all borrower's geographical areas and are based on their individual situation. This is not a credit decision or a commitment to lend.
Sales History & Tax Summary for 9318 N 11th Street
Sales History
| Date | Price | |
|---|---|---|
| Currently not available. | ||
Tax Summary
| Tax Year | Estimated Market Value | Total Tax |
|---|---|---|
| Currently not available. | ||
Data powered by ATTOM Data Solutions. Copyright© 2026. Information deemed reliable but not guaranteed.
Schools
Schools nearby 9318 N 11th Street
| Schools in attendance boundaries | Grades | Distance | Rating |
|---|---|---|---|
| Loading... | |||
| Schools nearby | Grades | Distance | Rating |
|---|---|---|---|
| Loading... | |||
Data powered by ATTOM Data Solutions. Copyright© 2026. Information deemed reliable but not guaranteed.
The schools shown represent both the assigned schools and schools by distance based on local school and district attendance boundaries. Attendance boundaries change based on various factors and proximity does not guarantee enrollment eligibility. Please consult your real estate agent and/or the school district to confirm the schools this property is zoned to attend. Information is deemed reliable but not guaranteed.
SchoolDigger ® Rating
The SchoolDigger rating system is a 1-5 scale with 5 as the highest rating. SchoolDigger ranks schools based on test scores supplied by each state's Department of Education. They calculate an average standard score by normalizing and averaging each school's test scores across all tests and grades.
Coming soon properties will soon be on the market, but are not yet available for showings.