$1,700/month
1010 Candlelight Drive Lehigh Acres, FL 33974
For Rent MLS# 2025020008
3 beds 2 baths 1,493 sq ft Single Family
Details for 1010 Candlelight Drive
MLS# 2025020008
Description for 1010 Candlelight Drive, Lehigh Acres, FL, 33974
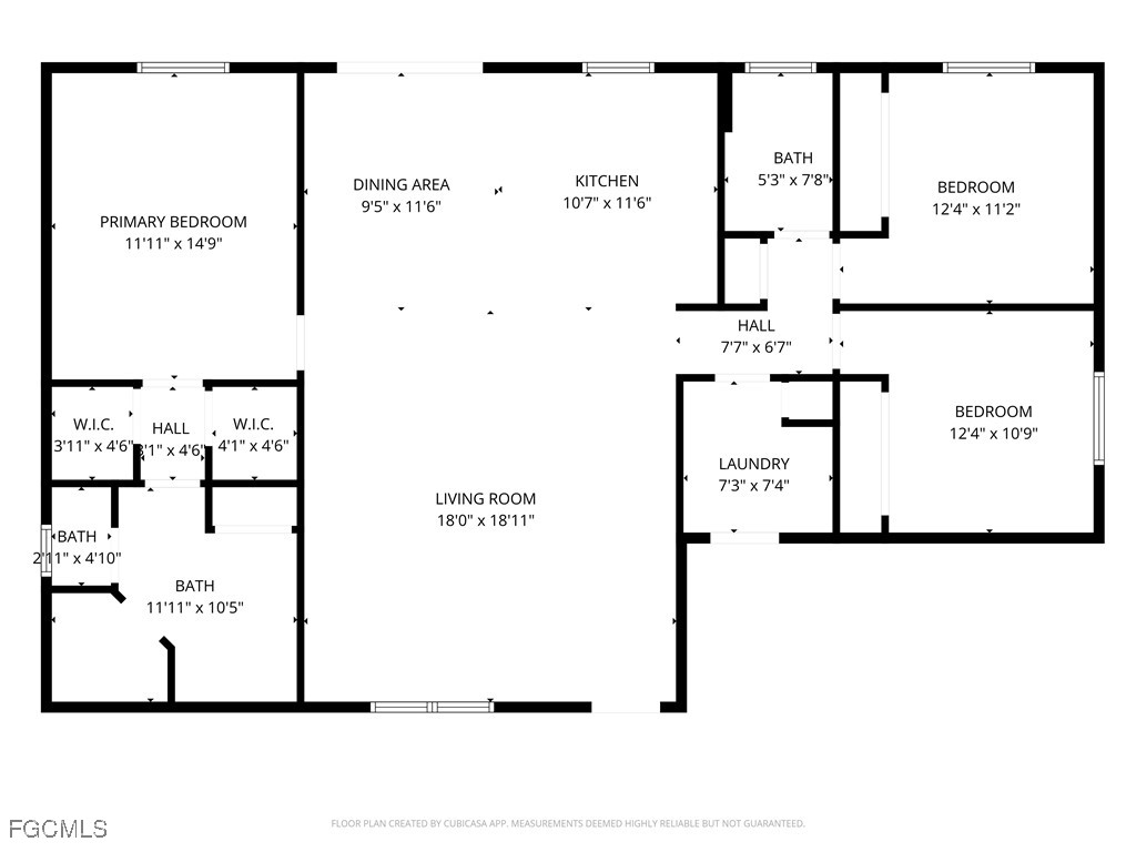
3 bedroom, 2 bath with new carpet in bedrooms and LVP in main living area. This house is located in a quiet neighborhood on a canal within minutes of SR 82. Freshly painted interior and exterior, spacious bedrooms and open concept floor-plan, with a screened lanai that overlooks the private backyard and canal. Pets will be considered with completed application and required deposit paid. Included in the monthly rental payment all Access Real Estate residents are enrolled in the Resident Benefits Package (RBP) which includes required renters’ insurance, HVAC air filter delivery (for applicable properties), credit building to help boost your credit score with timely rent payments, $1M Identity Protection, move-in concierge service making utility connection and home service setup a breeze during your move-in, our best-in-class resident rewards program, and much more! More details upon application. First month rent, security deposit (and pet deposit if applicable) plus $100 admin fee required to move in.
Listing Information
Property Type: Rental, Single Family Residence
Status: Active
Bedrooms: 3
Bathrooms: 2
Lot Size: 0.23 Acres
Square Feet: 1,493 sq ft
Year Built: 2006
Garage: Yes
Stories: 1 Story
Subdivision: Lehigh Acres
Furnished: Yes
County: Lee
Days On Market: 16
Room Information
Bathrooms
Full Baths: 2
Additonal Room Information
Laundry: Dryer Hookup, Inside, Washer Hookup
Interior Features
Appliances: Dishwasher, Freezer, Microwave, Range, Refrigerator
Flooring: Carpet,Vinyl
Doors/Windows: Window Coverings
Additional Interior Features: Split Bedrooms, Walk-In Closet(s), High Ceilings, Window Treatments
Utilities
Other Utilities: Cable Available
Cooling: Ceiling Fan(s), Electric, Central Air
Heating: Electric, Central
Exterior / Lot Features
Attached Garage: Attached Garage
Garage Spaces: 2
Parking Description: Attached, Garage
Lot View: Trees/Woods
Additional Exterior/Lot Features: Porch, Lanai, Screened
Community Features
Security Features: Smoke Detector(s)
Security Deposit: 1700
Financial Considerations
Tenant Pays: Application Fee,Electricity,Grounds Care,Pest Control,Pet Deposit
Owner Pays: Taxes,Trash Collection
Tax/Property ID: 23-45-27-L3-15057.0040
A broker reciprocity listing courtesy: Access Real Estate
Based on information provided by FGCMLS. Internet Data Exchange information is provided exclusively for consumers’ personal, non-commercial use, and such information may not be used for any purpose other than to identify prospective properties consumers may be interested in purchasing. This data is deemed reliable but is not guaranteed to be accurate by Edina Realty, Inc., or by the MLS. Edina Realty, Inc., is not a multiple listing service (MLS), nor does it offer MLS access.
Copyright 2025 FGCMLS. All Rights Reserved.
Sales History & Tax Summary for 1010 Candlelight Drive
Sales History
| Date | Price | Change |
|---|---|---|
| Currently not available. | ||
Tax Summary
| Tax Year | Estimated Market Value | Total Tax |
|---|---|---|
| Currently not available. | ||
Data powered by ATTOM Data Solutions. Copyright© 2025. Information deemed reliable but not guaranteed.
Schools
Schools nearby 1010 Candlelight Drive
| Schools in attendance boundaries | Grades | Distance | Rating |
|---|---|---|---|
| Loading... | |||
| Schools nearby | Grades | Distance | Rating |
|---|---|---|---|
| Loading... | |||
Data powered by ATTOM Data Solutions. Copyright© 2025. Information deemed reliable but not guaranteed.
The schools shown represent both the assigned schools and schools by distance based on local school and district attendance boundaries. Attendance boundaries change based on various factors and proximity does not guarantee enrollment eligibility. Please consult your real estate agent and/or the school district to confirm the schools this property is zoned to attend. Information is deemed reliable but not guaranteed.
SchoolDigger ® Rating
The SchoolDigger rating system is a 1-5 scale with 5 as the highest rating. SchoolDigger ranks schools based on test scores supplied by each state's Department of Education. They calculate an average standard score by normalizing and averaging each school's test scores across all tests and grades.
Coming soon properties will soon be on the market, but are not yet available for showings.