$2,799/month
10620 Whittington Court Largo, FL 33773
For Rent MLS# TB8401227
3 beds 3 baths 1,990 sq ft Townhouse/Twinhome
Details for 10620 Whittington Court
MLS# TB8401227
Description for 10620 Whittington Court, Largo, FL, 33773
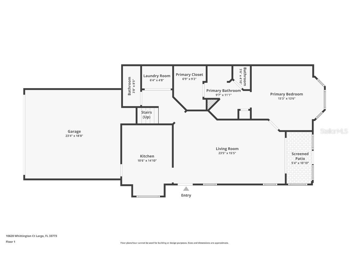
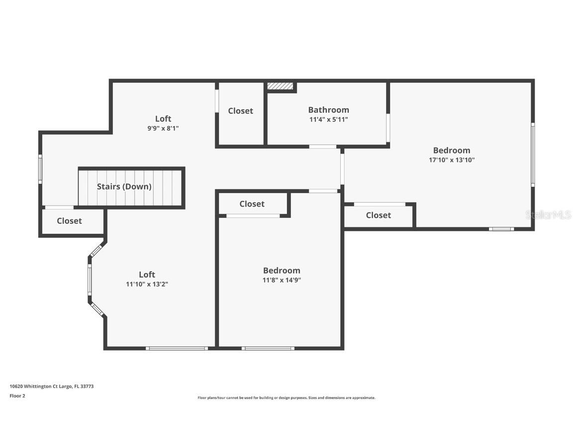
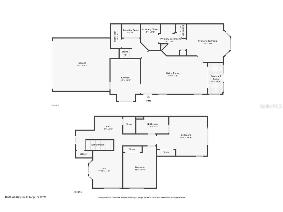
One or more photo(s) has been virtually staged. Welcome home to the exlcusive Whittington community! Around the corner from Largo Mall and just a short trip away from the world-famous beaches, St. Pete, Tampa, Two International Airports, and I-275! This magnificent Three (3) Bedroom, Two and a half (2.5) Bathroom, condo with a BONUS spacious office/den space is nestled right in the heart of Largo! When pulling up to the wonderful Two (2) car garage, you are greeted by a lovely kitchen and breakfast nook and a pathway to the massive 25x12 living room area with a kitchen bar to entertain! Towards the back of the living room, is the private entry to the spacious first-floor master bedroom, and bathroom with an oversized 8x8 walk-in closet and a Jack + Jill vanity and adjacent shower. This quiet home has a sleek landing Den or Entertaining area upstairs near the 2 guest bedrooms, perfect for working privately at home or further expanding home entertainment! After walking through the living room, you will find a full sliding glass door leading up to the quaint screened-in porch, perfect for relaxing with a view of the gardens. Included in this vibrant community is a full gym, cool clubhouse, luxurious pool, perfect for soaking up the Florida Sunshine, 24/7 gated and limited access community, garage parking, plenty of visitor parking, heated swimming pool with dual gazebos, and an on-site gym. Included in the lease is basic internet and cable services. Please text or call for a private showing today!
Listing Information
Property Type: Rental, Townhouse
Status: Active
Bedrooms: 3
Bathrooms: 3
Lot Size: 0.09 Acres
Square Feet: 1,990 sq ft
Year Built: 2007
Garage: Yes
Stories: 2 Story
Date Available: 6/26/2025
Subdivision: Whittington Court Twnhms
County: Pinellas
Room Information
Main Floor
Primary Bathroom:
Primary Bedroom:
Living Room:
Kitchen: 10x10
Bathrooms
Full Baths: 2
1/2 Baths: 1
Additonal Room Information
Laundry: Inside, Laundry Closet
Interior Features
Appliances: Washer, Range, Refrigerator, Dishwasher, Disposal, Dryer
Flooring: Carpet,Ceramic Tile
Doors/Windows: Blinds
Additional Interior Features: Ceiling Fan(s), Loft, Living/Dining Room, Main Level Primary, High Ceilings
Utilities
Water: Public
Sewer: Public Sewer
Other Utilities: Cable Connected,Electricity Connected,Municipal Utilities,Sewer Connected,Underground Utilities,Water Connected
Cooling: Ceiling Fan(s), Central Air
Heating: Electric
Exterior / Lot Features
Attached Garage: Attached Garage
Garage Spaces: 2
Parking Description: Garage, Garage Door Opener
Pool: Community, In Ground, Association
Additional Exterior/Lot Features: Enclosed, Covered, Patio
Community Features
Community Features: Sidewalks, Pool, Clubhouse, Fitness
Association Amenities: Pool, Gated, Clubhouse, Fitness Center
Security Deposit: 3100
Driving Directions
From Seminole Blvd just south of Largo Mall, turn east onto Whittington Ct. Unit is 2nd straight in, just past the unit with the American flag in the lawn
Financial Considerations
Tenant Pays: Carpet Cleaning Fee,Janitorial Service
Owner Pays: Cable TV,Grounds Care,Insurance,Laundry,Taxes,Trash Collection
Tax/Property ID: 10-30-15-97480-103-0060
A broker reciprocity listing courtesy: A BETTER LIFE REALTY
Based on information provided by Stellar MLS as distributed by the MLS GRID. Information from the Internet Data Exchange is provided exclusively for consumers’ personal, non-commercial use, and such information may not be used for any purpose other than to identify prospective properties consumers may be interested in purchasing. This data is deemed reliable but is not guaranteed to be accurate by Edina Realty, Inc., or by the MLS. Edina Realty, Inc., is not a multiple listing service (MLS), nor does it offer MLS access.
Copyright 2025 Stellar MLS as distributed by the MLS GRID. All Rights Reserved.
Sales History & Tax Summary for 10620 Whittington Court
Sales History
| Date | Price | Change |
|---|---|---|
| Currently not available. | ||
Tax Summary
| Tax Year | Estimated Market Value | Total Tax |
|---|---|---|
| Currently not available. | ||
Data powered by ATTOM Data Solutions. Copyright© 2025. Information deemed reliable but not guaranteed.
Schools
Schools nearby 10620 Whittington Court
| Schools in attendance boundaries | Grades | Distance | Rating |
|---|---|---|---|
| Loading... | |||
| Schools nearby | Grades | Distance | Rating |
|---|---|---|---|
| Loading... | |||
Data powered by ATTOM Data Solutions. Copyright© 2025. Information deemed reliable but not guaranteed.
The schools shown represent both the assigned schools and schools by distance based on local school and district attendance boundaries. Attendance boundaries change based on various factors and proximity does not guarantee enrollment eligibility. Please consult your real estate agent and/or the school district to confirm the schools this property is zoned to attend. Information is deemed reliable but not guaranteed.
SchoolDigger ® Rating
The SchoolDigger rating system is a 1-5 scale with 5 as the highest rating. SchoolDigger ranks schools based on test scores supplied by each state's Department of Education. They calculate an average standard score by normalizing and averaging each school's test scores across all tests and grades.
Coming soon properties will soon be on the market, but are not yet available for showings.