$1,400/month
1072 S Victory Drive Mankato, MN 56001
For Rent MLS# 7038931
Commercial
Details for 1072 S Victory Drive
MLS# 7038931
Description for 1072 S Victory Drive, Mankato, MN, 56001
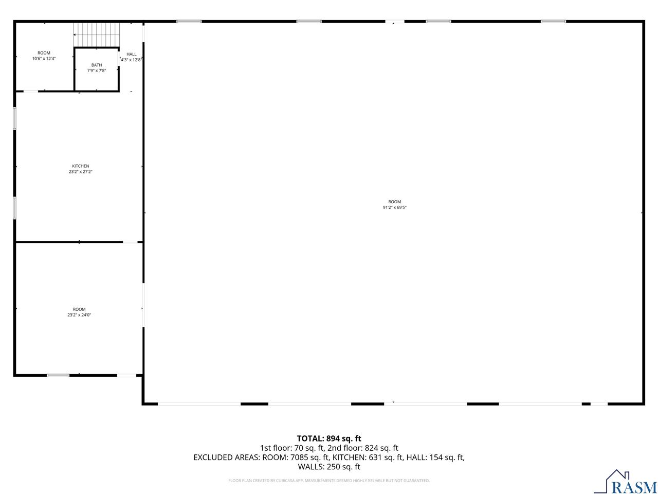
This property finds its home in Mankato's Contractors Park. With a footprint of approximately 8208 SF, this open floor plan has heated and cooled shop/warehouse space of approximately 6624 SF with four 14'x15' overhead doors and floor drains. Shop has in-floor heat. An additional finished space with smaller OHD to the main building has a space that could be an office/showroom separated from a larger open floor plan area/breakroom with full kitchen, and 3/4 bath. Washer/dryer hookups in the utility room complete the main floor of approximately 1524 SF. The upper level mezzanine has a flexible space and 5 private offices. Parking includes 5+ parking spaces with overflow available. This property is available for sale or lease. Association fees are $500/month for lawn care and snow removal.
Listing Information
Property Type: Commercial
Status: Active
Year Built: 2016
Foundation: 8,208 sq ft
Construction: Other (explain in rmks)
Current Use: Warehouse
County: Blue Earth
Days On Market: 60
School Information
District: Mankato #77
Interior Features
Additional Interior Features: Kitchen Area, Restrooms
Utilities
Water: City
Sewer: City
Cooling: Central
Heating: Natural Gas, Forced Air
Exterior / Lot Features
Parking Description: Driveway - Concrete, Driveway - Shared, Garage Door Opener, Heated Garage, Insulated Garage, Shared Parking
Exterior: Metal
Roof: Metal
Additional Exterior/Lot Features: Road Frontage - Private
Driving Directions
South on Victory Drive to Contractors Park. Follow the road towards the back of the property to the blue metal building.
Financial Considerations
Terms: Cash,Conventional
Owner Pays: Association Fee,Electric,Janitorial,Lawn,Maint./Repair,Snow,Trash,Water/Sewer
Tax/Property ID: R01.09.21.326.031
Tax Amount: 14733
Tax Year: 2025
A broker reciprocity listing courtesy: TRUE REAL ESTATE
The data relating to real estate for sale on this web site comes in part from the Broker Reciprocity℠ Program of the REALTOR® Association of So MN Multiple Listing Service. Real estate listings held by brokerage firms other than Edina Realty, Inc. are marked with the Broker Reciprocity℠ logo or the Broker Reciprocity℠ thumbnail and detailed information about them includes the name of the listing brokers. Edina Realty, Inc. is not a Multiple Listing Service (MLS), nor does it offer MLS access. This website is a service of Edina Realty, Inc., a broker Participant of the REALTOR® Association of So MN Multiple Listing Service. IDX information is provided exclusively for consumers personal, non-commercial use and may not be used for any purpose other than to identify prospective properties consumers may be interested in purchasing. Open House information is subject to change without notice. Information deemed reliable but not guaranteed.
Copyright 2025 REALTOR® Association of So MN Multiple Listing Service. All Rights Reserved.
Sales History & Tax Summary for 1072 S Victory Drive
Sales History
| Date | Price | Change |
|---|---|---|
| Currently not available. | ||
Tax Summary
| Tax Year | Estimated Market Value | Total Tax |
|---|---|---|
| Currently not available. | ||
Data powered by ATTOM Data Solutions. Copyright© 2025. Information deemed reliable but not guaranteed.
Schools
Schools nearby 1072 S Victory Drive
| Schools in attendance boundaries | Grades | Distance | Rating |
|---|---|---|---|
| Loading... | |||
| Schools nearby | Grades | Distance | Rating |
|---|---|---|---|
| Loading... | |||
Data powered by ATTOM Data Solutions. Copyright© 2025. Information deemed reliable but not guaranteed.
The schools shown represent both the assigned schools and schools by distance based on local school and district attendance boundaries. Attendance boundaries change based on various factors and proximity does not guarantee enrollment eligibility. Please consult your real estate agent and/or the school district to confirm the schools this property is zoned to attend. Information is deemed reliable but not guaranteed.
SchoolDigger ® Rating
The SchoolDigger rating system is a 1-5 scale with 5 as the highest rating. SchoolDigger ranks schools based on test scores supplied by each state's Department of Education. They calculate an average standard score by normalizing and averaging each school's test scores across all tests and grades.
Coming soon properties will soon be on the market, but are not yet available for showings.