$457,730/month
10941 Ne 89th Drive The Villages, FL 32162
For Rent MLS# G5096272
Commercial
Details for 10941 Ne 89th Drive
MLS# G5096272
Description for 10941 Ne 89th Drive, The Villages, FL, 32162
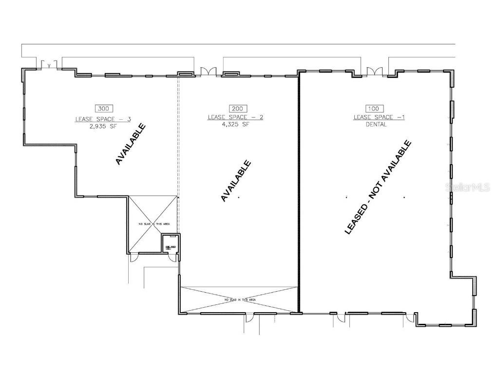
Under Construction. NEW CONSTRUCTION! The dark gray shell is estimated to be ready for delivery to prospective tenants in Fall of 2025. Bring your medical, office, or retail business to this amazing location. This property is adjacent to the new Wal-Mart to be constructed. This new Commercial strip center is direct frontage on CR466, a well traveled thoroughfare with over 25,000 vehicles per day, which is sure to increase with the new Wal-Mart to the east and Costco to the west. Available spaces are unit #200 which is 4,325 sq ft and unit #300 which is 2,935 sq ft, or combine for 7,260 sq ft. The adjacent space, unit #100, is a Dentist, under contract. The adjacent building, which is also under construction, will be a thriving Dermatology practice that will bring continuous traffic to the site. In addition to the base rent, there will also be $4 CAM and $4 additional rent to cover real estate taxes and insurance. 5-year lease term minimum
Listing Information
Property Type: Commercial, Business
Status: Active
Lot Size: 1.46 Acres
Year Built: 2025
Construction: Block,Other,Stone,Stucco
Construction Display: New Construction
Foundation: Concrete Perimeter,Stem Wall
County: Sumter
Construction Status: Under Construction
Interior Features
Accessibility: Accessible Approach with Ramp, Accessible Doors
Exterior / Lot Features
Parking Description: Common
Roof: Membrane
Driving Directions
From 441/27, head west on 466, just past CR101 / Cherry Lake Rd, the building will be on the left. Access will be off of CR101 and from NE 89th Dr, which is the main driveway to the apartments. Cross access is provided with an easement.
Financial Considerations
Tenant Pays: Common Area Maintenance,Electricity,Insurance,Taxes,Trash Collection
Owner Pays: Grounds Care,Management,Sewer
Tax/Property ID: D24J001
Tax Amount: 9327.61
Tax Year: 2024
A broker reciprocity listing courtesy: MORRIS REALTY AND INVESTMENTS
Based on information provided by Stellar MLS as distributed by the MLS GRID. Information from the Internet Data Exchange is provided exclusively for consumers’ personal, non-commercial use, and such information may not be used for any purpose other than to identify prospective properties consumers may be interested in purchasing. This data is deemed reliable but is not guaranteed to be accurate by Edina Realty, Inc., or by the MLS. Edina Realty, Inc., is not a multiple listing service (MLS), nor does it offer MLS access.
Copyright 2026 Stellar MLS as distributed by the MLS GRID. All Rights Reserved.
Sales History & Tax Summary for 10941 Ne 89th Drive
Sales History
| Date | Price | |
|---|---|---|
| Currently not available. | ||
Tax Summary
| Tax Year | Estimated Market Value | Total Tax |
|---|---|---|
| Currently not available. | ||
Data powered by ATTOM Data Solutions. Copyright© 2026. Information deemed reliable but not guaranteed.
Schools
Schools nearby 10941 Ne 89th Drive
| Schools in attendance boundaries | Grades | Distance | Rating |
|---|---|---|---|
| Loading... | |||
| Schools nearby | Grades | Distance | Rating |
|---|---|---|---|
| Loading... | |||
Data powered by ATTOM Data Solutions. Copyright© 2026. Information deemed reliable but not guaranteed.
The schools shown represent both the assigned schools and schools by distance based on local school and district attendance boundaries. Attendance boundaries change based on various factors and proximity does not guarantee enrollment eligibility. Please consult your real estate agent and/or the school district to confirm the schools this property is zoned to attend. Information is deemed reliable but not guaranteed.
SchoolDigger ® Rating
The SchoolDigger rating system is a 1-5 scale with 5 as the highest rating. SchoolDigger ranks schools based on test scores supplied by each state's Department of Education. They calculate an average standard score by normalizing and averaging each school's test scores across all tests and grades.
Coming soon properties will soon be on the market, but are not yet available for showings.