$3,600/month
11323 Cypress Drive Clermont, FL 34711 - LAKE MINNEHAHA
For Rent MLS# G5103274
3 beds 2 baths 2,189 sq ft Single Family
Details for 11323 Cypress Drive
MLS# G5103274
Description for 11323 Cypress Drive, Clermont, FL, 34711 - LAKE MINNEHAHA
Welcome to paradise at this stunning 3-bedroom, 2-bathroom waterfront gem. The home was fully remodeled in September 2025, boasting brand-new floors, new kitchen with stainless steel appliances and granite countertops, updated baths, and energy-efficient windows that flood the space with natural light. Perfectly positioned with dual frontage—100 feet on serene Lake Minnehaha and 100 feet on the adjoining canal—this home offers unparalleled water access. Enjoy your private boat dock with covered lift on the canal for effortless boating, plus a separate dock directly on the lake for fishing or relaxing by the water's edge. Step onto your own sandy beach for toes-in-the-sand vibes, and unwind with breathtaking sunset views every evening. An additional full bath in the utility room adds convenience for post-lake adventures. Available for a 12-month lease—don't miss this rare opportunity to live the ultimate Florida lakeside lifestyle!
Listing Information
Property Type: Rental, Single Family Residence
Status: Active
Bedrooms: 3
Bathrooms: 2
Lot Size: 0.45 Acres
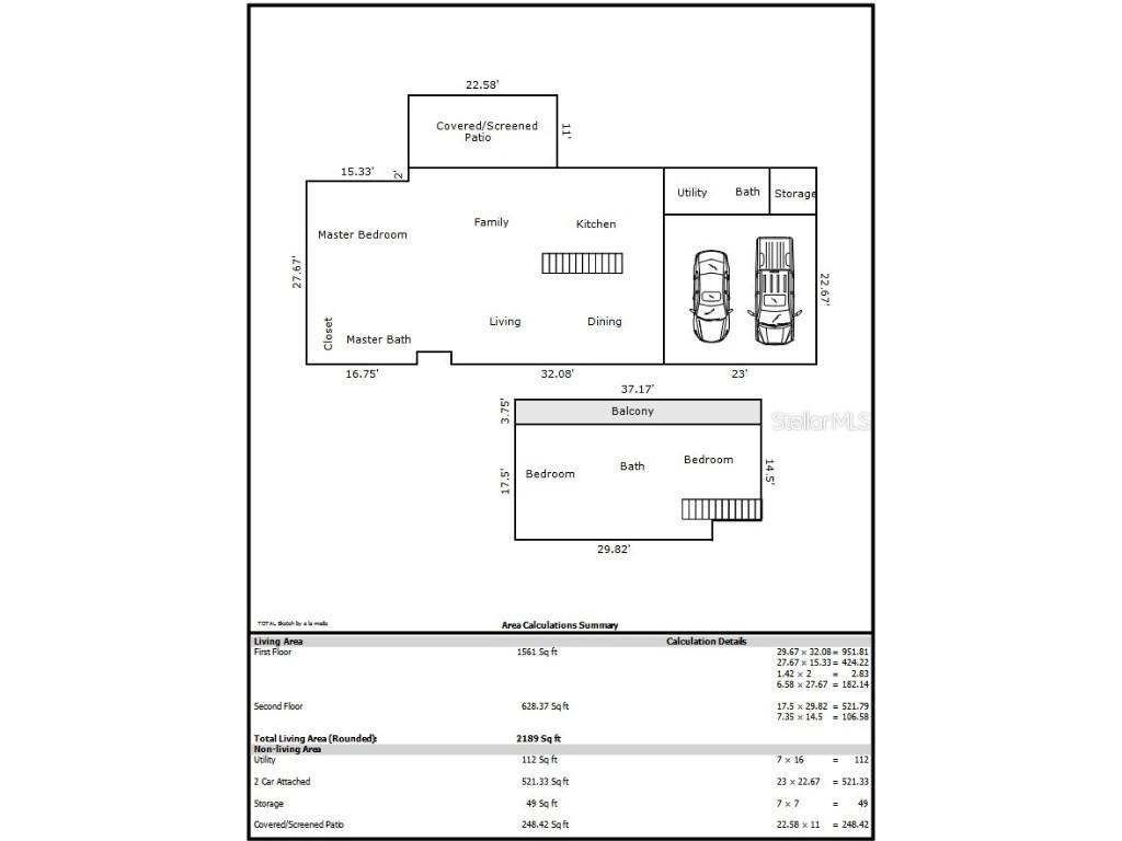
Square Feet: 2,189 sq ft
Year Built: 1970
Garage: Yes
Stories: 2 Story
Date Available: 10/13/2025
Subdivision: Shorewood Park
County: Lake
Room Information
Main Floor
Primary Bathroom:
Primary Bedroom:
Kitchen:
Living Room:
Family Room:
Upper Floor
Bathroom 2:
Bedroom 3:
Bedroom 2:
Bathrooms
Full Baths: 2
Additonal Room Information
Laundry: In Garage
Interior Features
Appliances: Microwave, Dishwasher, Disposal, Range, Refrigerator, Electric Water Heater
Flooring: Carpet,Ceramic Tile
Additional Interior Features: Separate/Formal Living Room, Solid Surface Counters, Separate/Formal Dining Room, Main Level Primary
Utilities
Water: Public
Sewer: Septic Tank
Other Utilities: Cable Available,Electricity Connected,High Speed Internet Available,Water Connected
Cooling: Attic Fan, Central Air
Heating: Electric, Central
Exterior / Lot Features
Attached Garage: Attached Garage
Garage Spaces: 2
Parking Description: Bath In Garage, Garage, Garage Door Opener
Lot View: Canal,Lake,Water
Lot Dimensions: 100x195
Additional Exterior/Lot Features: Sprinkler/Irrigation, Balcony, Balcony, Screened, Flat, Level, Outside City Limits
Out Buildings: Other
Waterfront Details
Standard Water Body: LAKE MINNEHAHA
Water Front Features: Canal Front, Lake Privileges, Lake, Lake Front
Community Features
Security Features: Smoke Detector(s)
Security Deposit: 2000
Driving Directions
From SR 50/27 take 27 south to Hammock Ridge Blvd. Turn right onto Hammock Ridge. Hammock Ridge turns into Lakeshore Drive. Turn right at Harder Road (stoplight). Turn right onto Cypress Drive. Home is on the left.
Financial Considerations
Owner Pays: Repairs,Taxes,Trash Collection
Tax/Property ID: 01-23-25-0700-000-00600
A broker reciprocity listing courtesy: THE MARKET REALTY GROUP
Based on information provided by Stellar MLS as distributed by the MLS GRID. Information from the Internet Data Exchange is provided exclusively for consumers’ personal, non-commercial use, and such information may not be used for any purpose other than to identify prospective properties consumers may be interested in purchasing. This data is deemed reliable but is not guaranteed to be accurate by Edina Realty, Inc., or by the MLS. Edina Realty, Inc., is not a multiple listing service (MLS), nor does it offer MLS access.
Copyright 2025 Stellar MLS as distributed by the MLS GRID. All Rights Reserved.
Sales History & Tax Summary for 11323 Cypress Drive
Sales History
| Date | Price | Change |
|---|---|---|
| Currently not available. | ||
Tax Summary
| Tax Year | Estimated Market Value | Total Tax |
|---|---|---|
| Currently not available. | ||
Data powered by ATTOM Data Solutions. Copyright© 2025. Information deemed reliable but not guaranteed.
Schools
Schools nearby 11323 Cypress Drive
| Schools in attendance boundaries | Grades | Distance | Rating |
|---|---|---|---|
| Loading... | |||
| Schools nearby | Grades | Distance | Rating |
|---|---|---|---|
| Loading... | |||
Data powered by ATTOM Data Solutions. Copyright© 2025. Information deemed reliable but not guaranteed.
The schools shown represent both the assigned schools and schools by distance based on local school and district attendance boundaries. Attendance boundaries change based on various factors and proximity does not guarantee enrollment eligibility. Please consult your real estate agent and/or the school district to confirm the schools this property is zoned to attend. Information is deemed reliable but not guaranteed.
SchoolDigger ® Rating
The SchoolDigger rating system is a 1-5 scale with 5 as the highest rating. SchoolDigger ranks schools based on test scores supplied by each state's Department of Education. They calculate an average standard score by normalizing and averaging each school's test scores across all tests and grades.
Coming soon properties will soon be on the market, but are not yet available for showings.