$12/month
114 Thomas Circle Monticello, MN 55362
For Rent MLS# 7005318
Other
Details for 114 Thomas Circle
MLS# 7005318
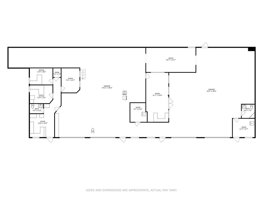
Description for 114 Thomas Circle, Monticello, MN, 55362
Industrial building for lease in Monticello's established and growing industrial park, located just south of I-94 for excellent regional access. This ±5,904 sq ft industrial facility sits on a .68-acre lot with ample on-site parking and flexible functionality for a wide range of users.The building offers approximately 4,700 sq ft of warehouse space, 900 sq ft of office, and an additional environmental control room. Features include 14' ceiling height, one loading dock, four drive-in doors, mezzanine space, upgraded electrical, private offices, breakroom, and two bathrooms. Ideal for light manufacturing, trades, contracting, storage, auto body or repair service, or service-based operations. Zoned I-1 Industrial. Built in 1997. Offered at $12/sq ft Gross Lease with a 2-5 year minimum term. Landlord pays taxes and insurance; tenant responsible for utilities, snow, and lawn maintenance. Strong location within a thriving commercial and industrial corridor.
Listing Information
Property Type: Commercial
Status: Active
Lot Size: 0.69 Acres
Square Feet: 5,904 sq ft
Year Built: 1997
Foundation: 5,904 sq ft
Garage: Yes
Stories: 1 Story
Subdivision: Thomas Park
Number Of Units Total: 1
Current Use: Automobile Service,Commercial,Industrial,Manufacturing,Professional Service,Storage Facility,Warehouse
County: Wright
Days On Market: 63
Construction Status: Previously Owned
School Information
District: 882 - Monticello
Interior Features
Accessibility: No Stairs External, No Stairs Internal
Utilities
Water: City Water/Connected
Sewer: City Sewer/Connected
Other Utilities: Electric Separate,Heating Separate
Cooling: Central
Heating: Forced Air, Natural Gas
Exterior / Lot Features
Attached Garage: Attached Garage
Garage Spaces: 5
Open Parking: 20
Parking Description: Parking Garage, Parking Lot, Storage, Paved Lot, Covered, Driveway - Asphalt, Electric, Attached Garage, Heated Garage, Insulated Garage, Floor Drain, Finished Garage, Garage Sq Ft - 5904.
Exterior: Steel Siding
Roof: Metal
Lot Dimensions: 15x138x200x150x190
Zoning: Industrial
Topography: Level
Additional Exterior/Lot Features: Overhead Doors, Loading Dock, Corner Lot, Land Inclusions - Building,Leases
Driving Directions
94 to Monticello. MN exit 25. S from MN 24 turn left onto Chelsea Rd then left onto Thomas Park Dr then left onto Thomas Circle
Financial Considerations
Tenant Pays: All Utilities,HVAC Maintenance,Insurance,Janitorial,Lawn,Maintenance/Repair,Repairs,Snow,Trash
Owner Pays: Insurance,Taxes
Tax/Property ID: 155038001070
Tax Amount: 1
Tax Year: 2026
HomeStead Description: Non-Homesteaded
A broker reciprocity listing courtesy: RE/MAX Results
The data relating to real estate for sale on this web site comes in part from the Broker Reciprocity℠ Program of the Regional Multiple Listing Service of Minnesota, Inc. Real estate listings held by brokerage firms other than Edina Realty, Inc. are marked with the Broker Reciprocity℠ logo or the Broker Reciprocity℠ thumbnail and detailed information about them includes the name of the listing brokers. Edina Realty, Inc. is not a Multiple Listing Service (MLS), nor does it offer MLS access. This website is a service of Edina Realty, Inc., a broker Participant of the Regional Multiple Listing Service of Minnesota, Inc. IDX information is provided exclusively for consumers personal, non-commercial use and may not be used for any purpose other than to identify prospective properties consumers may be interested in purchasing. Open House information is subject to change without notice. Information deemed reliable but not guaranteed.
Copyright 2026 Regional Multiple Listing Service of Minnesota, Inc. All Rights Reserved.
Sales History & Tax Summary for 114 Thomas Circle
Sales History
| Date | Price | |
|---|---|---|
| Currently not available. | ||
Tax Summary
| Tax Year | Estimated Market Value | Total Tax |
|---|---|---|
| Currently not available. | ||
Data powered by ATTOM Data Solutions. Copyright© 2026. Information deemed reliable but not guaranteed.
Schools
Schools nearby 114 Thomas Circle
| Schools in attendance boundaries | Grades | Distance | Rating |
|---|---|---|---|
| Loading... | |||
| Schools nearby | Grades | Distance | Rating |
|---|---|---|---|
| Loading... | |||
Data powered by ATTOM Data Solutions. Copyright© 2026. Information deemed reliable but not guaranteed.
The schools shown represent both the assigned schools and schools by distance based on local school and district attendance boundaries. Attendance boundaries change based on various factors and proximity does not guarantee enrollment eligibility. Please consult your real estate agent and/or the school district to confirm the schools this property is zoned to attend. Information is deemed reliable but not guaranteed.
SchoolDigger ® Rating
The SchoolDigger rating system is a 1-5 scale with 5 as the highest rating. SchoolDigger ranks schools based on test scores supplied by each state's Department of Education. They calculate an average standard score by normalizing and averaging each school's test scores across all tests and grades.
Coming soon properties will soon be on the market, but are not yet available for showings.