$893,200/month
1324 E 7th Avenue Tampa, FL 33605
For Rent MLS# TB8455624
21,555 sq ft Commercial
Details for 1324 E 7th Avenue
MLS# TB8455624
Description for 1324 E 7th Avenue, Tampa, FL, 33605
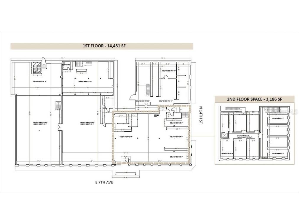
Situated in the heart of Ybor City right on 7th Avenue, this historic brick building offers a rare opportunity to secure space on the main thoroughfare of East Tampa’s vibrant district. With over 17,000 square feet available, the property is ideal for office, retail, or restaurant use- and can be subdivided to fit your needs. Ample onsite parking is included, and tenant improvements options are available to support your build-to-suit vision.
Listing Information
Property Type: Commercial, Mixed Use
Status: Active
Lot Size: 0.35 Acres
Square Feet: 21,555 sq ft
Year Built: 1905
Stories: 2 Story
Construction: Block
Construction Display: New Construction
Subdivision: Ybor City Blk Y
Foundation: Slab
County: Hillsborough
Construction Status: Fixer
Utilities
Cooling: Central Air
Exterior / Lot Features
Lot Dimensions: 116x95
Driving Directions
From Interstate- 4: Take Ybor City Exit. Head south on 21st Street to 7th Avenue. Turn right. Head west to 14th Street/ Avenida Republica de Cuba. Property will be on your right just after the intersection.
Financial Considerations
Tenant Pays: Common Area Maintenance
Owner Pays: Other
Tax/Property ID: A-18-29-19-50N-000029-00009.0
Tax Amount: 33382.42
Tax Year: 2024
A broker reciprocity listing courtesy: FLORIDA COMMERCIAL GROUP
Based on information provided by Stellar MLS as distributed by the MLS GRID. Information from the Internet Data Exchange is provided exclusively for consumers’ personal, non-commercial use, and such information may not be used for any purpose other than to identify prospective properties consumers may be interested in purchasing. This data is deemed reliable but is not guaranteed to be accurate by Edina Realty, Inc., or by the MLS. Edina Realty, Inc., is not a multiple listing service (MLS), nor does it offer MLS access.
Copyright 2025 Stellar MLS as distributed by the MLS GRID. All Rights Reserved.
Sales History & Tax Summary for 1324 E 7th Avenue
Sales History
| Date | Price | Change |
|---|---|---|
| Currently not available. | ||
Tax Summary
| Tax Year | Estimated Market Value | Total Tax |
|---|---|---|
| Currently not available. | ||
Data powered by ATTOM Data Solutions. Copyright© 2025. Information deemed reliable but not guaranteed.
Schools
Schools nearby 1324 E 7th Avenue
| Schools in attendance boundaries | Grades | Distance | Rating |
|---|---|---|---|
| Loading... | |||
| Schools nearby | Grades | Distance | Rating |
|---|---|---|---|
| Loading... | |||
Data powered by ATTOM Data Solutions. Copyright© 2025. Information deemed reliable but not guaranteed.
The schools shown represent both the assigned schools and schools by distance based on local school and district attendance boundaries. Attendance boundaries change based on various factors and proximity does not guarantee enrollment eligibility. Please consult your real estate agent and/or the school district to confirm the schools this property is zoned to attend. Information is deemed reliable but not guaranteed.
SchoolDigger ® Rating
The SchoolDigger rating system is a 1-5 scale with 5 as the highest rating. SchoolDigger ranks schools based on test scores supplied by each state's Department of Education. They calculate an average standard score by normalizing and averaging each school's test scores across all tests and grades.
Coming soon properties will soon be on the market, but are not yet available for showings.