13521 Stacey Drive Hudson, FL 34667 - GULF OF AMERICA
For Sale MLS# W7879249
6 beds 3 baths 2,005 sq ft Single Family
Details for 13521 Stacey Drive
MLS# W7879249
Description for 13521 Stacey Drive, Hudson, FL, 34667 - GULF OF AMERICA
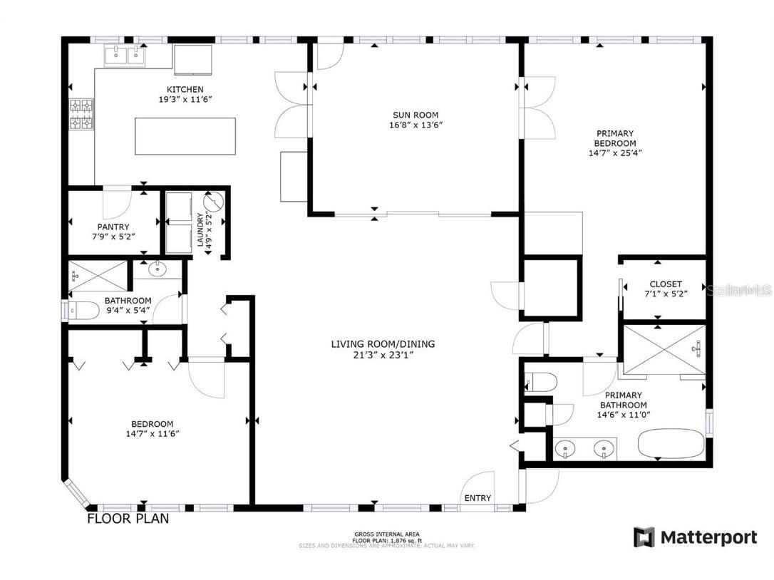
PRICE REDUCED – DIRECT GULF ACCESS & INCREDIBLE FLEXIBILITY! Welcome to waterfront living in the highly sought-after Sea Ranch on the Gulf community of Hudson. This expansive two-story, canal-front home offers over 4,100 sq ft under roof and a layout well-suited for large groups, guests, or short-term rental use, making it a compelling opportunity in a prime coastal location. The upper level includes 2,005 sq ft of heated living space and features 3 bedrooms and 2 full baths, including a spacious primary suite with dual walk-in closets and a spa-style bath. An open living and dining area captures water views and flows into a modern kitchen with stone countertops and solid wood cabinetry—ideal for entertaining and gathering. The lower level offers an additional approximately 2,000 sq ft, providing 3 bedrooms and 1 full bath, along with its own living area and flexible spaces that enhance the home’s ability to comfortably accommodate larger parties or extended stays. With living areas on both levels, the home offers a functional layout often sought after in vacation-style and short-term rental properties (buyer to verify intended use and local regulations). Outside, enjoy 70 feet of saltwater canal frontage, a concrete seawall, and a private dock with direct Gulf access in minutes—a major draw for boating, fishing, and waterfront recreation. Watch sunsets from the balcony, relax on covered porches, and embrace the coastal lifestyle. French doors, bay-window accents, tile and laminate flooring, updated lighting, and classic Florida architectural details add to the appeal. Situated on a quiet dead-end street, yet close to marinas, dining, and coastal attractions, this property is well-positioned as a primary residence, seasonal getaway, or income-producing short-term rental opportunity. No HOA provides added flexibility rarely found in waterfront communities.
Listing Information
Property Type: Residential, Single Family Residence
Status: Active
Bedrooms: 6
Bathrooms: 3
Lot Size: 0.16 Acres
Square Feet: 2,005 sq ft
Year Built: 1994
Garage: Yes
Stories: 2 Story
Construction: Block,Stucco,Vinyl Siding,Wood Frame
Subdivision: Sea Ranch On Gulf
Foundation: Slab
County: Pasco
School Information
Elementary: Northwest Elementary-Po
Middle: Hudson Middle-Po
High: Fivay High-Po
Room Information
Upper Floor
Living Room:
Bedroom 3:
Bedroom 2:
Primary Bedroom:
Kitchen:
Bathrooms
Full Baths: 3
Additonal Room Information
Laundry: Inside, Laundry Room
Interior Features
Appliances: Wine Refrigerator, Electric Water Heater, Microwave, Range, Refrigerator, Dishwasher
Flooring: Laminate,Tile
Additional Interior Features: Eat-In Kitchen, Ceiling Fan(s), Built-in Features, Split Bedrooms, Walk-In Closet(s), Wood Cabinets, Main Level Primary, Upper Level Primary, Open Floorplan, Stone Counters
Utilities
Water: Public
Sewer: Public Sewer
Other Utilities: Cable Available,Electricity Connected,High Speed Internet Available,Municipal Utilities,Phone Available,Sewer Connected,Water Connected
Cooling: Ceiling Fan(s), Central Air
Heating: Electric, Central
Exterior / Lot Features
Attached Garage: Attached Garage
Garage Spaces: 2
Roof: Shingle
Lot View: Ocean,Water
Additional Exterior/Lot Features: French Patio Doors, Rain Gutters, Lighting, Balcony, Balcony, Covered, Deck, Porch, Rear Porch, Front Porch, Landscaped, Cleared, Dead End
Waterfront Details
Standard Water Body: GULF OF AMERICA
Water Front Features: Canal Access, Gulf Access
Driving Directions
From US-19, head west onto Sea Ranch Dr, turn left onto Veronica Dr and then turn right onto Beverly Dr, turn left onto Stacey dr, the home will be on your right.
Financial Considerations
Terms: Cash,Conventional,FHA,VA Loan
Tax/Property ID: 16-24-32-0330-00000-4430
Tax Amount: 9449.52
Tax Year: 2024
A broker reciprocity listing courtesy: EXP REALTY LLC
Based on information provided by Stellar MLS as distributed by the MLS GRID. Information from the Internet Data Exchange is provided exclusively for consumers’ personal, non-commercial use, and such information may not be used for any purpose other than to identify prospective properties consumers may be interested in purchasing. This data is deemed reliable but is not guaranteed to be accurate by Edina Realty, Inc., or by the MLS. Edina Realty, Inc., is not a multiple listing service (MLS), nor does it offer MLS access.
Copyright 2026 Stellar MLS as distributed by the MLS GRID. All Rights Reserved.
Payment Calculator
Interest rate and annual percentage rate (APR) are based on current market conditions, are for informational purposes only, are subject to change without notice and may be subject to pricing add-ons related to property type, loan amount, loan-to-value, credit score and other variables. Estimated closing costs used in the APR calculation are assumed to be paid by the borrower at closing. If the closing costs are financed, the loan, APR and payment amounts will be higher. If the down payment is less than 20%, mortgage insurance may be required and could increase the monthly payment and APR. Contact us for details. Additional loan programs may be available. Accuracy is not guaranteed, and all products may not be available in all borrower's geographical areas and are based on their individual situation. This is not a credit decision or a commitment to lend.
Sales History & Tax Summary for 13521 Stacey Drive
Sales History
| Date | Price | |
|---|---|---|
| Currently not available. | ||
Tax Summary
| Tax Year | Estimated Market Value | Total Tax |
|---|---|---|
| Currently not available. | ||
Data powered by ATTOM Data Solutions. Copyright© 2026. Information deemed reliable but not guaranteed.
Schools
Schools nearby 13521 Stacey Drive
| Schools in attendance boundaries | Grades | Distance | Rating |
|---|---|---|---|
| Loading... | |||
| Schools nearby | Grades | Distance | Rating |
|---|---|---|---|
| Loading... | |||
Data powered by ATTOM Data Solutions. Copyright© 2026. Information deemed reliable but not guaranteed.
The schools shown represent both the assigned schools and schools by distance based on local school and district attendance boundaries. Attendance boundaries change based on various factors and proximity does not guarantee enrollment eligibility. Please consult your real estate agent and/or the school district to confirm the schools this property is zoned to attend. Information is deemed reliable but not guaranteed.
SchoolDigger ® Rating
The SchoolDigger rating system is a 1-5 scale with 5 as the highest rating. SchoolDigger ranks schools based on test scores supplied by each state's Department of Education. They calculate an average standard score by normalizing and averaging each school's test scores across all tests and grades.
Coming soon properties will soon be on the market, but are not yet available for showings.