$43,200/month
13564 Village Park Drive #O-345 Orlando, FL 32837
For Rent MLS# O6300940
764 sq ft Commercial
Details for 13564 Village Park Drive #O-345
MLS# O6300940
Description for 13564 Village Park Drive #O-345, Orlando, FL, 32837
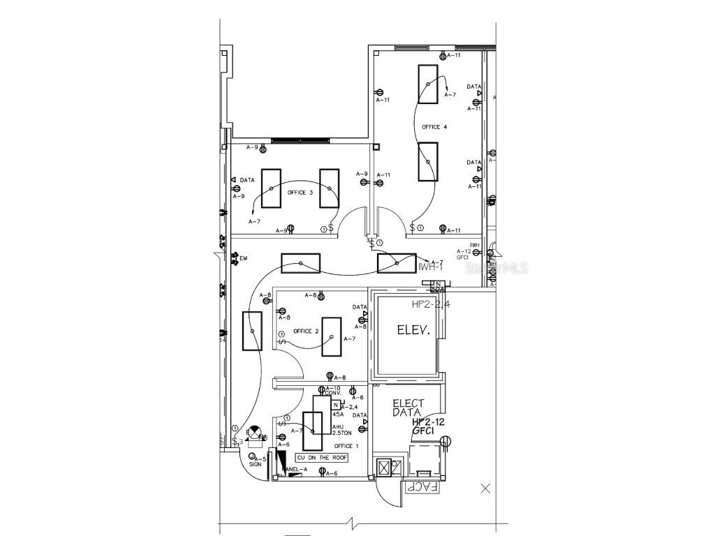
Prime opportunity to lease new office suite located at 13564 Village Park Dr. Unit 345, Orlando, FL 32847. This modern, never-before-occupied unit is ready for immediate move-in, featuring four private office spaces, a kitchenette, elegant laminate flooring, installed lighting fixtures, and well-defined divisions—all exactly as shown in the listing photos. No renovations or alterations are needed. Situated in a strategic commercial location, this property offers quick access to major highways and is surrounded by a growing business community. Ideal for professionals seeking a modern and functional workspace in a newly built building with high visibility and convenience.Parking is ample This impressive three-story building features 48 units designed with a blend of open floor plans and premium common areas Property type: Office Subtype: Professional Condo Offices, Law Firm Office, Accounting Firm Office, Insurance Service Company, Real Estate Company.
Listing Information
Property Type: Commercial, Office
Status: Active
Square Feet: 764 sq ft
Year Built: 2023
Stories: 1 Story
Construction: Block,Metal Frame,Stucco
Construction Display: New Construction
Foundation: Slab
County: Orange
Construction Status: New Construction
Utilities
Cooling: Partial
Driving Directions
From John Young Parkway, head west on Town Center Blvd. Turn left on Village Park Drive. Building 13564 will be on your left. Unit 345 is located on the third floor.
Financial Considerations
Tenant Pays: Electricity,Insurance,Sewer,Trash Collection,Water
Owner Pays: None
Tax/Property ID: 29-24-29-8840-15-345
Tax Year: 2024
A broker reciprocity listing courtesy: AGENT TRUST REALTY CORPORATION
Based on information provided by Stellar MLS as distributed by the MLS GRID. Information from the Internet Data Exchange is provided exclusively for consumers’ personal, non-commercial use, and such information may not be used for any purpose other than to identify prospective properties consumers may be interested in purchasing. This data is deemed reliable but is not guaranteed to be accurate by Edina Realty, Inc., or by the MLS. Edina Realty, Inc., is not a multiple listing service (MLS), nor does it offer MLS access.
Copyright 2025 Stellar MLS as distributed by the MLS GRID. All Rights Reserved.
Sales History & Tax Summary for 13564 Village Park Drive #O-345
Sales History
| Date | Price | Change |
|---|---|---|
| Currently not available. | ||
Tax Summary
| Tax Year | Estimated Market Value | Total Tax |
|---|---|---|
| Currently not available. | ||
Data powered by ATTOM Data Solutions. Copyright© 2025. Information deemed reliable but not guaranteed.
Schools
Schools nearby 13564 Village Park Drive #O-345
| Schools in attendance boundaries | Grades | Distance | Rating |
|---|---|---|---|
| Loading... | |||
| Schools nearby | Grades | Distance | Rating |
|---|---|---|---|
| Loading... | |||
Data powered by ATTOM Data Solutions. Copyright© 2025. Information deemed reliable but not guaranteed.
The schools shown represent both the assigned schools and schools by distance based on local school and district attendance boundaries. Attendance boundaries change based on various factors and proximity does not guarantee enrollment eligibility. Please consult your real estate agent and/or the school district to confirm the schools this property is zoned to attend. Information is deemed reliable but not guaranteed.
SchoolDigger ® Rating
The SchoolDigger rating system is a 1-5 scale with 5 as the highest rating. SchoolDigger ranks schools based on test scores supplied by each state's Department of Education. They calculate an average standard score by normalizing and averaging each school's test scores across all tests and grades.
Coming soon properties will soon be on the market, but are not yet available for showings.