$2,550/month
14242 Desert Haven Street #GE Windermere, FL 34786
For Rent MLS# O6347604
3 beds 3 baths 1,534 sq ft Condo
Details for 14242 Desert Haven Street #GE
MLS# O6347604
Description for 14242 Desert Haven Street #GE, Windermere, FL, 34786
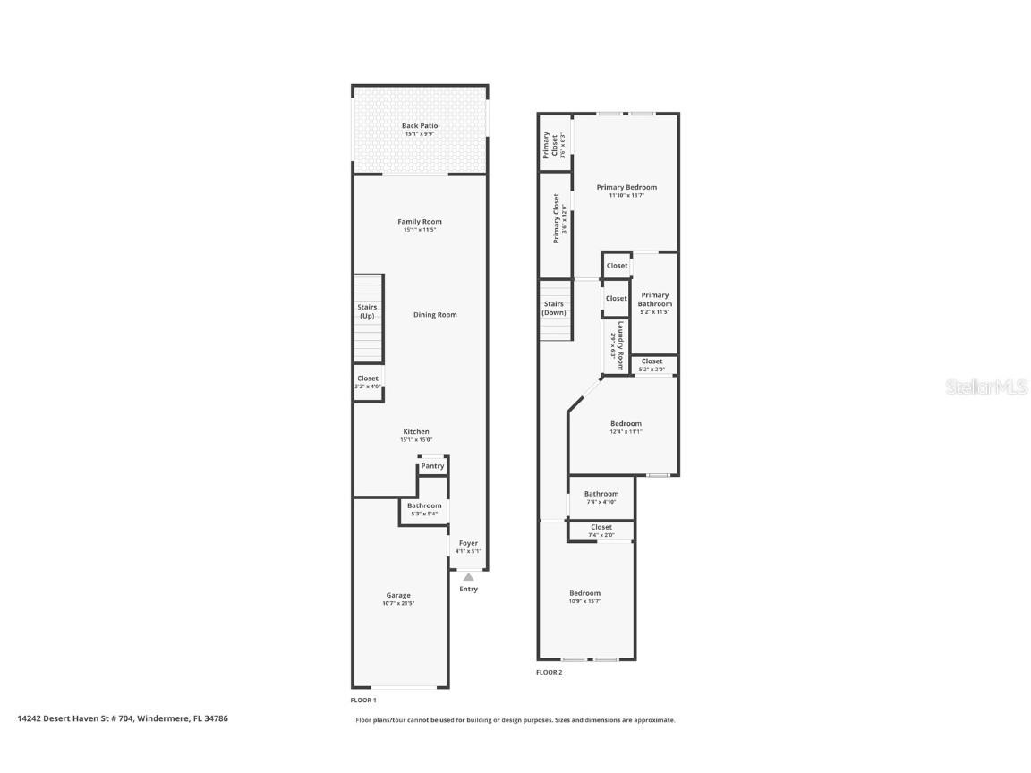
Located in the gated community of Oasis Cove, this 3-bedroom, 2.5-bathroom condo offers a comfortable, low-maintenance lifestyle just minutes from Disney—with clear views of the nightly fireworks from your own home. The interior features a functional two-story layout with all bedrooms located upstairs, providing separation between living and private spaces. The main floor includes an open-concept living and dining area, a well-equipped kitchen with ample cabinetry, and a bathroom for guests. Upstairs, you’ll find three generously sized bedrooms, including a spacious primary suite with a private en-suite bath. Residents of Oasis Cove enjoy access to community amenities such as a resort-style pool, clubhouse, fitness center, walking trails, and playgrounds. Lawn care, exterior maintenance, pest control, gated security, cable, internet, and water are also included—making it an ideal option for full-time living or a second home. With its unbeatable location, recent upgrades, and nightly Disney views, this property offers strong value in one of Central Florida’s most desirable areas.
Listing Information
Property Type: Rental, Condominium
Status: Active
Bedrooms: 3
Bathrooms: 3
Lot Size: 0.02 Acres
Square Feet: 1,534 sq ft
Year Built: 2012
Garage: Yes
Stories: 2 Story
Date Available: 9/27/2025
Subdivision: Oasis Cove Ii/Lakeside Village Ph
County: Orange
Room Information
Main Floor
Living Room:
Dining Room:
Kitchen:
Upper Floor
Bedroom 3:
Bedroom 2:
Primary Bathroom:
Primary Bedroom:
Bathrooms
Full Baths: 2
1/2 Baths: 1
Additonal Room Information
Laundry: Laundry Closet, Common Area, Upper Level
Interior Features
Appliances: Washer, Dishwasher, Dryer, Range, Refrigerator
Flooring: Carpet,Wood
Additional Interior Features: Ceiling Fan(s), Open Floorplan, Solid Surface Counters
Utilities
Water: Public
Sewer: Public Sewer
Other Utilities: Cable Connected,Electricity Connected,Sewer Connected,Water Connected
Cooling: Ceiling Fan(s), Central Air
Heating: Electric, Heat Pump
Exterior / Lot Features
Attached Garage: Attached Garage
Garage Spaces: 1
Pool: Community
Community Features
Community Features: Sidewalks, Pool, Clubhouse, Fitness
Driving Directions
From 429 south, take exit 15 onto new independence parkway. turn left onto new independence parkway then right onto Hamlin groves trail. Hamlin groves trail will turn into porter road, then Summerlake Parkway. continue on sumerlake pkwy, then turn right onto Reams road. turn left into community. In community, take second exit from roundabout onto oasis cove blvd, left on tranquility way, then a final left onto desert haven st. home is on left 14242 desert haven st
Financial Considerations
Owner Pays: Cable TV,Internet,Trash Collection,Water
Tax/Property ID: 34-23-27-5842-03-704
A broker reciprocity listing courtesy: REAL BROKER, LLC
Based on information provided by Stellar MLS as distributed by the MLS GRID. Information from the Internet Data Exchange is provided exclusively for consumers’ personal, non-commercial use, and such information may not be used for any purpose other than to identify prospective properties consumers may be interested in purchasing. This data is deemed reliable but is not guaranteed to be accurate by Edina Realty, Inc., or by the MLS. Edina Realty, Inc., is not a multiple listing service (MLS), nor does it offer MLS access.
Copyright 2026 Stellar MLS as distributed by the MLS GRID. All Rights Reserved.
Sales History & Tax Summary for 14242 Desert Haven Street #GE
Sales History
| Date | Price | |
|---|---|---|
| Currently not available. | ||
Tax Summary
| Tax Year | Estimated Market Value | Total Tax |
|---|---|---|
| Currently not available. | ||
Data powered by ATTOM Data Solutions. Copyright© 2026. Information deemed reliable but not guaranteed.
Schools
Schools nearby 14242 Desert Haven Street #GE
| Schools in attendance boundaries | Grades | Distance | Rating |
|---|---|---|---|
| Loading... | |||
| Schools nearby | Grades | Distance | Rating |
|---|---|---|---|
| Loading... | |||
Data powered by ATTOM Data Solutions. Copyright© 2026. Information deemed reliable but not guaranteed.
The schools shown represent both the assigned schools and schools by distance based on local school and district attendance boundaries. Attendance boundaries change based on various factors and proximity does not guarantee enrollment eligibility. Please consult your real estate agent and/or the school district to confirm the schools this property is zoned to attend. Information is deemed reliable but not guaranteed.
SchoolDigger ® Rating
The SchoolDigger rating system is a 1-5 scale with 5 as the highest rating. SchoolDigger ranks schools based on test scores supplied by each state's Department of Education. They calculate an average standard score by normalizing and averaging each school's test scores across all tests and grades.
Coming soon properties will soon be on the market, but are not yet available for showings.