$2,350/month
14316 Easy Goer Street Sun City Center, FL 33573
For Rent MLS# TB8456876
3 beds 3 baths 1,701 sq ft Townhouse/Twinhome
Details for 14316 Easy Goer Street
MLS# TB8456876
Description for 14316 Easy Goer Street, Sun City Center, FL, 33573
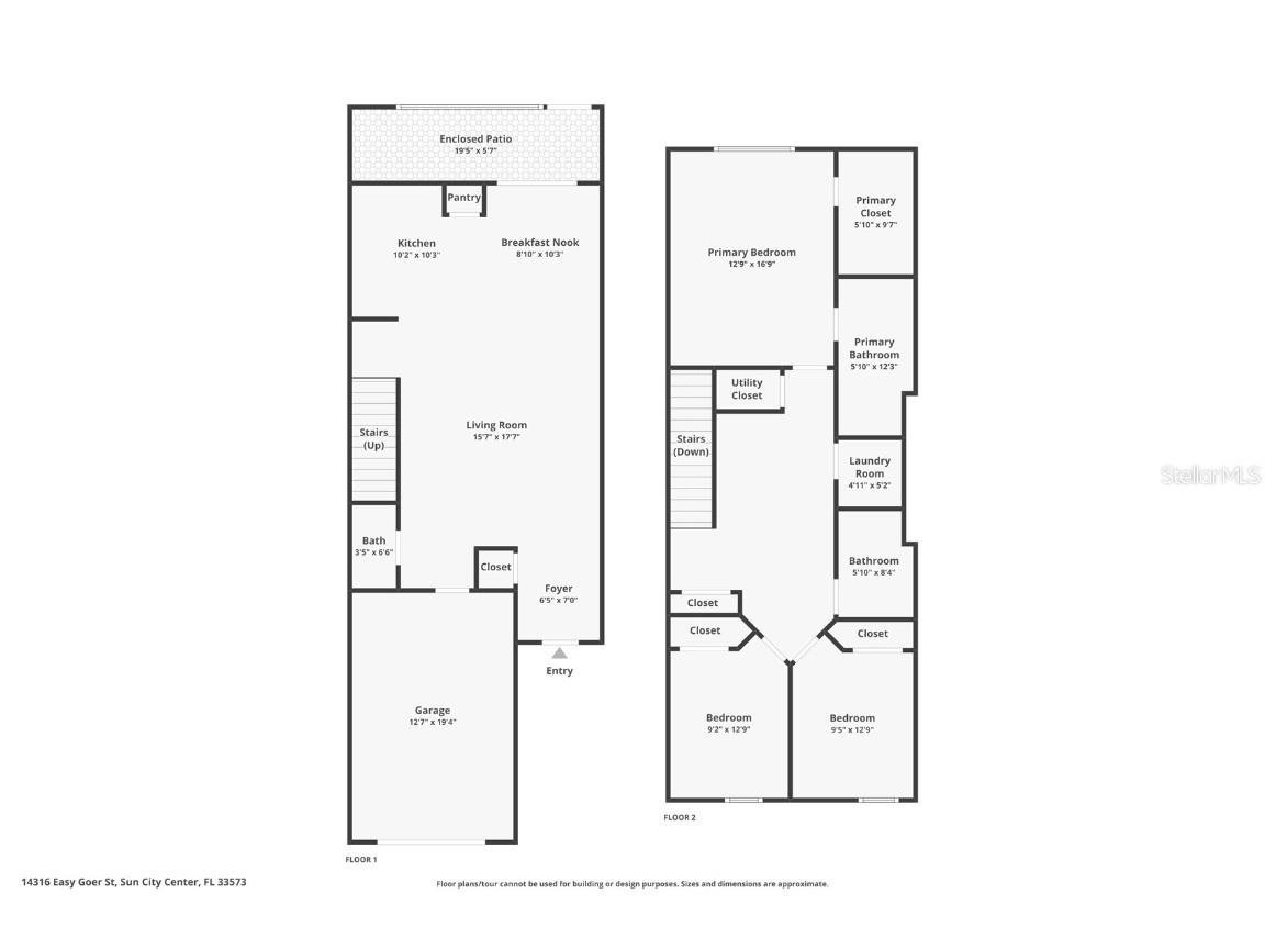
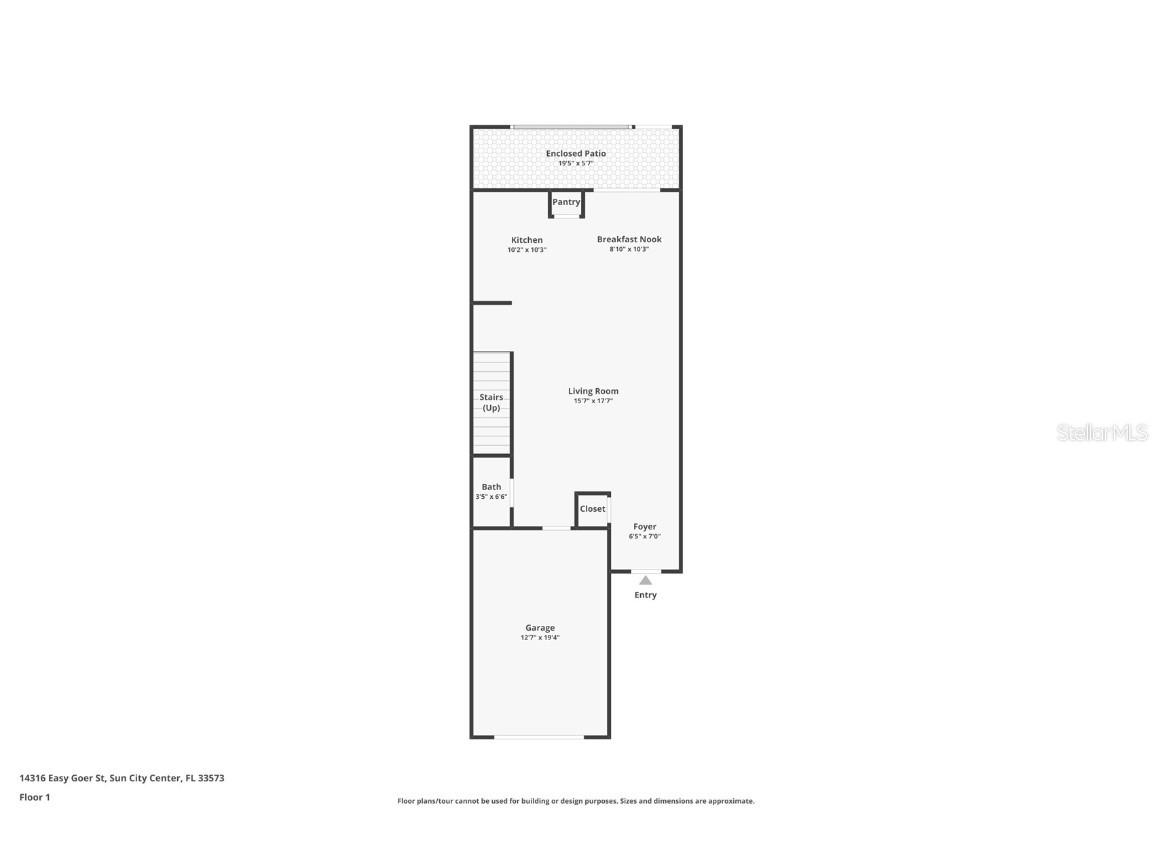
Modern 3-Bedroom Home with Garage in Gated Belmont II – Resort-Style Amenities & Prime Location Built in 2022, this beautiful 3-bedroom, 2.5-bath home with a 1-car garage is located in the highly desirable gated Belmont II community. The open layout features stylish vinyl flooring throughout the first floor, second floor, and master suite, with carpet in only two bedrooms for added comfort. Relax on the screened-in lanai, perfect for unwinding or entertaining. For everyday convenience, Publix is right next door, along with plenty of nearby restaurants and shopping. As part of Belmont II, you’ll also enjoy access to wonderful community amenities including a resort-style swimming pool, clubhouse, fitness center, playgrounds, tennis courts, and walking trails — offering a lifestyle that blends comfort, convenience, and recreation. If you decide to apply for one of our properties: Screening includes credit/background check, income verification of 2.5 to 3 times the monthly rent and rental history verification. We encourage applicants with credit scores above 600 to apply, as meeting this criteria will help streamline the application process. APPLICANT CHARGES: Application Fees: $75 for each adult, 18 years of age and older (non-refundable). $25 for each pet application fee for pet verification (non-refundable). Current vaccination records will be required. ESA and service animals are FREE with verified documentation. Lease Initiation Admin Fee: $150.00 after approval and upon signing. Security Deposit: Equal to one month’s rent. Pet Fee if applicable (non-refundable) $350 for each approved pet. All Rent Solutions residents are enrolled in the Resident Benefits Package (RBP) for $49.95/month which includes liability insurance, credit building to help boost the resident’s credit score with timely rent payments, HVAC air filter delivery (for applicable properties), our best-in-class resident rewards program, and much more! More details upon application.
Listing Information
Property Type: Rental, Townhouse
Status: Active
Bedrooms: 3
Bathrooms: 3
Lot Size: 0.05 Acres
Square Feet: 1,701 sq ft
Year Built: 2022
Garage: Yes
Stories: 2 Story
Date Available: 12/15/2025
Subdivision: Belmont Twnhms Prcl F
County: Hillsborough
School Information
Elementary: Belmont Elementary School
Middle: Eisenhower-Hb
High: Sumner High School
Room Information
Bathrooms
Full Baths: 2
1/2 Baths: 1
Additonal Room Information
Laundry: Laundry Room, Inside
Interior Features
Appliances: Ice Maker, Range, Refrigerator, Washer, Dishwasher, Disposal, Dryer, Microwave
Additional Interior Features: Ceiling Fan(s), Other, Eat-In Kitchen, Walk-In Closet(s)
Utilities
Cooling: Central Air, Ceiling Fan(s)
Heating: Electric, Central
Exterior / Lot Features
Attached Garage: Attached Garage
Garage Spaces: 1
Pool: Community, Association
Fencing: fenced
Additional Exterior/Lot Features: Screened, Patio
Community Features
Community Features: Pool, Tennis Court(s), Playground, Clubhouse, Gated, Fitness
Security Features: Gated Community, Gated with Guard
Association Amenities: Gated, Fitness Center, Basketball Court, Clubhouse, Pool, Playground, Tennis Court(s)
Security Deposit: 2350
Driving Directions
Follow I-75 North to Big Bend Road in Riverview. Take exit 246. Merge onto I-75 North and continue for approximately 36.5 miles. Take exit 246 for County Road 672 toward Apollo Beach. Use the right lane to take the ramp to US 301. Continue on Big Bend Road, then turn right onto Simmons Loop. Continue straight onto Gate Dancer Road. Turn left onto Paseo Al Mar Boulevard, then turn right onto Gallant Man Street. Turn left onto Sword Dancer Court, then left onto Editors Note Street. Turn right onto Easy Goer Street. The destination will be on the left. 14316 Easy Goer Street, Sun City Center, FL 33573
Financial Considerations
Owner Pays: Grounds Care,Sewer,Trash Collection,Water
Tax/Property ID: U-19-31-20-C62-000005-00002.0
A broker reciprocity listing courtesy: RENT SOLUTIONS
Based on information provided by Stellar MLS as distributed by the MLS GRID. Information from the Internet Data Exchange is provided exclusively for consumers’ personal, non-commercial use, and such information may not be used for any purpose other than to identify prospective properties consumers may be interested in purchasing. This data is deemed reliable but is not guaranteed to be accurate by Edina Realty, Inc., or by the MLS. Edina Realty, Inc., is not a multiple listing service (MLS), nor does it offer MLS access.
Copyright 2025 Stellar MLS as distributed by the MLS GRID. All Rights Reserved.
Sales History & Tax Summary for 14316 Easy Goer Street
Sales History
| Date | Price | Change |
|---|---|---|
| Currently not available. | ||
Tax Summary
| Tax Year | Estimated Market Value | Total Tax |
|---|---|---|
| Currently not available. | ||
Data powered by ATTOM Data Solutions. Copyright© 2025. Information deemed reliable but not guaranteed.
Schools
Schools nearby 14316 Easy Goer Street
| Schools in attendance boundaries | Grades | Distance | Rating |
|---|---|---|---|
| Loading... | |||
| Schools nearby | Grades | Distance | Rating |
|---|---|---|---|
| Loading... | |||
Data powered by ATTOM Data Solutions. Copyright© 2025. Information deemed reliable but not guaranteed.
The schools shown represent both the assigned schools and schools by distance based on local school and district attendance boundaries. Attendance boundaries change based on various factors and proximity does not guarantee enrollment eligibility. Please consult your real estate agent and/or the school district to confirm the schools this property is zoned to attend. Information is deemed reliable but not guaranteed.
SchoolDigger ® Rating
The SchoolDigger rating system is a 1-5 scale with 5 as the highest rating. SchoolDigger ranks schools based on test scores supplied by each state's Department of Education. They calculate an average standard score by normalizing and averaging each school's test scores across all tests and grades.
Coming soon properties will soon be on the market, but are not yet available for showings.