$2,000/month
1482 Sea Glass Road Haines City, FL 33844
For Rent MLS# O6359528
4 beds 2 baths 1,607 sq ft Single Family
Details for 1482 Sea Glass Road
MLS# O6359528
Description for 1482 Sea Glass Road, Haines City, FL, 33844
This well kept home offers upgraded vinyl flooring throughout the entire property with no carpet, providing a modern look and easy maintenance. The layout features an open living and kitchen area that creates a comfortable flow for everyday use. The bedrooms are well sized with ample closet space, and the primary suite includes a walk-in closet and private bath. The backyard is fully fenced, offering privacy and space for outdoor use. The community is continuing to expand, with a new pool nearing completion and a dedicated dog park available for residents. Conveniently located minutes from Publix grocery store, schools, and major roadways, this home provides easy access to surrounding areas and daily essentials. Clean and move-in ready.
Listing Information
Property Type: Rental, Single Family Residence
Status: Active
Bedrooms: 4
Bathrooms: 2
Lot Size: 0.10 Acres
Square Feet: 1,607 sq ft
Year Built: 2024
Garage: Yes
Stories: 1 Story
Date Available: 11/17/2025
Construction Display: New Construction
Subdivision: Lawson Dunes Sub
County: Polk
Construction Status: New Construction
School Information
Elementary: Sandhill Elem
Middle: Boone Middle
High: Haines City Senior High
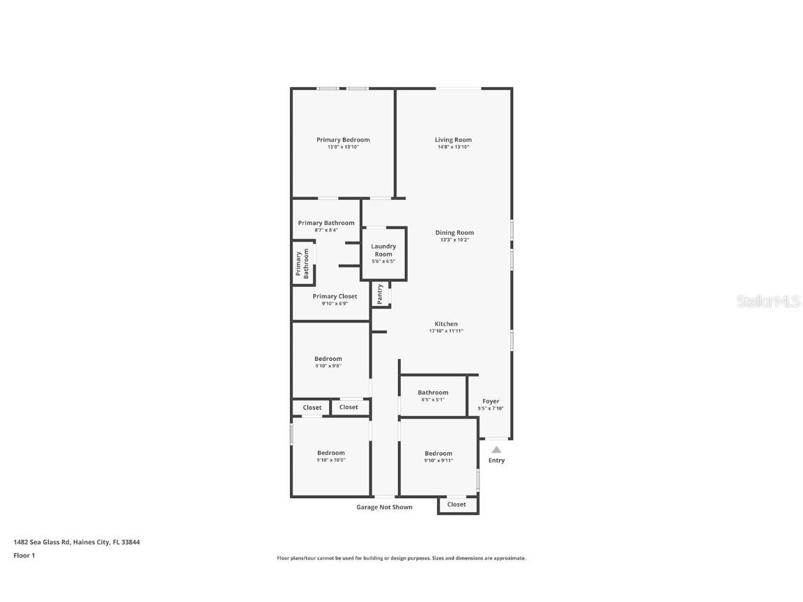
Room Information
Main Floor
Dining Room:
Kitchen:
Bathroom 3:
Bathroom 2:
Bedroom 1:
Primary Bedroom:
Primary Bathroom:
Bathroom 1:
Kitchen:
Bathrooms
Full Baths: 2
Additonal Room Information
Laundry: Laundry Closet, Laundry Room
Interior Features
Appliances: Cooktop, Dishwasher, Dryer, Microwave, Washer, Built-In Oven
Additional Interior Features: Kitchen/Family Room Combo, High Ceilings, Living/Dining Room, Open Floorplan
Utilities
Cooling: Humidity Control, Central Air
Heating: Central
Exterior / Lot Features
Attached Garage: Attached Garage
Garage Spaces: 2
Community Features
Security Deposit: 4500
Driving Directions
Head east on E Johnson Ave, then turn right onto wharf Blvd. Turn left onto Sand Sea Pl, then right onto Mermaid Way. Turn right onto Seaglass Rd; the home will be on the left.
Financial Considerations
Owner Pays: Internet
Tax/Property ID: 27-27-26-758514-017030
A broker reciprocity listing courtesy: LUXE PROPERTIES
Based on information provided by Stellar MLS as distributed by the MLS GRID. Information from the Internet Data Exchange is provided exclusively for consumers’ personal, non-commercial use, and such information may not be used for any purpose other than to identify prospective properties consumers may be interested in purchasing. This data is deemed reliable but is not guaranteed to be accurate by Edina Realty, Inc., or by the MLS. Edina Realty, Inc., is not a multiple listing service (MLS), nor does it offer MLS access.
Copyright 2026 Stellar MLS as distributed by the MLS GRID. All Rights Reserved.
Sales History & Tax Summary for 1482 Sea Glass Road
Sales History
| Date | Price | Change |
|---|---|---|
| Currently not available. | ||
Tax Summary
| Tax Year | Estimated Market Value | Total Tax |
|---|---|---|
| Currently not available. | ||
Data powered by ATTOM Data Solutions. Copyright© 2026. Information deemed reliable but not guaranteed.
Schools
Schools nearby 1482 Sea Glass Road
| Schools in attendance boundaries | Grades | Distance | Rating |
|---|---|---|---|
| Loading... | |||
| Schools nearby | Grades | Distance | Rating |
|---|---|---|---|
| Loading... | |||
Data powered by ATTOM Data Solutions. Copyright© 2026. Information deemed reliable but not guaranteed.
The schools shown represent both the assigned schools and schools by distance based on local school and district attendance boundaries. Attendance boundaries change based on various factors and proximity does not guarantee enrollment eligibility. Please consult your real estate agent and/or the school district to confirm the schools this property is zoned to attend. Information is deemed reliable but not guaranteed.
SchoolDigger ® Rating
The SchoolDigger rating system is a 1-5 scale with 5 as the highest rating. SchoolDigger ranks schools based on test scores supplied by each state's Department of Education. They calculate an average standard score by normalizing and averaging each school's test scores across all tests and grades.
Coming soon properties will soon be on the market, but are not yet available for showings.