15204 Windmill Harbor Court Orlando, FL 32828
For Sale MLS# O6372179
3 beds 3 baths 1,720 sq ft Townhouse/Twinhome
Details for 15204 Windmill Harbor Court
MLS# O6372179
Description for 15204 Windmill Harbor Court, Orlando, FL, 32828
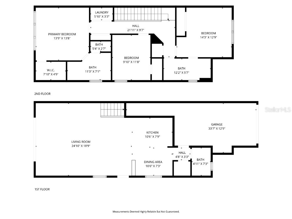
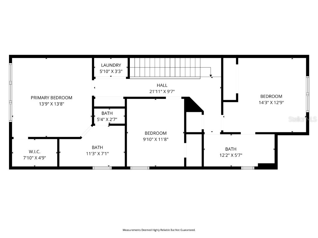
Elegantly appointed end-unit townhome located within the exclusive, guard-gated community of Spring Isle. This beautifully designed residence features a spacious open-concept floor plan with 3 bedrooms and 2.5 bathrooms, enhanced by no rear neighbors for exceptional privacy. The light-filled living and dining areas offer a seamless flow, ideal for both refined entertaining and everyday living. Upstairs, the owner’s retreat provides a serene escape, complete with a generous walk-in closet and a spa-inspired bath featuring a deep soaking tub and dual-sink vanity. Two additional bedrooms, a full bath, and a convenient upstairs laundry area complete the second level. Residents enjoy resort-style amenities, including a luxury swimming pool, clubhouse, playground, tennis and basketball courts, and an active community lifestyle. The home is zoned for A-rated schools, and recent community updates include a new roof and exterior paint (2021). Ideally situated near Waterford Lakes Town Center and Downtown Avalon, with easy access to UCF and major highways (408, 417, 528). HOA-included lawn maintenance offers a refined, low-maintenance lifestyle in one of East Orlando’s most desirable gated communities.
Listing Information
Property Type: Residential, Townhouse
Status: Active
Bedrooms: 3
Bathrooms: 3
Lot Size: 0.09 Acres
Square Feet: 1,720 sq ft
Year Built: 2006
Garage: Yes
Stories: 2 Story
Construction: Stucco
Subdivision: Spring Isle
Foundation: Slab
County: Orange
School Information
Elementary: Timber Lakes Elementary
Middle: Timber Springs Middle
High: Timber Creek High
Room Information
Main Floor
Living Room: 10x8
Kitchen: 6x10
Family Room: 12x12
Upper Floor
Bedroom 3:
Bedroom 2:
Primary Bedroom: 10x12
Bathrooms
Full Baths: 2
1/2 Baths: 1
Additonal Room Information
Laundry: Inside, Laundry Closet, Upper Level
Interior Features
Appliances: Electric Water Heater, Dishwasher, Disposal, Dryer, Microwave, Range, Refrigerator, Washer
Flooring: Carpet,Ceramic Tile,Laminate
Additional Interior Features: Ceiling Fan(s), Upper Level Primary
Utilities
Water: Public
Sewer: Public Sewer
Other Utilities: Cable Available,Electricity Available,Sewer Available,Water Available
Cooling: Ceiling Fan(s), Central Air
Heating: Central, Electric
Exterior / Lot Features
Attached Garage: Attached Garage
Garage Spaces: 1
Roof: Shingle
Pool: Community
Lot View: Trees/Woods
Additional Exterior/Lot Features: Sprinkler/Irrigation, Rain Gutters
Community Features
Community Features: Pool, Tennis Court(s), Playground, Park
HOA Dues Include: Security, Maintenance Grounds, Maintenance Structure, Pool(s)
Homeowners Association: Yes
HOA Dues: $257 / Monthly
Driving Directions
Heading south on Avalon Park Blvd, turn right onto Golden Isle Blvd (Spring Isle), then right onto Enclair St, left onto Belinkoff Ln, left onto Rock Harbor Ave, and left onto Windmill Harbor Ct to 15204 Windmill Harbor Ct.
Financial Considerations
Tax/Property ID: 30-22-32-7897-03-400
Tax Amount: 5354.5
Tax Year: 2025
A broker reciprocity listing courtesy: ANTS REALTY LLC
Based on information provided by Stellar MLS as distributed by the MLS GRID. Information from the Internet Data Exchange is provided exclusively for consumers’ personal, non-commercial use, and such information may not be used for any purpose other than to identify prospective properties consumers may be interested in purchasing. This data is deemed reliable but is not guaranteed to be accurate by Edina Realty, Inc., or by the MLS. Edina Realty, Inc., is not a multiple listing service (MLS), nor does it offer MLS access.
Copyright 2026 Stellar MLS as distributed by the MLS GRID. All Rights Reserved.
Payment Calculator
Interest rate and annual percentage rate (APR) are based on current market conditions, are for informational purposes only, are subject to change without notice and may be subject to pricing add-ons related to property type, loan amount, loan-to-value, credit score and other variables. Estimated closing costs used in the APR calculation are assumed to be paid by the borrower at closing. If the closing costs are financed, the loan, APR and payment amounts will be higher. If the down payment is less than 20%, mortgage insurance may be required and could increase the monthly payment and APR. Contact us for details. Additional loan programs may be available. Accuracy is not guaranteed, and all products may not be available in all borrower's geographical areas and are based on their individual situation. This is not a credit decision or a commitment to lend.
Sales History & Tax Summary for 15204 Windmill Harbor Court
Sales History
| Date | Price | |
|---|---|---|
| Currently not available. | ||
Tax Summary
| Tax Year | Estimated Market Value | Total Tax |
|---|---|---|
| Currently not available. | ||
Data powered by ATTOM Data Solutions. Copyright© 2026. Information deemed reliable but not guaranteed.
Schools
Schools nearby 15204 Windmill Harbor Court
| Schools in attendance boundaries | Grades | Distance | Rating |
|---|---|---|---|
| Loading... | |||
| Schools nearby | Grades | Distance | Rating |
|---|---|---|---|
| Loading... | |||
Data powered by ATTOM Data Solutions. Copyright© 2026. Information deemed reliable but not guaranteed.
The schools shown represent both the assigned schools and schools by distance based on local school and district attendance boundaries. Attendance boundaries change based on various factors and proximity does not guarantee enrollment eligibility. Please consult your real estate agent and/or the school district to confirm the schools this property is zoned to attend. Information is deemed reliable but not guaranteed.
SchoolDigger ® Rating
The SchoolDigger rating system is a 1-5 scale with 5 as the highest rating. SchoolDigger ranks schools based on test scores supplied by each state's Department of Education. They calculate an average standard score by normalizing and averaging each school's test scores across all tests and grades.
Coming soon properties will soon be on the market, but are not yet available for showings.