16115 Culpepper Drive Bradenton, FL 34211
Pending MLS# A4625359
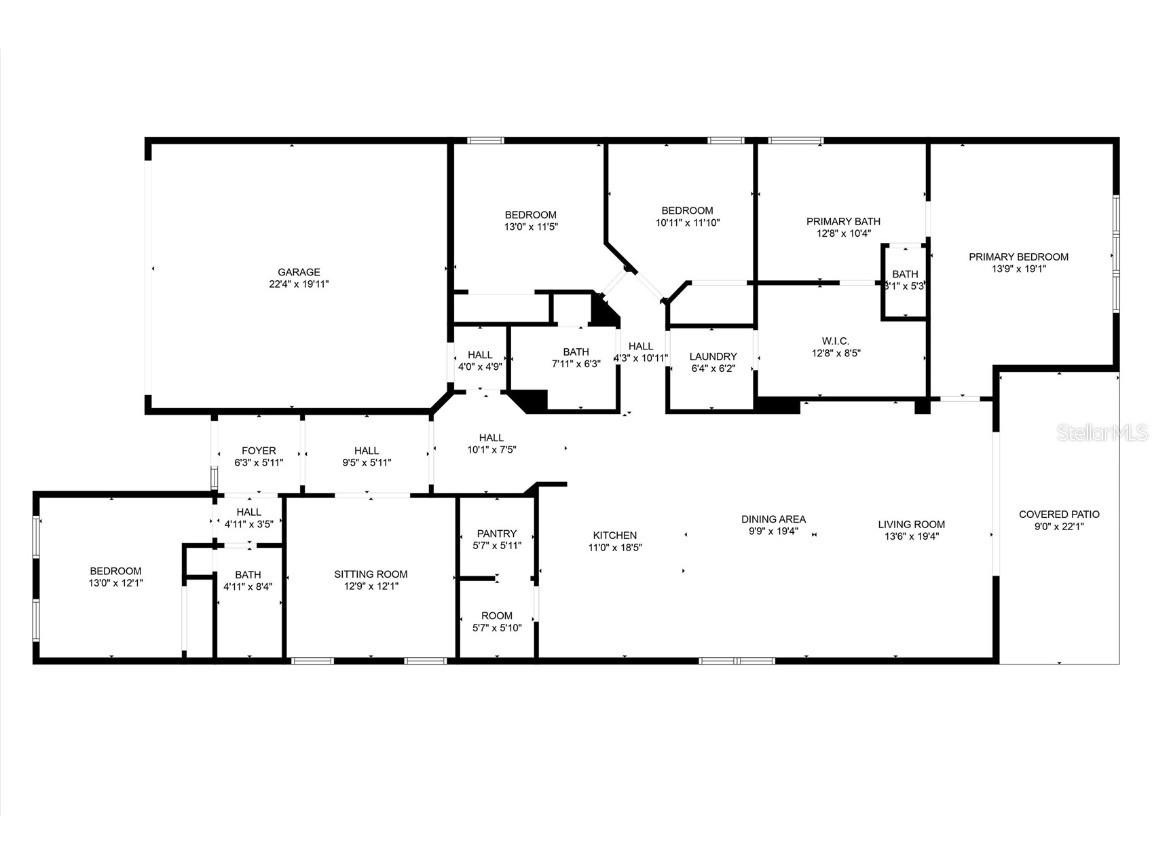
4 beds 3 baths 2,419 sq ft Single Family
Details for 16115 Culpepper Drive
MLS# A4625359
Description for 16115 Culpepper Drive, Bradenton, FL, 34211
Available beginning April 1, 2026, this single-family residence is located in Park East at Azario within Lakewood Ranch, one of Sarasota–Manatee County’s most sought-after master-planned communities. The home offers 4 bedrooms, 3 baths, and approximately 2,419 square feet of living space with a modern open layout designed for both everyday living and entertaining. The interior features a spacious living area, a contemporary kitchen with ample cabinetry and prep space, and flexible rooms suitable for a variety of living configurations. Outdoors, the private pool and outdoor kitchen create a comfortable setting for Florida’s year-round indoor-outdoor lifestyle. Park East at Azario provides access to a wide range of community amenities, including a resort-style pool, sand volleyball court, playground, dog park, and basketball courts, and open sports fields. The community is adjacent to the golf course at Esplanade at Azario and is conveniently located near shopping, dining, medical facilities, and major roadways. Nearby destinations include Lakewood Ranch Main Street, Waterside Place, University Town Center, and downtown Sarasota, with Gulf Coast beaches such as Anna Maria Island, Lido Key, and Siesta Key within driving distance. This Lakewood Ranch rental presents an opportunity to enjoy a modern home with private outdoor amenities in a centrally located Florida Gulf Coast community.
Listing Information
Property Type: Rental, Single Family Residence
Status: Pending
Bedrooms: 4
Bathrooms: 3
Lot Size: 0.19 Acres
Square Feet: 2,419 sq ft
Year Built: 2021
Garage: Yes
Stories: 1 Story
Date Available: 4/18/2025
Construction Display: New Construction
Subdivision: Park East At Azario Ph I Subph A & B
County: Manatee
Construction Status: New Construction
School Information
Elementary: Gullett Elementary
Middle: Dr Mona Jain Middle
High: Lakewood Ranch High
Room Information
Main Floor
Kitchen:
Bathroom 2:
Primary Bedroom:
Bathrooms
Full Baths: 3
Additonal Room Information
Laundry: Laundry Room
Interior Features
Appliances: Range Hood, Cooktop, Dishwasher, Disposal, Dryer, Microwave, Refrigerator, Washer
Doors/Windows: Window Treatments
Additional Interior Features: Ceiling Fan(s), Walk-In Closet(s), Window Treatments, Living/Dining Room
Utilities
Cooling: Central Air, Ceiling Fan(s)
Heating: Electric, Gas, Central
Exterior / Lot Features
Attached Garage: Attached Garage
Garage Spaces: 2
Pool: In Ground, Association, Community
Community Features
Community Features: Pool, Playground, Dog Park
Association Amenities: Basketball Court, Playground, Pool, Recreation Facilities
Driving Directions
Head west 0.1 mi Turn left onto Cypress Creek Blvd ? 0.1 mi Use the left 2 lanes to turn left at the 1st cross street onto FL-64 E ? Pass by IHOP (on the right in 0.2 mi) ? 4.5 mi At the traffic circle, take the 2nd exit and stay on FL-64 E ? 0.5 mi At the traffic circle, take the 2nd exit and stay on FL-64 E ? 2.4 mi Turn right onto Uihlein Rd ? 1.0 mi Turn right onto Culpepper Dr ? Destination will be on the right
Financial Considerations
Tenant Pays: Gas,Janitorial Service
Owner Pays: Grounds Care,Laundry,Pest Control,Pool Maintenance,Repairs,Taxes,Trash Collection
Tax/Property ID: 576045409
A broker reciprocity listing courtesy: MICHAEL SAUNDERS & COMPANY
Based on information provided by Stellar MLS as distributed by the MLS GRID. Information from the Internet Data Exchange is provided exclusively for consumers’ personal, non-commercial use, and such information may not be used for any purpose other than to identify prospective properties consumers may be interested in purchasing. This data is deemed reliable but is not guaranteed to be accurate by Edina Realty, Inc., or by the MLS. Edina Realty, Inc., is not a multiple listing service (MLS), nor does it offer MLS access.
Copyright 2026 Stellar MLS as distributed by the MLS GRID. All Rights Reserved.
Sales History & Tax Summary for 16115 Culpepper Drive
Sales History
| Date | Price | |
|---|---|---|
| Currently not available. | ||
Tax Summary
| Tax Year | Estimated Market Value | Total Tax |
|---|---|---|
| Currently not available. | ||
Data powered by ATTOM Data Solutions. Copyright© 2026. Information deemed reliable but not guaranteed.
Schools
Schools nearby 16115 Culpepper Drive
| Schools in attendance boundaries | Grades | Distance | Rating |
|---|---|---|---|
| Loading... | |||
| Schools nearby | Grades | Distance | Rating |
|---|---|---|---|
| Loading... | |||
Data powered by ATTOM Data Solutions. Copyright© 2026. Information deemed reliable but not guaranteed.
The schools shown represent both the assigned schools and schools by distance based on local school and district attendance boundaries. Attendance boundaries change based on various factors and proximity does not guarantee enrollment eligibility. Please consult your real estate agent and/or the school district to confirm the schools this property is zoned to attend. Information is deemed reliable but not guaranteed.
SchoolDigger ® Rating
The SchoolDigger rating system is a 1-5 scale with 5 as the highest rating. SchoolDigger ranks schools based on test scores supplied by each state's Department of Education. They calculate an average standard score by normalizing and averaging each school's test scores across all tests and grades.
Coming soon properties will soon be on the market, but are not yet available for showings.