$8,000/month
1726 Floyd Street Sarasota, FL 34239
For Rent MLS# A4664721
3 beds 2 baths 1,461 sq ft Single Family
Details for 1726 Floyd Street
MLS# A4664721
Description for 1726 Floyd Street, Sarasota, FL, 34239
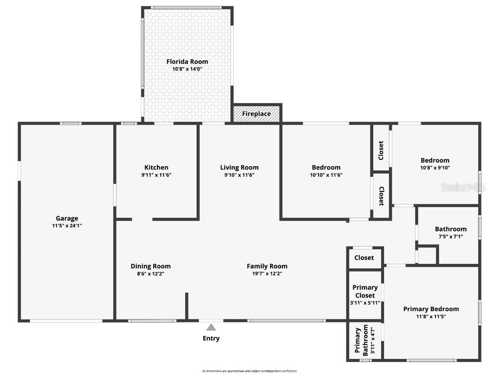
SEASONAL RENTAL - Available June 1, 2026 -3/BR; 1.5/baths Renovated, beautifully designer-decorated modern home located in one of Sarasota's most coveted West of Trail locations - adjacent to stunning Harbor Acres! THE SPACE: This stylish, fully furnished home features three bedrooms (King, Queen, Queen), 1.5 baths, a one-car garage, a spacious, light-filled sunroom and a cozy reading nook. The home has all-new furnishings and is fully turnkey equipped to ensure a comfortable and enjoyable stay. Guests will also enjoy indoor-outdoor living with a charming front porch, al fresco dining on the beautiful back deck, and a large, well-maintained yard ideal for outdoor relaxation and entertaining. PRIME LOCATION: Located in the heart of Hudson Bayou, where you can enjoy the best of Sarasota at your doorstep! Walk to Sarasota Memorial Hospital, Marie Selby Botanical Gardens and the lively Southside Village, home to some of the city's top restaurants, bars, cafés, and shops. You're also just minutes away from Downtown Sarasota, world-famous Siesta Key Beach, Lido Key Beach, St. Armands Circle, and A-rated Southside Elementary School. PLEASE NOTE: No smoking/vaping of any kind anywhere on the property. Seasonal Rental Rates: Dec-Apr $9,000 (3 month minimum for rentals Dec - April); May-June $8,000; July-Aug $6,500, Sept-Nov - $8,000.
Listing Information
Property Type: Rental, Single Family Residence
Status: Active
Bedrooms: 3
Bathrooms: 2
Lot Size: 0.25 Acres
Square Feet: 1,461 sq ft
Year Built: 1954
Garage: Yes
Stories: 1 Story
Date Available: 11/1/2025
Subdivision: Midwood Manor
County: Sarasota
School Information
Elementary: Southside Elementary
Middle: Brookside Middle
High: Sarasota High
Room Information
Bathrooms
Full Baths: 1
1/2 Baths: 1
Additonal Room Information
Laundry: In Garage
Interior Features
Appliances: Dishwasher, Dryer, Microwave, Range, Refrigerator, Washer
Additional Interior Features: Ceiling Fan(s)
Utilities
Cooling: Ceiling Fan(s), Central Air
Heating: Central
Exterior / Lot Features
Attached Garage: Attached Garage
Garage Spaces: 1
Community Features
Security Deposit: 8000
Driving Directions
From Downtown Sarasota head South on US 41. Pass Bahia Vista and turn right onto Floyd Street. Continue West on Floyd Street to 1726. House is on the left.
Financial Considerations
Tenant Pays: Janitorial Service
Owner Pays: None
Tax/Property ID: 2037070051
A broker reciprocity listing courtesy: COMPASS FLORIDA LLC
Based on information provided by Stellar MLS as distributed by the MLS GRID. Information from the Internet Data Exchange is provided exclusively for consumers’ personal, non-commercial use, and such information may not be used for any purpose other than to identify prospective properties consumers may be interested in purchasing. This data is deemed reliable but is not guaranteed to be accurate by Edina Realty, Inc., or by the MLS. Edina Realty, Inc., is not a multiple listing service (MLS), nor does it offer MLS access.
Copyright 2026 Stellar MLS as distributed by the MLS GRID. All Rights Reserved.
Sales History & Tax Summary for 1726 Floyd Street
Sales History
| Date | Price | |
|---|---|---|
| Currently not available. | ||
Tax Summary
| Tax Year | Estimated Market Value | Total Tax |
|---|---|---|
| Currently not available. | ||
Data powered by ATTOM Data Solutions. Copyright© 2026. Information deemed reliable but not guaranteed.
Schools
Schools nearby 1726 Floyd Street
| Schools in attendance boundaries | Grades | Distance | Rating |
|---|---|---|---|
| Loading... | |||
| Schools nearby | Grades | Distance | Rating |
|---|---|---|---|
| Loading... | |||
Data powered by ATTOM Data Solutions. Copyright© 2026. Information deemed reliable but not guaranteed.
The schools shown represent both the assigned schools and schools by distance based on local school and district attendance boundaries. Attendance boundaries change based on various factors and proximity does not guarantee enrollment eligibility. Please consult your real estate agent and/or the school district to confirm the schools this property is zoned to attend. Information is deemed reliable but not guaranteed.
SchoolDigger ® Rating
The SchoolDigger rating system is a 1-5 scale with 5 as the highest rating. SchoolDigger ranks schools based on test scores supplied by each state's Department of Education. They calculate an average standard score by normalizing and averaging each school's test scores across all tests and grades.
Coming soon properties will soon be on the market, but are not yet available for showings.