$2,100/month
1816 Mill Run Circle Tampa, FL 33613
For Rent MLS# TB8435247
2 beds 3 baths 1,261 sq ft Townhouse/Twinhome
Details for 1816 Mill Run Circle
MLS# TB8435247
Description for 1816 Mill Run Circle, Tampa, FL, 33613
AWESOME LARGEST 2/2 1/2 PLAN AVAILABLE IN FLETCHERS MILL TOWNHOMES NO CARPET OR TILE ANYWHERE IN THE UNIT!! This unit is Immaculate & Has its own FENCED BACK YARD!! Featuring GORGEOUS NEW LUXURY VINYL FLOORING THROUGHOUT in (2025)!! NEW WOOD STAIRCASE in (2025), NEW 5 1/4" BASEBOARDS THROUGHOUT in (2025), NEW INTERIOR PAINT INCLUDING WALLS, TRIM & CEILINGS THROUGHOUT in (2025), NEW A/C installed in (2024), NEW PEDESTAL SINK & FAUCET IN Downstairs 1/2 BATH in (2025), UPDATED CABINETS IN KITCHEN in (2025), NEW STOVE in (2025), NEW FLOORS AND PAINT OF EXTERIOR STORAGE CLOSET in (2025), NEW WASHER & DRYER in (2024), UPGRADED BATHROOM VANITIES & MIRRORS, REMOVED OLD SOFFIT LIGHTING in (2025), NEW PEDESTAL SINK IN 1/2 BATH in (2025), NEW LIGHTING FIXTURES IN BATHS (2025), NEW 2" STRINGLESS WOOD BLINDS, So much has been recently done to this amazing unit!! Fantastic floorplan with great open Kitchen and Spacious Great Room Layout with Charming WOOD BURNING FIREPLACE!! Pretty UPDATED 1/2 Bath, Laundry Closet and Walk in Under the Stair Storage downstairs. Light and Bright Kitchen with SOLID WOOD CABINETS, GRANITE COUNTERTOPS, DEEP CLOSET PANTRY, BRAND NEW STOVE (2025), Large open PASS THROUGH TO LIVING & DINING AREAS. HUGE GREAT ROOM OFFERS MULTIPLE FURNITURE LAYOUTS. STUNNING WOOD STAIRCASE leads you upstairs to the DUAL PRIMARY SUITE 2 BEDROOM LAYOUT both featuring LARGE BEDROOMS, GREAT CLOSETS & ENSUITE BATHS & CEILING FANS!! LOTS OF NATURAL LIGHT!! PRISTINE with ALL NEW FLOORING, BASEBOARDS & PAINT THROUGHOUT!! WONDERFUL OUTDOOR AREA with SPACIOUS BACKYARD, LARGE PATIO & NEWLY REDONE STORAGE ROOM!! ALL LOCATED IN THE FANTASTIC CARROLLWOOD AREA LOCATION!! CLOSE TO LITERALLY EVERYTHING YOU NEED, EVERY KIND OF SHOPPING YOU COULD EVER WANT INCLUDING EASY ACCESS TO THE MALL AT CITRUS PARK & INTERNATIONAL MALL & BAY STREET, ALL THE BEST GROCERY STORES LIKE PUBLIX, WHOLE FOODS, FRESH MARKET, CONVENIENT TO ALL THE TOP HOME IMPROVEMENT STORES LIKE LOWES AND HOME DEPOT, AMAZING DINING & ENTERTAINMENT CHOICES WITH IMMEDIATE ACCESS TO DALE MABRY HIGHWAY OFF FLETCHER & SUPER CONVENIENT TO 2-75 FOR AMAZING ACCESS TO DOWNTOWN. THE COMMUNITY FEATURES A BEAUTIFUL POOL & 2 TENNIS COURTS & IS CLOSE TO MULTIPLE CITY PARKS & PLAYGROUNDS. THIS TOWNHOME HAS SUCH AN AMAZING LOCATION! IT ALL COMES DOWN TO LOCATION, LOCATION, LOCATION AND CONDITION! THIS TOWNHOME HAS IT ALL FOR A GREAT VALUE!! ALL EXTERIOR MAINTENANCE EVEN WATER, SEWER AND TRASH ARE INCLUDED IN THE RENT!!!
Listing Information
Property Type: Rental, Townhouse
Status: Active
Bedrooms: 2
Bathrooms: 3
Lot Size: 0.03 Acres
Square Feet: 1,261 sq ft
Year Built: 1983
Stories: 2 Story
Property Attached: Yes
Date Available: 10/10/2025
Construction Display: New Construction
Subdivision: Fletchers Mill
County: Hillsborough
Construction Status: New Construction
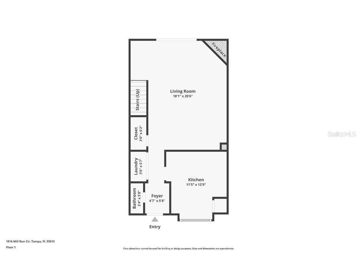
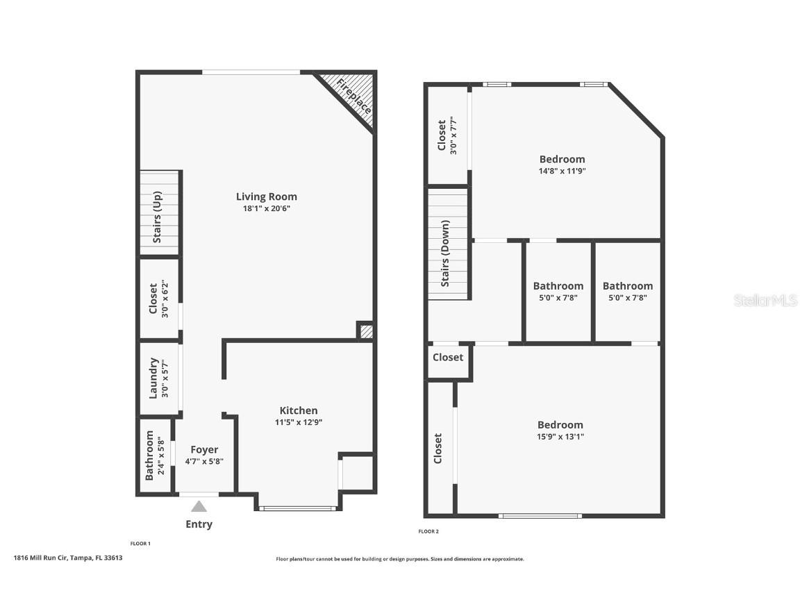
Room Information
Main Floor
Foyer: 8x4
Laundry: 4x6
Porch: 18x13
Kitchen: 11x11
Great Room: 15x20
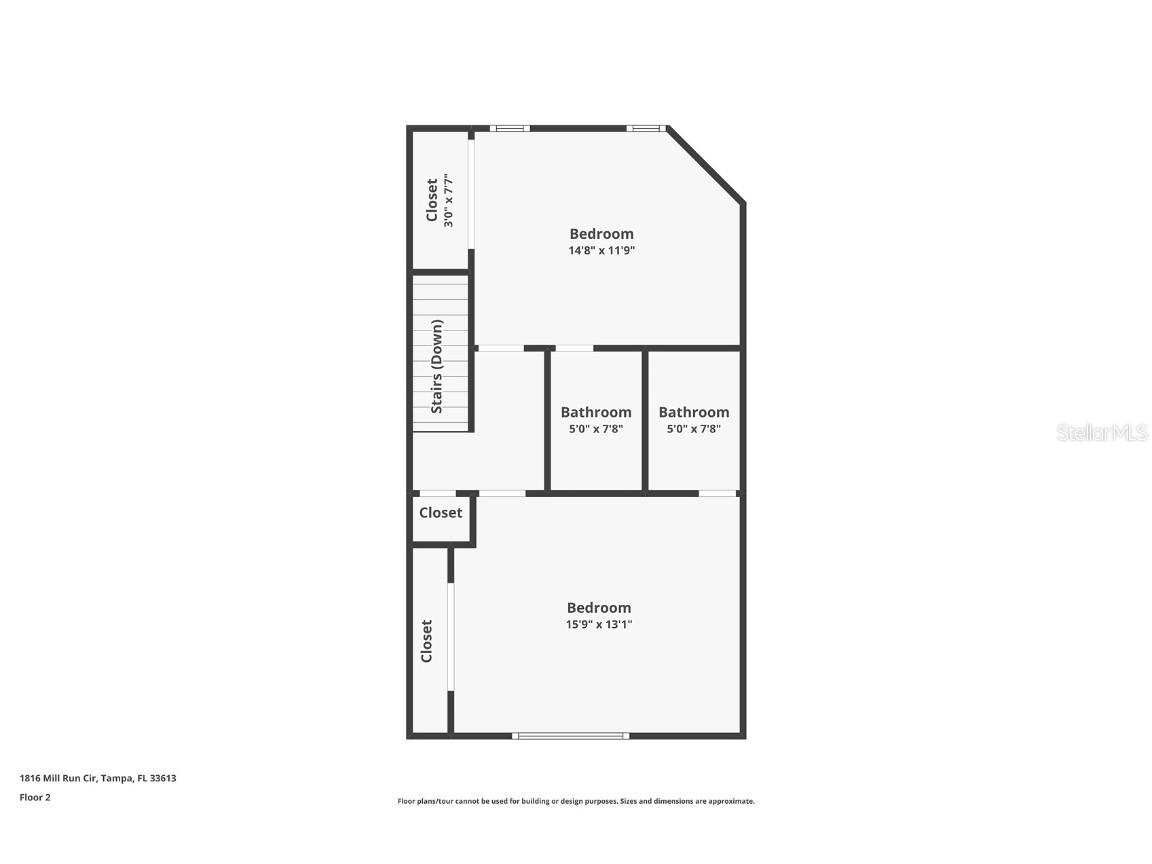
Upper Floor
Primary Bedroom: 15x12
Primary Bedroom: 16x13
Bathrooms
Full Baths: 2
1/2 Baths: 1
Additonal Room Information
Laundry: Electric Dryer Hookup, Inside, Laundry Closet
Interior Features
Appliances: Range Hood, Electric Water Heater, Range, Refrigerator, Washer, Dishwasher, Disposal, Dryer
Flooring: Luxury Vinyl
Doors/Windows: Window Treatments, Blinds
Fireplaces: Family Room, Wood Burning
Additional Interior Features: Split Bedrooms, Eat-In Kitchen, Walk-In Closet(s), Window Treatments, Ceiling Fan(s), Vaulted Ceiling(s), Attic, Built-in Features, Living/Dining Room, Upper Level Primary, Kitchen/Family Room Combo, Open Floorplan, Solid Surface Counters, Stone Counters, Wood Cabinets
Utilities
Water: Private
Sewer: Public Sewer
Other Utilities: Electricity Connected,High Speed Internet Available,Sewer Connected,Water Connected
Cooling: Ceiling Fan(s), Central Air
Heating: Electric, Heat Pump, Central
Exterior / Lot Features
Parking Description: Open
Pool: Association, Community
Fencing: Back Yard, fenced
Additional Exterior/Lot Features: Courtyard, Dog Run, Storage, Patio, Dead End, Oversized Lot
Out Buildings: Storage
Community Features
Community Features: Recreation Area, Sidewalks, Pool, Tennis Court(s), Street Lights
Security Features: Smoke Detector(s)
Association Amenities: Spa/Hot Tub, Recreation Facilities, Tennis Court(s), Pool
Security Deposit: 2100
Driving Directions
East on Fletcher from Dale Mabry Highway to North on Rome to Left into Fletchers Mill. Take your first Left go around to Building #26 Park in any open spot and walk down between the two buildings in the courtyard to units address 1816. Unit is down on the left painted blue with a darker blue door. Supra is on the front door.
Financial Considerations
Owner Pays: Pool Maintenance,Recreational,Sewer,Trash Collection,Water
Tax/Property ID: U-02-28-18-0TU-000002-00003.4
A broker reciprocity listing courtesy: COLDWELL BANKER REALTY
Based on information provided by Stellar MLS as distributed by the MLS GRID. Information from the Internet Data Exchange is provided exclusively for consumers’ personal, non-commercial use, and such information may not be used for any purpose other than to identify prospective properties consumers may be interested in purchasing. This data is deemed reliable but is not guaranteed to be accurate by Edina Realty, Inc., or by the MLS. Edina Realty, Inc., is not a multiple listing service (MLS), nor does it offer MLS access.
Copyright 2025 Stellar MLS as distributed by the MLS GRID. All Rights Reserved.
Sales History & Tax Summary for 1816 Mill Run Circle
Sales History
| Date | Price | Change |
|---|---|---|
| Currently not available. | ||
Tax Summary
| Tax Year | Estimated Market Value | Total Tax |
|---|---|---|
| Currently not available. | ||
Data powered by ATTOM Data Solutions. Copyright© 2025. Information deemed reliable but not guaranteed.
Schools
Schools nearby 1816 Mill Run Circle
| Schools in attendance boundaries | Grades | Distance | Rating |
|---|---|---|---|
| Loading... | |||
| Schools nearby | Grades | Distance | Rating |
|---|---|---|---|
| Loading... | |||
Data powered by ATTOM Data Solutions. Copyright© 2025. Information deemed reliable but not guaranteed.
The schools shown represent both the assigned schools and schools by distance based on local school and district attendance boundaries. Attendance boundaries change based on various factors and proximity does not guarantee enrollment eligibility. Please consult your real estate agent and/or the school district to confirm the schools this property is zoned to attend. Information is deemed reliable but not guaranteed.
SchoolDigger ® Rating
The SchoolDigger rating system is a 1-5 scale with 5 as the highest rating. SchoolDigger ranks schools based on test scores supplied by each state's Department of Education. They calculate an average standard score by normalizing and averaging each school's test scores across all tests and grades.
Coming soon properties will soon be on the market, but are not yet available for showings.