$210,000
18266 Minorea Lane Lehigh Acres, FL 33936
For Sale MLS# C7520876
3 beds 2 baths 1,409 sq ft Single Family
Details for 18266 Minorea Lane
MLS# C7520876
Description for 18266 Minorea Lane, Lehigh Acres, FL, 33936
Welcome to refined Florida living in this beautifully maintained 3-bedroom, 2-bath ranch-style villa nestled within the gated community of Vistanna Villas in Lehigh Acres. Thoughtfully laid out with an open, flowing floorplan, the home is filled with natural light and offers an inviting space for both relaxed everyday living and effortless entertaining. Spacious bedrooms provide comfort and flexibility, while the primary suite serves as a serene retreat complete with an en-suite bath featuring dual vanities and generous closet space. A separate laundry room enhances functionality, and the home’s expansive outdoor space invites you to unwind, dine al fresco, or simply enjoy the warm Florida breeze. Residents of Vistanna Villas enjoy the peace of a secure, well-maintained community with access to a clubhouse and resort-style pool, creating a true neighborhood feel. Conveniently located near shopping, dining, parks, and major roadways, this villa offers easy access to Fort Myers, Southwest Florida International Airport, and the Gulf Coast’s pristine beaches, putting the best of Southwest Florida right at your doorstep. With its blend of comfort, convenience, and laid-back elegance, this home perfectly captures the lifestyle that makes Florida living so desirable.
Listing Information
Property Type: Residential, Villa
Status: Active
Bedrooms: 3
Bathrooms: 2
Lot Size: 0.10 Acres
Square Feet: 1,409 sq ft
Year Built: 2018
Garage: Yes
Stories: 1 Story
Construction: Vinyl Siding
Subdivision: Vistanna Villas
Foundation: Slab
County: Lee
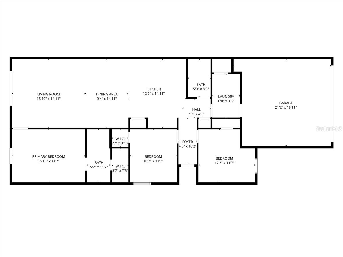
Room Information
Main Floor
Laundry: 9x6
Bedroom 3: 11x10
Dining Room: 14x9
Living Room: 14x15
Kitchen: 14x12
Bathroom 2: 8x5
Bathroom 1: 11x5
Bedroom 2: 11x12
Primary Bedroom: 11x15
Bathrooms
Full Baths: 2
Additonal Room Information
Laundry: Inside
Interior Features
Appliances: Range, Refrigerator, Dishwasher, Microwave
Flooring: Carpet,Luxury Vinyl
Additional Interior Features: Ceiling Fan(s)
Utilities
Water: Public
Sewer: Public Sewer
Other Utilities: Electricity Available,Sewer Available,Water Available
Cooling: Ceiling Fan(s), Central Air
Heating: Central
Exterior / Lot Features
Attached Garage: Attached Garage
Garage Spaces: 2
Roof: Shingle
Pool: Community
Community Features
Community Features: Pool, Clubhouse
Homeowners Association: Yes
HOA Dues: $372 / Quarterly
Driving Directions
From Florida State Road 82, head east toward Lehigh Acres, turn right onto Lee Blvd, continue on Lee Blvd to 23rd St SW, turn left onto 23rd St SW, turn left onto Beth Stacey Blvd, turn right onto Vistanna Blvd, turn right onto Aegean Cir, then turn left onto Minorea Ln, where 18266 Minorea Ln will be located on the left within the Vistanna Villas community.
Financial Considerations
Terms: Cash,Conventional,FHA,VA Loan
Tax/Property ID: 06-45-27-11-00000.2240
Tax Amount: 3097
Tax Year: 2025
A broker reciprocity listing courtesy: SELLSTATE VISION REALTY
Based on information provided by Stellar MLS as distributed by the MLS GRID. Information from the Internet Data Exchange is provided exclusively for consumers’ personal, non-commercial use, and such information may not be used for any purpose other than to identify prospective properties consumers may be interested in purchasing. This data is deemed reliable but is not guaranteed to be accurate by Edina Realty, Inc., or by the MLS. Edina Realty, Inc., is not a multiple listing service (MLS), nor does it offer MLS access.
Copyright 2026 Stellar MLS as distributed by the MLS GRID. All Rights Reserved.
Payment Calculator
Interest rate and annual percentage rate (APR) are based on current market conditions, are for informational purposes only, are subject to change without notice and may be subject to pricing add-ons related to property type, loan amount, loan-to-value, credit score and other variables. Estimated closing costs used in the APR calculation are assumed to be paid by the borrower at closing. If the closing costs are financed, the loan, APR and payment amounts will be higher. If the down payment is less than 20%, mortgage insurance may be required and could increase the monthly payment and APR. Contact us for details. Additional loan programs may be available. Accuracy is not guaranteed, and all products may not be available in all borrower's geographical areas and are based on their individual situation. This is not a credit decision or a commitment to lend.
Sales History & Tax Summary for 18266 Minorea Lane
Sales History
| Date | Price | |
|---|---|---|
| Currently not available. | ||
Tax Summary
| Tax Year | Estimated Market Value | Total Tax |
|---|---|---|
| Currently not available. | ||
Data powered by ATTOM Data Solutions. Copyright© 2026. Information deemed reliable but not guaranteed.
Schools
Schools nearby 18266 Minorea Lane
| Schools in attendance boundaries | Grades | Distance | Rating |
|---|---|---|---|
| Loading... | |||
| Schools nearby | Grades | Distance | Rating |
|---|---|---|---|
| Loading... | |||
Data powered by ATTOM Data Solutions. Copyright© 2026. Information deemed reliable but not guaranteed.
The schools shown represent both the assigned schools and schools by distance based on local school and district attendance boundaries. Attendance boundaries change based on various factors and proximity does not guarantee enrollment eligibility. Please consult your real estate agent and/or the school district to confirm the schools this property is zoned to attend. Information is deemed reliable but not guaranteed.
SchoolDigger ® Rating
The SchoolDigger rating system is a 1-5 scale with 5 as the highest rating. SchoolDigger ranks schools based on test scores supplied by each state's Department of Education. They calculate an average standard score by normalizing and averaging each school's test scores across all tests and grades.
Coming soon properties will soon be on the market, but are not yet available for showings.