18316 Murdock Circle #101-103 Port Charlotte, 33948
For Rent MLS# 2026005403
Commercial
Details for 18316 Murdock Circle #101-103
MLS# 2026005403
Description for 18316 Murdock Circle #101-103, Port Charlotte, , 33948
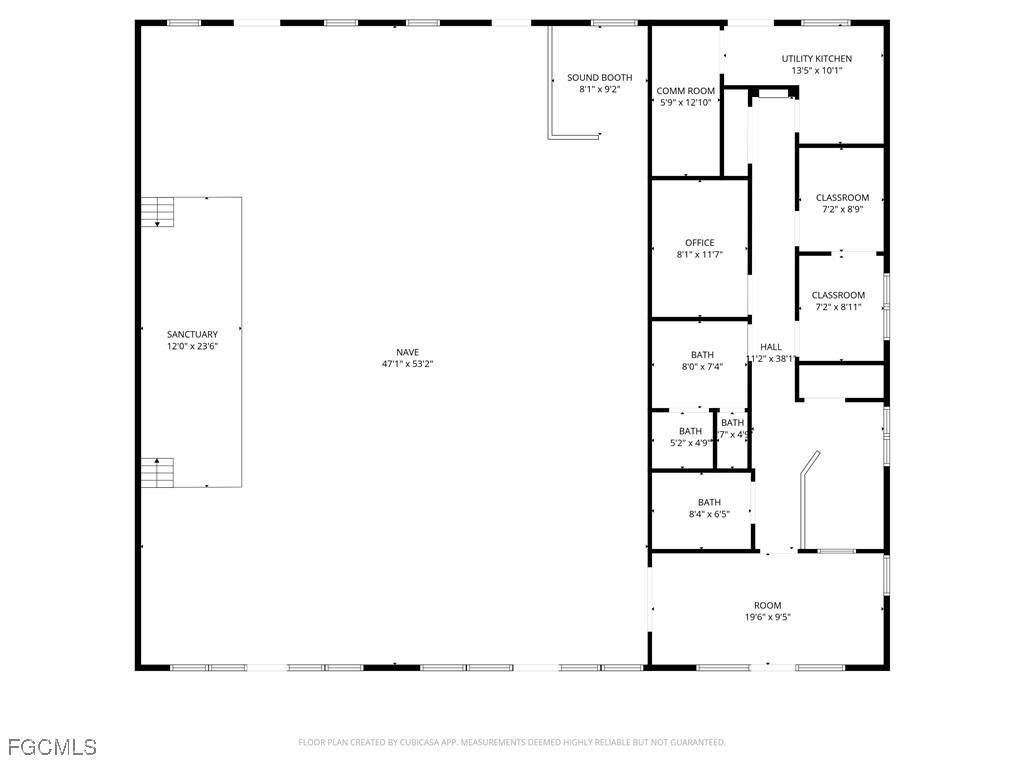
Place of Worship. 2137net/305occ., parking 456 shared. Tenant to verify occupancy with county. Class A worship space in Murdock Executive Center. Located in the heart of the Murdock/ Port Charlotte commercial area, near the Town Center mall and in close proximity to several schools and churches. Offered for lease at $18 psf/yr + CAM/OPEX. Tenant Agent must be present with clients/customers.
Listing Information
Property Type: Commercial, Special Purpose
Status: Active
Lot Size: 9.95 Acres
Year Built: 2007
Stories: 1 Story
Current Use: Place of Worship
County: Charlotte
Days On Market: 49
Driving Directions
Eduction Way Murdock Circle, south on Education Way. First left(east) First building on left, south end units 101-103.
Financial Considerations
Tax Amount: 7139.12
Tax Year: 2025
A broker reciprocity listing courtesy: Coldwell Banker Sunstar Realty
Based on information provided by FGCMLS. Internet Data Exchange information is provided exclusively for consumers’ personal, non-commercial use, and such information may not be used for any purpose other than to identify prospective properties consumers may be interested in purchasing. This data is deemed reliable but is not guaranteed to be accurate by Edina Realty, Inc., or by the MLS. Edina Realty, Inc., is not a multiple listing service (MLS), nor does it offer MLS access.
Copyright 2026 FGCMLS. All Rights Reserved.
Sales History & Tax Summary for 18316 Murdock Circle #101-103
Sales History
| Date | Price | |
|---|---|---|
| Currently not available. | ||
Tax Summary
| Tax Year | Estimated Market Value | Total Tax |
|---|---|---|
| Currently not available. | ||
Data powered by ATTOM Data Solutions. Copyright© 2026. Information deemed reliable but not guaranteed.
Schools
Schools nearby 18316 Murdock Circle #101-103
| Schools in attendance boundaries | Grades | Distance | Rating |
|---|---|---|---|
| Loading... | |||
| Schools nearby | Grades | Distance | Rating |
|---|---|---|---|
| Loading... | |||
Data powered by ATTOM Data Solutions. Copyright© 2026. Information deemed reliable but not guaranteed.
The schools shown represent both the assigned schools and schools by distance based on local school and district attendance boundaries. Attendance boundaries change based on various factors and proximity does not guarantee enrollment eligibility. Please consult your real estate agent and/or the school district to confirm the schools this property is zoned to attend. Information is deemed reliable but not guaranteed.
SchoolDigger ® Rating
The SchoolDigger rating system is a 1-5 scale with 5 as the highest rating. SchoolDigger ranks schools based on test scores supplied by each state's Department of Education. They calculate an average standard score by normalizing and averaging each school's test scores across all tests and grades.
Coming soon properties will soon be on the market, but are not yet available for showings.