$32,382/month
1873 Everlee Road Jacksonville, FL 32216
For Rent MLS# GC535280
Commercial
Details for 1873 Everlee Road
MLS# GC535280
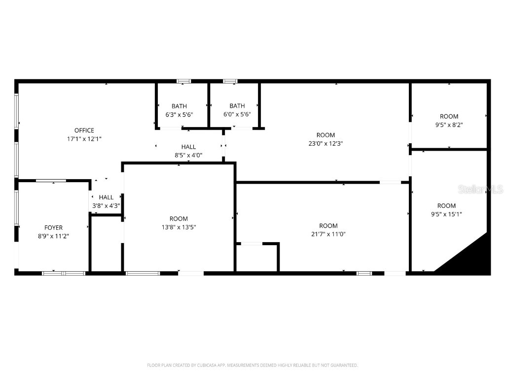
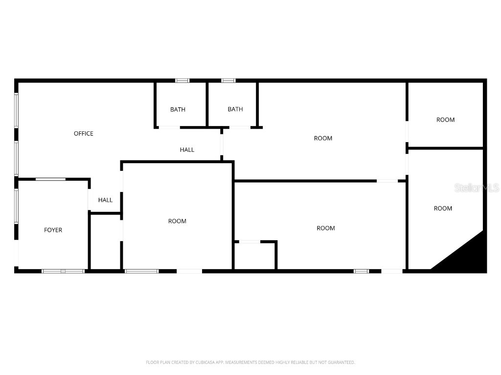
Description for 1873 Everlee Road, Jacksonville, FL, 32216
Excellent opportunity to lease a well-located industrial/flex building just minutes from I-95, I-295, and the Jacksonville International Airport. The property has outstanding functionality for a wide range of users — including light manufacturing, service contractors, storage, or distribution operations. The building features an open layout adaptable for office or mixed-use needs. Ample on-site parking and outside storage capabilities make this site ideal for businesses needing secure yard space or vehicle staging.
Listing Information
Property Type: Commercial, Mixed Use
Status: Active
Lot Size: 0.43 Acres
Year Built: 1969
Stories: 1 Story
Construction: Block
Construction Display: New Construction
Subdivision: Clarks R/P Pt Farm 05 Hgn
Foundation: Block
County: Duval
Construction Status: New Construction
Utilities
Cooling: Central Air
Driving Directions
Head south from downtown on I-95, take the Beach Blvd exit east, then turn south onto Everlee Rd. Continue until you reach the property on your left, tucked just beyond the light and before the cul-de-sac.
Financial Considerations
Tenant Pays: Other,See Remarks
Owner Pays: Other
Tax/Property ID: 137087-0100
Tax Amount: 2926
Tax Year: 2024
A broker reciprocity listing courtesy: COLDWELL BANKER COMMERCIAL PREMIER PROPERTIES
Based on information provided by Stellar MLS as distributed by the MLS GRID. Information from the Internet Data Exchange is provided exclusively for consumers’ personal, non-commercial use, and such information may not be used for any purpose other than to identify prospective properties consumers may be interested in purchasing. This data is deemed reliable but is not guaranteed to be accurate by Edina Realty, Inc., or by the MLS. Edina Realty, Inc., is not a multiple listing service (MLS), nor does it offer MLS access.
Copyright 2025 Stellar MLS as distributed by the MLS GRID. All Rights Reserved.
Sales History & Tax Summary for 1873 Everlee Road
Sales History
| Date | Price | Change |
|---|---|---|
| Currently not available. | ||
Tax Summary
| Tax Year | Estimated Market Value | Total Tax |
|---|---|---|
| Currently not available. | ||
Data powered by ATTOM Data Solutions. Copyright© 2025. Information deemed reliable but not guaranteed.
Schools
Schools nearby 1873 Everlee Road
| Schools in attendance boundaries | Grades | Distance | Rating |
|---|---|---|---|
| Loading... | |||
| Schools nearby | Grades | Distance | Rating |
|---|---|---|---|
| Loading... | |||
Data powered by ATTOM Data Solutions. Copyright© 2025. Information deemed reliable but not guaranteed.
The schools shown represent both the assigned schools and schools by distance based on local school and district attendance boundaries. Attendance boundaries change based on various factors and proximity does not guarantee enrollment eligibility. Please consult your real estate agent and/or the school district to confirm the schools this property is zoned to attend. Information is deemed reliable but not guaranteed.
SchoolDigger ® Rating
The SchoolDigger rating system is a 1-5 scale with 5 as the highest rating. SchoolDigger ranks schools based on test scores supplied by each state's Department of Education. They calculate an average standard score by normalizing and averaging each school's test scores across all tests and grades.
Coming soon properties will soon be on the market, but are not yet available for showings.