$2,950/month
18791 Dayspring Place Venice, FL 34293
For Rent MLS# A4673571
2 beds 2 baths 1,804 sq ft Single Family
Details for 18791 Dayspring Place
MLS# A4673571
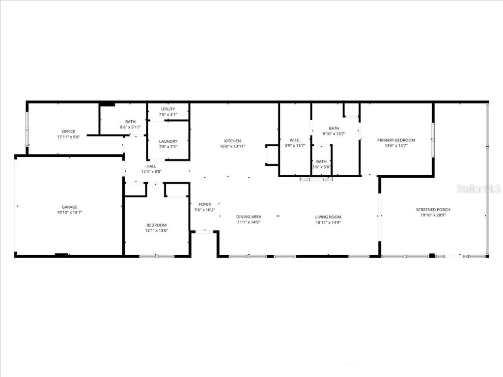
Description for 18791 Dayspring Place, Venice, FL, 34293
Stunning Designer Villa with exceptional upgrades in Solstice at Wellen Park. Discover luxury living in this impeccably upgraded 2-bedroom + den, 2-bath, 1,804 sq. ft. villa -- one of Southwest Florida’s premier lifestyle destinations by Toll Brothers. This rarely available Dunnet floorplan has been elevated far beyond builder standards with thoughtful design choices, premium finishes, and extensive owner investments. From the moment you arrive, you’ll appreciate the glass front entry door, 8-foot interior doors, tray ceilings, and engineered hardwood floors that flow through the main living areas. Storm-impact windows, a whole-house surge protector, and an epoxy-finished garage floor provide peace of mind and long-lasting durability. Interior Highlights: * Elegant Great Room, * Elegant shiplap and tiled custom fireplace entertainment wall with electric fireplace, * Upgraded lighting throughout the home, * Beautiful wood-paneling accent wall in the Primary Bedroom, * Custom office wall, pantry organizer, and built-in storage systems for linen and primary closets, * Square-format brushed nickel hardware throughout. Exceptional Gourmet Kitchen, designed with both beauty and function in mind: * Level 5 LG Viatera Muse Quartz countertops and quartz full-height backsplash, * Extended island with additional cabinetry and upgraded drawers, * Under-cabinet LED lighting, * Chalkboard accent wall, * Premium KitchenAid stainless steel appliance package, upgraded sink & faucet. Additional custom cabinetry in the kitchen and laundry room. Luxurious Bathrooms: * Large-format tile selections, including 24x47 designer wall tile in both bathrooms, * Handheld shower in the primary bath, * Quartz countertops added to the laundry room and primary vanity, * Frameless primary shower enclosure with polished tile and niche. Outdoor Living Upgrades - No other villa in Solstice offers an outdoor space quite like this: * Extended screened lanai with upgraded metal decorative screen, * Expanded paver patio for additional seating and entertaining, * Metal fenced backyard, * Beautiful, low-maintenance landscaping. Whole-Home Quality Improvements: Storm impact windows & doors, * Whole-house saltless water filtration system + reverse osmosis at kitchen sink, * Whole-house surge protector, * Garage floor epoxy coating, * Added outlets and smart home wiring package. About Solstice at Wellen Park: Solstice is a gated Toll Brothers community offering modern architecture, a vibrant social lifestyle, and access to Wellen Park’s expansive amenities. Residents enjoy: Resort-style pool, Fitness center, Walking & biking trails. Close proximity to Downtown Wellen Park lakeside dining, shops, and outdoor activities. Minutes to Venice beaches and CoolToday Park (home of the Atlanta Braves spring training). This villa is truly an Exceptional Value. Must See!
Listing Information
Property Type: Rental, Villa
Status: Active
Bedrooms: 2
Bathrooms: 2
Lot Size: 0.11 Acres
Square Feet: 1,804 sq ft
Year Built: 2024
Garage: Yes
Stories: 1 Story
Date Available: 12/1/2025
Subdivision: Solstice Ph 2
County: Sarasota
Room Information
Main Floor
Primary Bedroom:
Kitchen:
Living Room:
Bathrooms
Full Baths: 2
Additonal Room Information
Laundry: Laundry Room, Electric Dryer Hookup, Washer Hookup
Interior Features
Appliances: Ice Maker, Tankless Water Heater, Built-In Oven, Microwave, Range, Refrigerator, Cooktop, Dishwasher, Disposal
Fireplaces: Electric
Additional Interior Features: Walk-In Closet(s), Living/Dining Room, Main Level Primary
Utilities
Cooling: Central Air
Heating: Electric, Central
Exterior / Lot Features
Garage Spaces: 2
Pool: Community
Community Features
Community Features: Sidewalks, Pool, Playground, Clubhouse, Gated, Fitness, Golf Carts OK
Security Features: Gated Community
Security Deposit: 2950
Driving Directions
I-75 to River Road to 41 North to Wellen Park.
Financial Considerations
Tenant Pays: Carpet Cleaning Fee,Janitorial Service
Owner Pays: Electricity,Grounds Care,Pest Control,Trash Collection,Water
Tax/Property ID: 0801060207
A broker reciprocity listing courtesy: SELLBIZ
Based on information provided by Stellar MLS as distributed by the MLS GRID. Information from the Internet Data Exchange is provided exclusively for consumers’ personal, non-commercial use, and such information may not be used for any purpose other than to identify prospective properties consumers may be interested in purchasing. This data is deemed reliable but is not guaranteed to be accurate by Edina Realty, Inc., or by the MLS. Edina Realty, Inc., is not a multiple listing service (MLS), nor does it offer MLS access.
Copyright 2025 Stellar MLS as distributed by the MLS GRID. All Rights Reserved.
Sales History & Tax Summary for 18791 Dayspring Place
Sales History
| Date | Price | Change |
|---|---|---|
| Currently not available. | ||
Tax Summary
| Tax Year | Estimated Market Value | Total Tax |
|---|---|---|
| Currently not available. | ||
Data powered by ATTOM Data Solutions. Copyright© 2025. Information deemed reliable but not guaranteed.
Schools
Schools nearby 18791 Dayspring Place
| Schools in attendance boundaries | Grades | Distance | Rating |
|---|---|---|---|
| Loading... | |||
| Schools nearby | Grades | Distance | Rating |
|---|---|---|---|
| Loading... | |||
Data powered by ATTOM Data Solutions. Copyright© 2025. Information deemed reliable but not guaranteed.
The schools shown represent both the assigned schools and schools by distance based on local school and district attendance boundaries. Attendance boundaries change based on various factors and proximity does not guarantee enrollment eligibility. Please consult your real estate agent and/or the school district to confirm the schools this property is zoned to attend. Information is deemed reliable but not guaranteed.
SchoolDigger ® Rating
The SchoolDigger rating system is a 1-5 scale with 5 as the highest rating. SchoolDigger ranks schools based on test scores supplied by each state's Department of Education. They calculate an average standard score by normalizing and averaging each school's test scores across all tests and grades.
Coming soon properties will soon be on the market, but are not yet available for showings.