$25,200/month
1906 Murdock Boulevard Orlando, FL 32825
For Rent MLS# O6365194
Commercial
Details for 1906 Murdock Boulevard
MLS# O6365194
Description for 1906 Murdock Boulevard, Orlando, FL, 32825
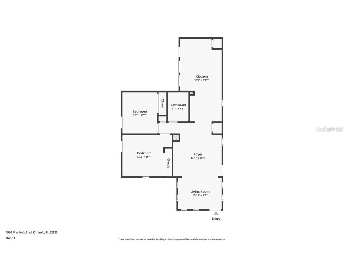
Welcome to a meticulously renovated one-story free-standing commercial building, a beacon of professional opportunity and modern functionality. Nestled in a prime location, this versatile space is adorned with contemporary aesthetics, offering an ideal canvas for a variety of businesses seeking a polished and welcoming atmosphere. As you approach, you'll be greeted by an expansive front parking area, providing ample space for clients and visitors. The exterior showcases an updated façade, hinting at the sophistication within. The rear of the building boasts an additional parking area, catering to the practical needs of businesses that require both front and rear entry points. Upon entering, the interior unfolds into a seamlessly designed space, featuring an open layout that can effortlessly accommodate various business setups. The renovation has been executed with an eye for detail, combining functionality with a stylish flair. Neutral tones and contemporary finishes create a timeless backdrop, adaptable to the branding and ambiance desired by occupants. This space is perfect for a range of businesses, from professional offices to specialized services like a nail salon or contractor's office. The layout allows for easy customization to suit specific needs, with separate areas that can be designated for different purposes. Large windows flood the interior with natural light, enhancing the overall inviting atmosphere. The exterior grounds are thoughtfully designed, providing a well-maintained and visually appealing environment. Landscaped areas contribute to the overall curb appeal, creating an inviting impression for clients and employees alike. With its prime location, ample parking, and adaptable interior, this property is poised to be the perfect canvas for your office, salon, or contractor headquarters, ensuring a professional and comfortable workspace for years to come.
Listing Information
Property Type: Commercial, Office
Status: Active
Lot Size: 0.24 Acres
Year Built: 1953
Stories: 1 Story
Construction: Block
Subdivision: Floral Park Realty Co Sub
Foundation: Slab
County: Orange
Interior Features
Appliances: Dishwasher, Refrigerator
Flooring: Porcelain Tile
Utilities
Sewer: Public Sewer, Septic Tank
Cooling: Central Air
Heating: Central
Exterior / Lot Features
Parking Description: Parking Space(s)
Roof: Shingle
Lot Dimensions: 75x140
Additional Exterior/Lot Features: Fence, Landscaped, Oversized Lot, Neighborhood
Out Buildings: Storage
Community Features
Community Features: Street Lights
Driving Directions
From the 417 head East on 50/Colonial Dr. Right on Murdock. Property will be on the right.
Financial Considerations
Tenant Pays: Electricity,Insurance,Sewer,Water
Owner Pays: Grounds Care
Tax/Property ID: 31-22-17-2772-04-071
Tax Amount: 3495
Tax Year: 2025
A broker reciprocity listing courtesy: OLDE TOWN BROKERS INC
Based on information provided by Stellar MLS as distributed by the MLS GRID. Information from the Internet Data Exchange is provided exclusively for consumers’ personal, non-commercial use, and such information may not be used for any purpose other than to identify prospective properties consumers may be interested in purchasing. This data is deemed reliable but is not guaranteed to be accurate by Edina Realty, Inc., or by the MLS. Edina Realty, Inc., is not a multiple listing service (MLS), nor does it offer MLS access.
Copyright 2026 Stellar MLS as distributed by the MLS GRID. All Rights Reserved.
Sales History & Tax Summary for 1906 Murdock Boulevard
Sales History
| Date | Price | Change |
|---|---|---|
| Currently not available. | ||
Tax Summary
| Tax Year | Estimated Market Value | Total Tax |
|---|---|---|
| Currently not available. | ||
Data powered by ATTOM Data Solutions. Copyright© 2026. Information deemed reliable but not guaranteed.
Schools
Schools nearby 1906 Murdock Boulevard
| Schools in attendance boundaries | Grades | Distance | Rating |
|---|---|---|---|
| Loading... | |||
| Schools nearby | Grades | Distance | Rating |
|---|---|---|---|
| Loading... | |||
Data powered by ATTOM Data Solutions. Copyright© 2026. Information deemed reliable but not guaranteed.
The schools shown represent both the assigned schools and schools by distance based on local school and district attendance boundaries. Attendance boundaries change based on various factors and proximity does not guarantee enrollment eligibility. Please consult your real estate agent and/or the school district to confirm the schools this property is zoned to attend. Information is deemed reliable but not guaranteed.
SchoolDigger ® Rating
The SchoolDigger rating system is a 1-5 scale with 5 as the highest rating. SchoolDigger ranks schools based on test scores supplied by each state's Department of Education. They calculate an average standard score by normalizing and averaging each school's test scores across all tests and grades.
Coming soon properties will soon be on the market, but are not yet available for showings.