$2,150/month
20292 Lagente Circle Venice, FL 34293
For Rent MLS# TB8454547
3 beds 3 baths 1,949 sq ft Townhouse/Twinhome
Details for 20292 Lagente Circle
MLS# TB8454547
Description for 20292 Lagente Circle, Venice, FL, 34293
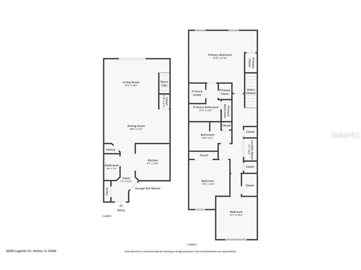
Seeking a sense of community? Love living the Florida Resort Lifestyle? - Annual Rental – 20292 Lagente is a spacious townhome, 1949 SF of living area, plus screened lanai and one-car garage. The main floor offers a half bath, a full-sized kitchen with wood cabinetry, stainless steel appliances, and granite countertops, a dining area & a living room looking out to the screened lanai with a view of the Preserve. The upstairs has the primary bedroom with an en suite, 2 guest bedrooms, and a guest bath. The upstairs also has a laundry closet area. This townhome offers the added convenience of a one-car garage plus a driveway long enough for 2 cars. The neighborhood location affords close proximity to the ample guest parking for family and friends. If location is really important to you, this gated community, Gran Paradiso, has it all, from a resort-style pool with cabanas and a state-of-the-art fitness center to tennis & pickleball courts and much more. Gran Paradiso offers gated & roving security, a Stunning Clubhouse complete with Fitness Center, Library, and Social Gathering areas, a Calendar of Social events and neighborhood, plus a very large heated swimming pool, Pickle Ball, Tennis, Walking Paths, and Trails for enhanced quality of Life. Centrally located in Wellen Park, with convenient access to local restaurants, shopping centers, and sports and medical facilities. The Owner will consider one small non-shedding dog. Book your private showing today. Gran Paradiso website https://websites.vertilinc.com/gp/
Listing Information
Property Type: Rental, Townhouse
Status: Active
Bedrooms: 3
Bathrooms: 3
Lot Size: 0.05 Acres
Square Feet: 1,949 sq ft
Year Built: 2019
Garage: Yes
Stories: 2 Story
Property Attached: Yes
Date Available: 1/1/2026
Construction Display: New Construction
Subdivision: Gran Paradiso Twnhms 1b
Builder: Lennar Homes LLC
County: Sarasota
Construction Status: New Construction
School Information
Elementary: Taylor Ranch Elementary
Middle: Venice Area Middle
High: Venice Senior High
Room Information
Bathrooms
Full Baths: 2
1/2 Baths: 1
Additonal Room Information
Laundry: Laundry Closet, Inside, Upper Level
Interior Features
Appliances: Range, Electric Water Heater, Washer, Microwave, Dishwasher, Disposal, Dryer
Flooring: Engineered Hardwood,Laminate
Doors/Windows: Window Treatments, Shutters
Additional Interior Features: Walk-In Closet(s), Window Treatments, Ceiling Fan(s), High Ceilings, Upper Level Primary, Open Floorplan, Living/Dining Room, Stone Counters
Utilities
Water: Public
Sewer: Public Sewer
Other Utilities: Cable Available,Electricity Connected,High Speed Internet Available,Sewer Connected,Underground Utilities,Water Connected
Cooling: Ceiling Fan(s), Central Air
Heating: Central
Exterior / Lot Features
Attached Garage: Attached Garage
Garage Spaces: 1
Parking Description: Garage, driveway, Garage Door Opener, Assigned, Covered, Deeded, Guest
Pool: Association, Community
Lot View: Park/Greenbelt,Trees/Woods
Additional Exterior/Lot Features: Patio, Screened, Buyer Approval Required
Community Features
Community Features: Fitness, Golf Carts OK, Racquetball, Dog Park, Gated, Recreation Area, Sidewalks, Pool, Tennis Court(s), Playground, Clubhouse
Security Features: Secured Garage/Parking, Smoke Detector(s), Gated Community, Gated with Guard
Association Amenities: Gated, Pickleball, Tennis Court(s), Recreation Facilities, Pool, Security, Clubhouse, Fitness Center, Playground
Security Deposit: 2150
Driving Directions
NOTE: Enter Gran Paradiso from US 41 to Galleria Blvd (Gran Paradiso) Turn right on Renaissance Blvd, then Right on Lagente Circle and continue to 20292 on left.
Financial Considerations
Tenant Pays: Janitorial Service
Owner Pays: Insurance,Laundry,Management,Recreational,Taxes
Tax/Property ID: 0778112510
A broker reciprocity listing courtesy: BROCK REALTY INC.
Based on information provided by Stellar MLS as distributed by the MLS GRID. Information from the Internet Data Exchange is provided exclusively for consumers’ personal, non-commercial use, and such information may not be used for any purpose other than to identify prospective properties consumers may be interested in purchasing. This data is deemed reliable but is not guaranteed to be accurate by Edina Realty, Inc., or by the MLS. Edina Realty, Inc., is not a multiple listing service (MLS), nor does it offer MLS access.
Copyright 2025 Stellar MLS as distributed by the MLS GRID. All Rights Reserved.
Sales History & Tax Summary for 20292 Lagente Circle
Sales History
| Date | Price | Change |
|---|---|---|
| Currently not available. | ||
Tax Summary
| Tax Year | Estimated Market Value | Total Tax |
|---|---|---|
| Currently not available. | ||
Data powered by ATTOM Data Solutions. Copyright© 2025. Information deemed reliable but not guaranteed.
Schools
Schools nearby 20292 Lagente Circle
| Schools in attendance boundaries | Grades | Distance | Rating |
|---|---|---|---|
| Loading... | |||
| Schools nearby | Grades | Distance | Rating |
|---|---|---|---|
| Loading... | |||
Data powered by ATTOM Data Solutions. Copyright© 2025. Information deemed reliable but not guaranteed.
The schools shown represent both the assigned schools and schools by distance based on local school and district attendance boundaries. Attendance boundaries change based on various factors and proximity does not guarantee enrollment eligibility. Please consult your real estate agent and/or the school district to confirm the schools this property is zoned to attend. Information is deemed reliable but not guaranteed.
SchoolDigger ® Rating
The SchoolDigger rating system is a 1-5 scale with 5 as the highest rating. SchoolDigger ranks schools based on test scores supplied by each state's Department of Education. They calculate an average standard score by normalizing and averaging each school's test scores across all tests and grades.
Coming soon properties will soon be on the market, but are not yet available for showings.