$3,500/month
23126 Copperleaf Drive Venice, FL 34293
For Rent MLS# C7524255
2 beds 2 baths 1,694 sq ft Single Family
Details for 23126 Copperleaf Drive
MLS# C7524255
Description for 23126 Copperleaf Drive, Venice, FL, 34293
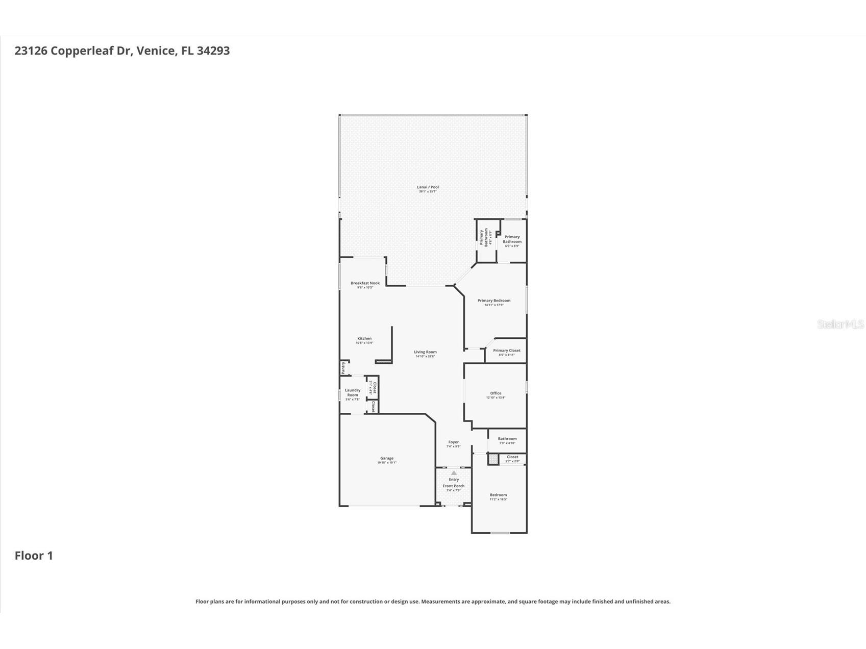
Experience elevated Florida living in this beautifully appointed lakeside pool home located in the highly sought-after Sarasota National community. Built in 2007 by Pulte, this thoughtfully designed single-family residence offers 1,694 sq. ft. of interior living space plus an additional 338 sq. ft. of outdoor living, perfectly blending comfort and style. This turnkey furnished ANNUAL RENTAL features 2 bedrooms, a den (with brand-new sofa bed for optional third bedroom use), and 2 bathrooms, including a convenient pool bath with direct lanai access. Step inside to find 10-foot ceilings, 8-foot doors, crown molding, and custom window treatments throughout, creating a bright and open feel. The home showcases warm, inviting tones, with soft carpet in the main living areas and tile in the kitchen and baths. The kitchen is designed for both function and entertaining, complete with stainless steel appliances, bar-top seating, a breakfast nook, and a formal dining area. The spacious primary suite offers a true retreat with private pool access, a soaking tub, and peaceful water views. Outdoors, enjoy your own private retreat with a custom heated pool featuring a waterfall and bench seating, all set under a southern exposure for optimal sunlight. The lanai is accessible from the main living areas and primary suite, allowing smooth indoor-outdoor living. Mature landscaping, a quiet preserve across the street, and wide water views complete the calm setting. Additional highlights include epoxy-coated garage flooring, smart home features, a 2024 hot water heater, and a well-maintained AC system. Sarasota National is a remarkable community with over 1,300 acres set aside for preservation, conservation, lakes, and open space, offering amazing natural views. It is recognized as an Audubon International Certified Sanctuary, making it one of the most beautiful and enjoyable golf course settings in the area. Residents enjoy resort-style amenities, including a large pool and spa, a Tiki Bar serving refreshing drinks and light bites, tennis courts, pickleball, bocce courts, and a coffee lounge with library and meeting spaces. A 7,000 sq. ft. fitness center offers classes and a day spa, while the 30,000 sq. ft. clubhouse provides dining and scenic views. The 18-hole championship golf course winds through native wetlands and preserves, creating a memorable playing experience. This prime location is just minutes from the growing Wellen Park area, home to shopping, dining, entertainment, and the Atlanta Braves stadium. Venice Beach and downtown Venice are also a short drive away, offering even more options for dining and outdoor fun. With top-tier amenities and a prime location, this home delivers an incredible Florida lifestyle.
Listing Information
Property Type: Rental, Single Family Residence
Status: Active
Bedrooms: 2
Bathrooms: 2
Lot Size: 0.16 Acres
Square Feet: 1,694 sq ft
Year Built: 2007
Garage: Yes
Stories: 1 Story
Date Available: 4/1/2026
Construction Display: New Construction
Subdivision: Sarasota National Ph 1a
County: Sarasota
Construction Status: New Construction
School Information
Elementary: Taylor Ranch Elementary
Middle: Venice Area Middle
High: Wellen Park High
Room Information
Main Floor
Office: 13x12
Bathroom 2: 4x7
Bedroom 2: 16x11
Primary Bathroom: 8x6
Primary Bedroom: 17x14
Laundry: 7x5
Kitchen: 13x10
Living Room: 26x14
Bathrooms
Full Baths: 2
Additonal Room Information
Laundry: Inside, Laundry Room
Interior Features
Appliances: Dishwasher, Dryer
Doors/Windows: Window Treatments
Additional Interior Features: Ceiling Fan(s), Eat-In Kitchen, Living/Dining Room, Walk-In Closet(s), Window Treatments
Utilities
Cooling: Ceiling Fan(s), Central Air
Heating: Electric
Exterior / Lot Features
Attached Garage: Attached Garage
Garage Spaces: 2
Pool: In Ground, Community, Heated, Association
Lot View: Lake,Pool,Water
Waterfront Details
Water Front Features: Lake Front
Community Features
Community Features: Sidewalks, Pool, Clubhouse, Golf, Dog Park, Gated, Restaurant, Fitness
Security Features: Gated Community, Gated with Guard
Association Amenities: Gated, Maintenance Grounds, Pool, Fitness Center, Recreation Facilities, Clubhouse
Security Deposit: 3000
Driving Directions
US-41 N, L-on National Blvd. go thru gate. R-on Copperleaf Dr. Home on left side.
Financial Considerations
Tenant Pays: Carpet Cleaning Fee,Janitorial Service
Owner Pays: Sewer,Trash Collection
Tax/Property ID: 0464010070
A broker reciprocity listing courtesy: KW PEACE RIVER PARTNERS
Based on information provided by Stellar MLS as distributed by the MLS GRID. Information from the Internet Data Exchange is provided exclusively for consumers’ personal, non-commercial use, and such information may not be used for any purpose other than to identify prospective properties consumers may be interested in purchasing. This data is deemed reliable but is not guaranteed to be accurate by Edina Realty, Inc., or by the MLS. Edina Realty, Inc., is not a multiple listing service (MLS), nor does it offer MLS access.
Copyright 2026 Stellar MLS as distributed by the MLS GRID. All Rights Reserved.
Sales History & Tax Summary for 23126 Copperleaf Drive
Sales History
| Date | Price | |
|---|---|---|
| Currently not available. | ||
Tax Summary
| Tax Year | Estimated Market Value | Total Tax |
|---|---|---|
| Currently not available. | ||
Data powered by ATTOM Data Solutions. Copyright© 2026. Information deemed reliable but not guaranteed.
Schools
Schools nearby 23126 Copperleaf Drive
| Schools in attendance boundaries | Grades | Distance | Rating |
|---|---|---|---|
| Loading... | |||
| Schools nearby | Grades | Distance | Rating |
|---|---|---|---|
| Loading... | |||
Data powered by ATTOM Data Solutions. Copyright© 2026. Information deemed reliable but not guaranteed.
The schools shown represent both the assigned schools and schools by distance based on local school and district attendance boundaries. Attendance boundaries change based on various factors and proximity does not guarantee enrollment eligibility. Please consult your real estate agent and/or the school district to confirm the schools this property is zoned to attend. Information is deemed reliable but not guaranteed.
SchoolDigger ® Rating
The SchoolDigger rating system is a 1-5 scale with 5 as the highest rating. SchoolDigger ranks schools based on test scores supplied by each state's Department of Education. They calculate an average standard score by normalizing and averaging each school's test scores across all tests and grades.
Coming soon properties will soon be on the market, but are not yet available for showings.