$56,166/month
2409 E Lake Avenue Tampa, FL 33610
For Rent MLS# TB8335959
2,600 sq ft Commercial
Details for 2409 E Lake Avenue
MLS# TB8335959
Description for 2409 E Lake Avenue, Tampa, FL, 33610
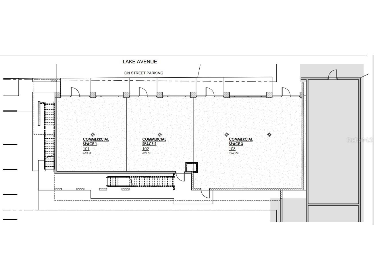
Under Construction. ***Under Construction*** Florida Commercial Group is pleased to present the opportunity to lease in a brand new, high-profile retail, office, restaurant use development, located at the corner of E. Lake Avenue and Potter Street- East Tampa. Boasting ground level space that will measure (approx.) 2,600 SF, this free-standing building, will be centrally located in the rapidly growing East Tampa Community on E. Lake Avenue :: Ideal for a range of businesses, such as retail sales, professional offices, community services or a small neighborhood eatery :: The space can feature one large open area or be subdivided into 2- 3 smaller suites. This property will showcase approximately 109' of frontage along bustling E. Lake Avenue and will be located in a highly sought-after retail/ residential area that benefits from excellent exposure and robust traffic counts of over 10,500 vehicles per day at the intersection of E. Lake Avenue and N. 22nd Street :: Zoned (PD) Planned Development, this 5,123 SF lot will offer dedicated onsite parking and a few street parking spaces for easy access :: With steady traffic flow and excellent foot traffic in the area, this property will be perfectly positioned to maximize your business’s potential :: The site is perfect for quick service retail to serve the surrounding residents, workforce and those commuting through the area. Surrounded by the flourishing residential neighborhoods of Belmont Height Estates and College Hills, this property is minutes from the Greater East Tampa area and Downtown Tampa. Whether you are a start-up or an established business looking to broaden your brand, don’t miss an opportunity to lease this first-generation space today :: Various businesses can do well here making this an ideal site for a relocation, expansion or a new business startup location :: Situated in a qualified HUBZone, you’ll also be near many existing and planned developments project sites :: Construction of this building is under way and will be completed in 2026 with modern amenities and offered as build-to-suit or can be provided as a vanilla shell :: Enveloped by over 46,283 households within three miles, the solid demographics and limited competition within the immediate area make this an ideal location for a wide variety of thriving business owners or small commercial entrepreneurs. The subject is close to all things East Tampa via N. 22nd Street, Dr. Martin Luther King Jr. Blvd., N. Nebraska Avenue, N. 40th Street and Interstate 275 :: Downtown Tampa, Seminole Heights, Ybor City and the Greater Tampa Bay area are all a quick commute from this site :: Call for additional property details and come invest in growing East Tampa today!
Listing Information
Property Type: Commercial, Mixed Use
Status: Active
Lot Size: 0.12 Acres
Square Feet: 2,600 sq ft
Year Built: 1948
Stories: 1 Story
Construction: Concrete
Construction Display: New Construction
Subdivision: Robson Bros Sub
Foundation: Other
County: Hillsborough
Construction Status: Under Construction
Utilities
Cooling: Central Air
Exterior / Lot Features
Lot Dimensions: 47x109
Driving Directions
From Downtown Tampa, head east on East Twiggs Street to N. Nebraska Avenue. Turn left. Head north 2 miles to E. Lake Avenue. Turn right. Head east for 1 mile. Arrive at the property on the right 2409 E. Lake Avenue.
Financial Considerations
Tenant Pays: Common Area Maintenance,Electricity,Gas,Insurance,Taxes
Owner Pays: Other
Tax/Property ID: A-08-29-19-4NE-000000-00001.0
Tax Amount: 2792.83
Tax Year: 2024
A broker reciprocity listing courtesy: FLORIDA COMMERCIAL GROUP
Based on information provided by Stellar MLS as distributed by the MLS GRID. Information from the Internet Data Exchange is provided exclusively for consumers’ personal, non-commercial use, and such information may not be used for any purpose other than to identify prospective properties consumers may be interested in purchasing. This data is deemed reliable but is not guaranteed to be accurate by Edina Realty, Inc., or by the MLS. Edina Realty, Inc., is not a multiple listing service (MLS), nor does it offer MLS access.
Copyright 2026 Stellar MLS as distributed by the MLS GRID. All Rights Reserved.
Sales History & Tax Summary for 2409 E Lake Avenue
Sales History
| Date | Price | |
|---|---|---|
| Currently not available. | ||
Tax Summary
| Tax Year | Estimated Market Value | Total Tax |
|---|---|---|
| Currently not available. | ||
Data powered by ATTOM Data Solutions. Copyright© 2026. Information deemed reliable but not guaranteed.
Schools
Schools nearby 2409 E Lake Avenue
| Schools in attendance boundaries | Grades | Distance | Rating |
|---|---|---|---|
| Loading... | |||
| Schools nearby | Grades | Distance | Rating |
|---|---|---|---|
| Loading... | |||
Data powered by ATTOM Data Solutions. Copyright© 2026. Information deemed reliable but not guaranteed.
The schools shown represent both the assigned schools and schools by distance based on local school and district attendance boundaries. Attendance boundaries change based on various factors and proximity does not guarantee enrollment eligibility. Please consult your real estate agent and/or the school district to confirm the schools this property is zoned to attend. Information is deemed reliable but not guaranteed.
SchoolDigger ® Rating
The SchoolDigger rating system is a 1-5 scale with 5 as the highest rating. SchoolDigger ranks schools based on test scores supplied by each state's Department of Education. They calculate an average standard score by normalizing and averaging each school's test scores across all tests and grades.
Coming soon properties will soon be on the market, but are not yet available for showings.