$18,000/month
2503 W Swann Avenue #113 Tampa, FL 33609
For Rent MLS# TB8377513
5,113 sq ft Commercial
Details for 2503 W Swann Avenue #113
MLS# TB8377513
Description for 2503 W Swann Avenue #113, Tampa, FL, 33609
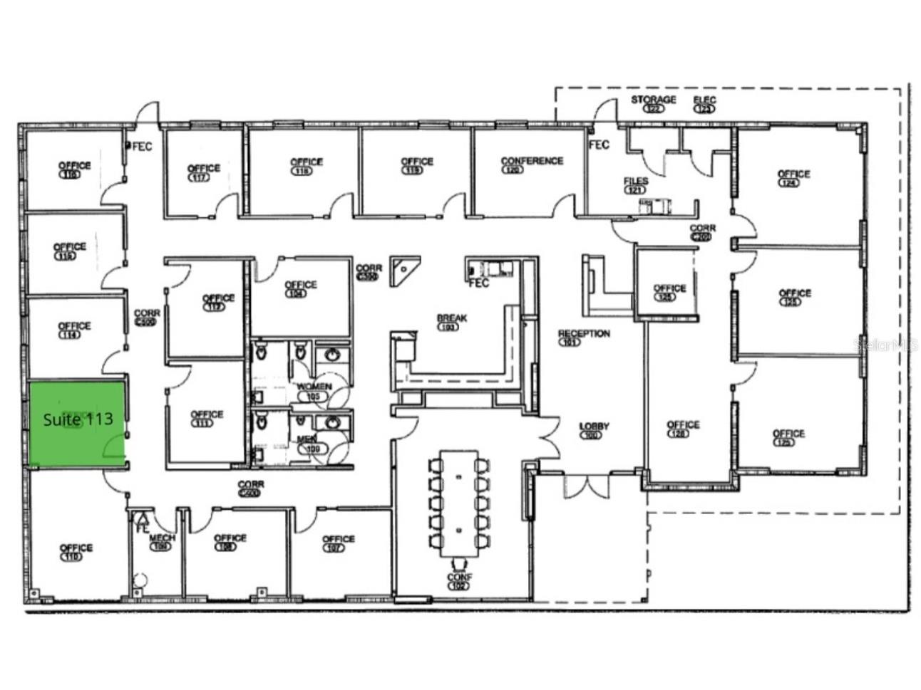
One gorgeous executive suite available in the heart of South Tampa. This building had a top to bottom renovation and many high-end finishes and upgrades. Each office is soundproofed for privacy and is available furnished. All utilities, data, and janitorial are included and many additional services are available such as reception and inbound call service and call forwarding. As you enter the building, your clients will be greeted by the receptionist in the spacious lobby which sits adjacent to the main conference room. The building is nicely appointed with tasteful artwork and floor to ceiling glass in the lobby. The main conference room and a secondary conference room to the rear are also available for smaller groups or meetings requiring more discretion. Both are available for reservation with the receptionist and have ample seating and video conferencing. A large common break room is also available to all tenants. This building is perfect for attorneys, financial advisors, and many other professional service users and offers the class and prestige one would expect from one of South Tampa's flagship buildings. Suite 113 - 10 x 12 - 177 SF - Exterior window office on the west side of the building. Measures 10 x 12. Balance of square footage is comprised of common areas; conference room, hallways, restrooms, kitchen and reception. Includes desk, Herman Miller desk chair, credenza, and two leather guest chairs. Initial estimated monthly rent: $1,500/month (includes Full Service rate) plus applicable tax - 12 month lease available Located in the heart of South Tampa / Hyde Park area at the corner of Armenia and Swann Avenue.
Listing Information
Property Type: Commercial, Office
Status: Active
Lot Size: 0.38 Acres
Square Feet: 5,113 sq ft
Year Built: 1970
Stories: 1 Story
Construction: Block
Construction Display: New Construction
Subdivision: Dixie
Foundation: Slab
County: Hillsborough
Construction Status: New Construction
Utilities
Cooling: Partial
Exterior / Lot Features
Lot Dimensions: 128x128
Driving Directions
Veterans Highway (589) South to 60 East, right on S. Dale Mabry Highway, 1/2 mile, left on W. Swann Avenue, 1/2 mile to property on the left.
Financial Considerations
Tenant Pays: Other,See Remarks
Owner Pays: Other
Tax/Property ID: A-22-29-18-3O9-000002-00011.0
Tax Amount: 32076.91
Tax Year: 2024
A broker reciprocity listing courtesy: BAY STREET COMMERCIAL LLC
Based on information provided by Stellar MLS as distributed by the MLS GRID. Information from the Internet Data Exchange is provided exclusively for consumers’ personal, non-commercial use, and such information may not be used for any purpose other than to identify prospective properties consumers may be interested in purchasing. This data is deemed reliable but is not guaranteed to be accurate by Edina Realty, Inc., or by the MLS. Edina Realty, Inc., is not a multiple listing service (MLS), nor does it offer MLS access.
Copyright 2025 Stellar MLS as distributed by the MLS GRID. All Rights Reserved.
Sales History & Tax Summary for 2503 W Swann Avenue #113
Sales History
| Date | Price | Change |
|---|---|---|
| Currently not available. | ||
Tax Summary
| Tax Year | Estimated Market Value | Total Tax |
|---|---|---|
| Currently not available. | ||
Data powered by ATTOM Data Solutions. Copyright© 2025. Information deemed reliable but not guaranteed.
Schools
Schools nearby 2503 W Swann Avenue #113
| Schools in attendance boundaries | Grades | Distance | Rating |
|---|---|---|---|
| Loading... | |||
| Schools nearby | Grades | Distance | Rating |
|---|---|---|---|
| Loading... | |||
Data powered by ATTOM Data Solutions. Copyright© 2025. Information deemed reliable but not guaranteed.
The schools shown represent both the assigned schools and schools by distance based on local school and district attendance boundaries. Attendance boundaries change based on various factors and proximity does not guarantee enrollment eligibility. Please consult your real estate agent and/or the school district to confirm the schools this property is zoned to attend. Information is deemed reliable but not guaranteed.
SchoolDigger ® Rating
The SchoolDigger rating system is a 1-5 scale with 5 as the highest rating. SchoolDigger ranks schools based on test scores supplied by each state's Department of Education. They calculate an average standard score by normalizing and averaging each school's test scores across all tests and grades.
Coming soon properties will soon be on the market, but are not yet available for showings.